Translate with 
MENU ZAVŘÍT

Pronájem jiných prostor 55 m², Brandýs nad Labem-Stará Boleslav (ID 205-NP12821)

Brandýs nad Labem-Stará Boleslav – část obce Brandýs nad Labem mapa

Cena na vyžádání v kanceláři
GMimořádně
nehospodárná

71 m2
Exkluzivně

Pronájem komerčních prostor – Brandýs nad Labem, náměstí

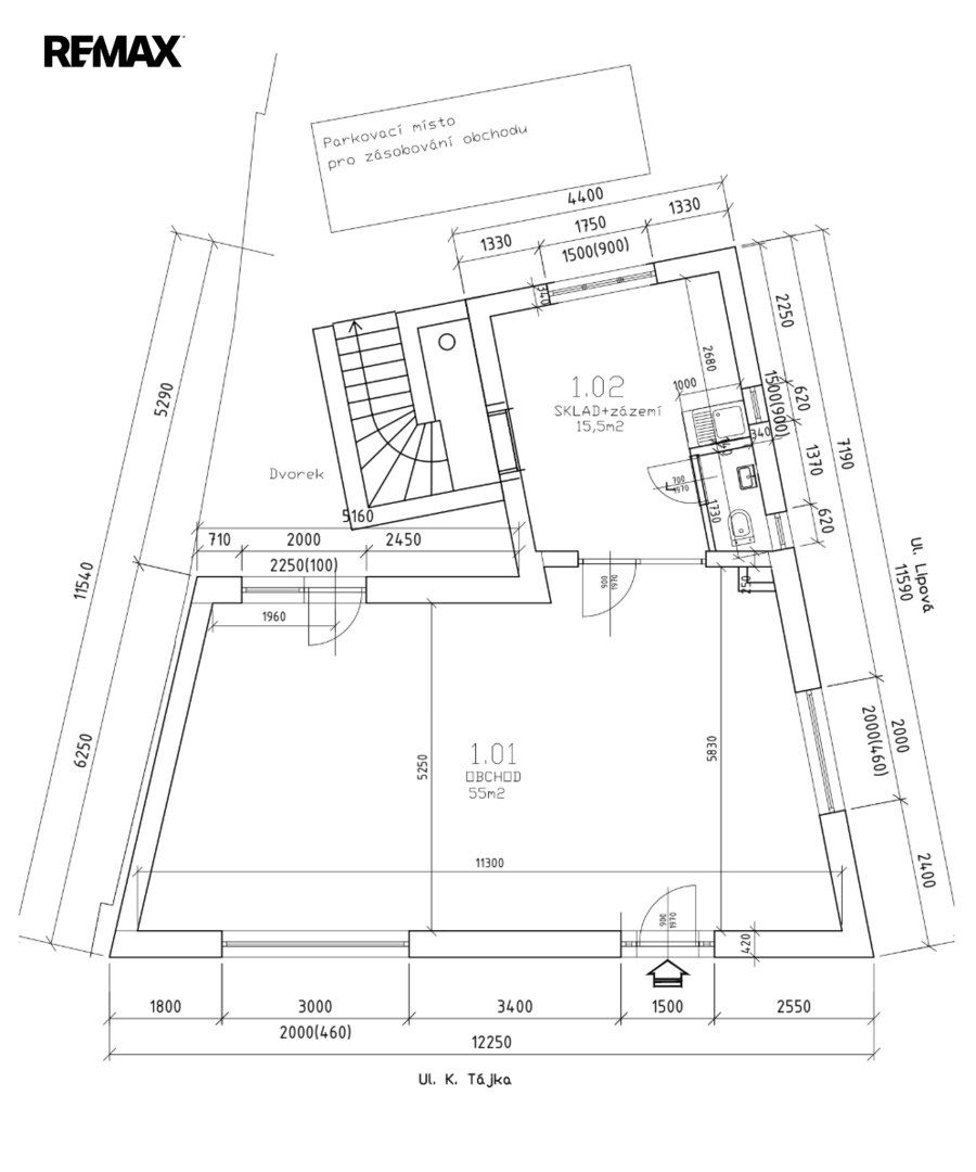
Nabízíme k pronájmu atraktivní komerční prostory přímo na náměstí v Brandýse nad Labem. Jedná se o celé přízemí nově vznikající nemovitosti, která je aktuálně ve fázi výstavby, což dává budoucímu nájemci jedinečnou možnost přizpůsobit prostory přesně podle svých potřeb.
Celková plocha činí cca 70 m², z toho:
55 m² hlavní obchodní / provozní plocha
15 m² zázemí
Prostor je vhodný pro klidný provoz – ideálně například kancelář, showroom, služby, menší provozovnu či specializovaný obchod. V rámci prezentace jsou k dispozici vizualizace pobočky pojišťovny nebo obědového bistra, nicméně využití je variabilní a fantazii se meze nekladou.
Zásobování je řešeno prakticky ze dvora.
Velkou přidanou hodnotou je samotná lokalita – prostory k pronájmu přímo na náměstí v Brandýse nad Labem se objevují jen zcela výjimečně.
Dvojměstí Brandýs n.L. – St. Boleslav je díky své historii, plné občanské vybavenosti a umístěním velmi žádanou lokalitou. Nachází se dlouhodobě na předních příčkách v hodnocení kvality života ve všech městech ČR.
V případě zájmu o více informací nebo prohlídku nás neváhejte kontaktovat.
Prohlídky se konají po předchozí telefonické či e-mailové dohodě.

V případě více vážných zájemců si prodávající vyhrazuje právo vybrat nejvýhodnější nabídku. Prodávající si vyhrazuje právo vybrat kupujícího na základě jím zvolených kritérií.
Pronajímající si vyhrazuje právo vybrat nájemce na základě jím zvolených kritérií.
Cena:
Cena na vyžádání v kanceláři
Věra Krulichová
REMAX Alfa
Spálená 97/29
Praha 1 - Nové Město, 11000
Česká republika
Tel. na makléře: +420 296 240 407
Tel. do kanceláře: +420 296 240 400
E-mail: krulichovi.team@re-max.cz

Potřebujete poradit/máte zájem o prohlídku?

* – toto pole je nutné vyplnit

Podrobné informace

Číslo zakázky:
ID 205-NP12821
Typ nemovitosti:
Komerční prostory
Druh prostor:
Jiné
Číslo podlaží:
1
Počet podlaží v objektu:
3
Plocha kanceláří:
55 m²
Druh objektu:
Cihlová
Stav objektu:
Novostavba
K nastěhování:
1. 1. 2027
Odpad:
Kanalizace
Zastavěná plocha:
72 m²
Počet parkovacích míst:
1
Typ domu:
Přízemní
Umístění objektu:
Centrum obce
Voda:
Dálkový rozvod
Energetická náročnost budovy:
G