Translate with 
MENU ZAVŘÍT

Prodej domu 84 m², Kramolna (ID 305-NP00940)

Kramolna, okres Náchod mapa

5 490 000 Kč ( za nemovitost)
GMimořádně
nehospodárná

3x
84 m2
1097 m2
1
Exkluzivně

Prodej RD Kramolna 3 KK 84 m2

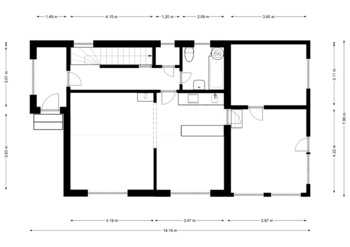
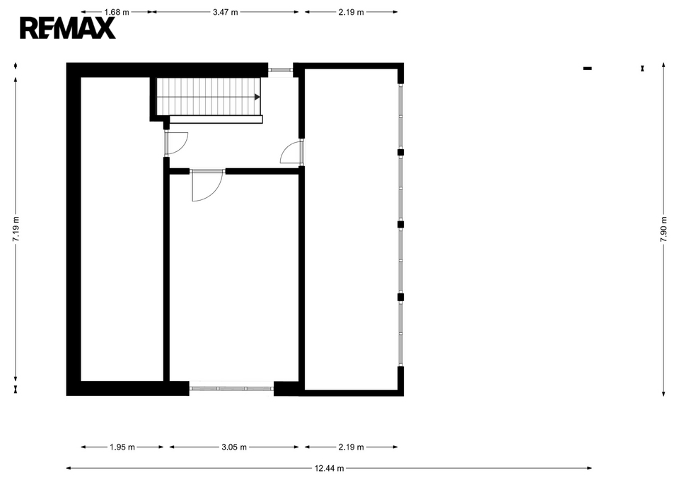
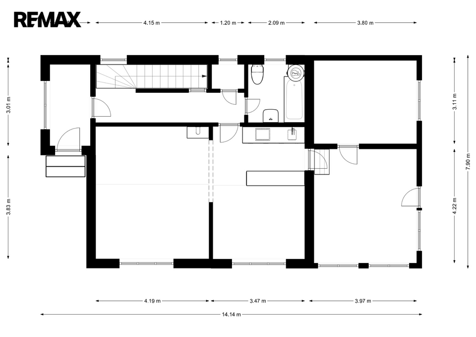
Nabízíme k prodeji starší, ale zachovalý rodinný dům, nacházející se v malebné obci Kramolna, č. p. 131 v těsné blízkosti města Náchod. Tento patrový objekt s jedním podlažím se pyšní zastavěnou plochou 214 m² a užitnou plochou 84 m², což zajišťuje dostatek prostoru pro pohodlné bydlení. Dům je částečně vybavený a jeho součástí je také sklep o ploše 6,4 m².

Nemovitost se nachází na parcele o celkové ploše 1097 m², která nabízí krásnou zahradu a dostatek prostoru pro příjemné venkovní aktivity. V okolí se rozprostírá krásná příroda, lesy a klidná místa, ideální pro relaxaci a odpočinek od městského ruchu.

Dům disponuje třemi prostornými pokoji a jeho zařízení zahrnuje radiátory, krbová kamna, bojler na elektřinu pro ohřev teplé vody, prostornou kuchyň s keramickou varnou deskou. K dispozici je také jedno parkoviště pro pohodlné parkování. Odpad je napojen na kanalizaci a přívod vody zajišťuje vodovod.

Jednou z výhod nemovitosti je její poloha v žádané lokalitě, kde je snadná dostupnost MHD a autobusové dopravy, což usnadňuje každodenní cestování. Dřevěné přístavby v okolí domu dodávají nemovitosti na charakteru a přispívají k příjemné atmosféře.

V případě zájmu o prohlídku mě neváhejte kontaktovat. Prodávající si vyhrazuje právo vybrat kupujícího na základě jím zvolených kritérií.
Cena:
5 490 000 CZK / za nemovitost
RX finance

Spočítejte si splátku hypotéky

Na kolik vás vyjde pořízení vlastního bydlení? Zadejte pár informací do naší hypoteční kalkulačky a hned si prohlédněte výsledek.

Kupní cena nemovitosti

5 490 000 Kč

Výše hypotéky

Doba splácení

Vypočítaná měsíční splátka

Úroková sazba 3.6%

260 990 Kč

Hypotéku zařídíme za vás

Ušetřete svůj čas i nervy. Naši makléři zařídí veškeré papírování a dovedou vás až k úspěšnému podpisu smlouvy v bance.

Nechte nám kontakt, náš makléř se v pracovní dny ozve do 24 hodin

* – toto pole je nutné vyplnit
Ing. Boris Oláh
REMAX Infinity
Masarykovo náměstí 392/14
Hradec Králové, 50002
Česká republika
Tel. na makléře: +420 736 640 016
Tel. do kanceláře: +420 737 580 065
E-mail: boris.olah@re-max.cz

Potřebujete poradit/máte zájem o prohlídku?

* – toto pole je nutné vyplnit

Podrobné informace

Číslo zakázky:
ID 305-NP00940
Poloha objektu:
Samostatný
Počet podlaží v objektu:
1
Užitná plocha:
84 m²
Plocha parcely:
1 097 m²
Druh objektu:
Smíšená
Stav objektu:
Velmi dobrý
Typ nemovitosti:
Domy a vily
Charakter okolní zástavby:
Obytná
K nastěhování:
2. 4. 2026
Doprava:
MHD, Autobus
Elektřina:
230 V
Odpad:
Kanalizace
Plocha zahrady:
883 m²
Zastavěná plocha:
214 m²
Počet parkovacích míst:
1
Typ domu:
Patrový
Umístění objektu:
Klidná část obce
Voda:
Dálkový rozvod
Vybaveno:
Ano
Energetická náročnost budovy:
G