Translate with 
MENU ZAVŘÍT

Prodej bytu 3+kk v osobním vlastnictví 51 m², Praha 6 - Dejvice (ID 201-NP03390)

ulice Mydlářka, Praha 6 – Dejvice mapa

8 490 000 Kč ( za nemovitost)
GMimořádně
nehospodárná

kk
3x
55 m2
1/4
Exkluzivně

Byt 3 + kk v ulici Mydlářka, Praha 6 na prodej

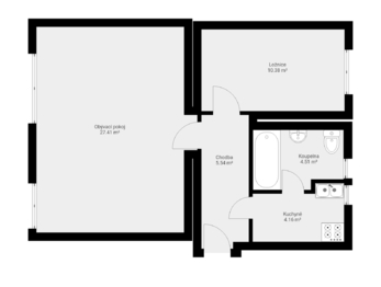
Rádi bychom vám nabídli ke koupi byt o aktuální dispozici 3+kk a výměře 52 m², který vznikl chytrou úpravou původní dispozice 1+1. Díky této úpravě nabízí byt více obytného prostoru a lepší využití jednotlivých místností.

V současnosti byt disponuje třemi pokoji, z nichž dva jsou samostatné a neprůchozí, což zajišťuje dostatek soukromí pro jednotlivé členy domácnosti. Z kuchyňského koutu je vstup do prostorné koupelny spojené s toaletou.

Jednotka se nachází v přízemí domu, přičemž je zde pouze jeden schod při vstupu, jinak je byt prakticky bezbariérový. K bytu náleží také užívání dvou sklepů, které poskytují nadstandardní úložný prostor.

O vytápění a ohřev vody se stará centrální kotelna v domě, což zajišťuje pohodlný provoz bez nutnosti vlastního řešení vytápění.

Byt je možné financovat hypotečním úvěrem, s jehož vyřízením vám rádi pomůžeme a provedeme vás celým procesem.

Pro více informací a sjednání prohlídky prosím kontaktujte makléře. Rádi vám byt osobně představíme. Prodávající si vyhrazuje právo vybrat kupujícího na základě jím zvolených kritérií.
Cena:
8 490 000 CZK / za nemovitost
Poznámka k ceně:
cena včetně provize RK, advokátní úschovy a převodu na katastru nemovitostí
RX finance

Spočítejte si splátku hypotéky

Na kolik vás vyjde pořízení vlastního bydlení? Zadejte pár informací do naší hypoteční kalkulačky a hned si prohlédněte výsledek.

Kupní cena nemovitosti

8 490 000 Kč

Výše hypotéky

Doba splácení

Vypočítaná měsíční splátka

Úroková sazba 3.6%

260 990 Kč

Hypotéku zařídíme za vás

Ušetřete svůj čas i nervy. Naši makléři zařídí veškeré papírování a dovedou vás až k úspěšnému podpisu smlouvy v bance.

Nechte nám kontakt, náš makléř se v pracovní dny ozve do 24 hodin

* – toto pole je nutné vyplnit
Mgr. Rudolf Čumpelík
REMAX Atrium
Podolská 811/138
Praha 4 - Podolí, 14700
Česká republika
Tel. na makléře: +420 603 563 734
Tel. do kanceláře: +420 606 726 515
E-mail: rudolf.cumpelik@re-max.cz

Potřebujete poradit/máte zájem o prohlídku?

* – toto pole je nutné vyplnit

Podrobné informace

Číslo zakázky:
ID 201-NP03390
Dispozice:
3+kk
Číslo podlaží:
1
Počet podlaží v objektu:
4
Užitná plocha:
51 m²
Druh objektu:
Cihlová
Stav objektu:
Dobrý
Vlastnictví:
Osobní
Typ nemovitosti:
Byty
Doprava:
Vlak, Dálnice, Silnice, MHD, Autobus
Elektřina:
230 V
Odpad:
Kanalizace
Podlahová plocha:
55 m²
Zastavěná plocha:
165 m²
Plyn:
Plynovod
Počet podlaží pod zemí:
5
Telekomunikace:
Telefon, Internet
Voda:
Dálkový rozvod
Vybaveno:
Ano
Energetická náročnost budovy:
G