Translate with 
MENU ZAVŘÍT

Pronájem bytu 2+kk v osobním vlastnictví 48 m², Český Brod (ID 205-NP12742)

ulice 28. října, Český Brod mapa

15 000 Kč ( za měsíc)
CÚsporná

kk
2x
48 m2
-1/4
Exkluzivně

Pronájem bytu 2 + kk s balkonem v Českém Brodě

Ve výhradním zastoupení vlastníka nabízím k dlouhodobému pronájmu krásný byt s balkonem v Českém Brodě.

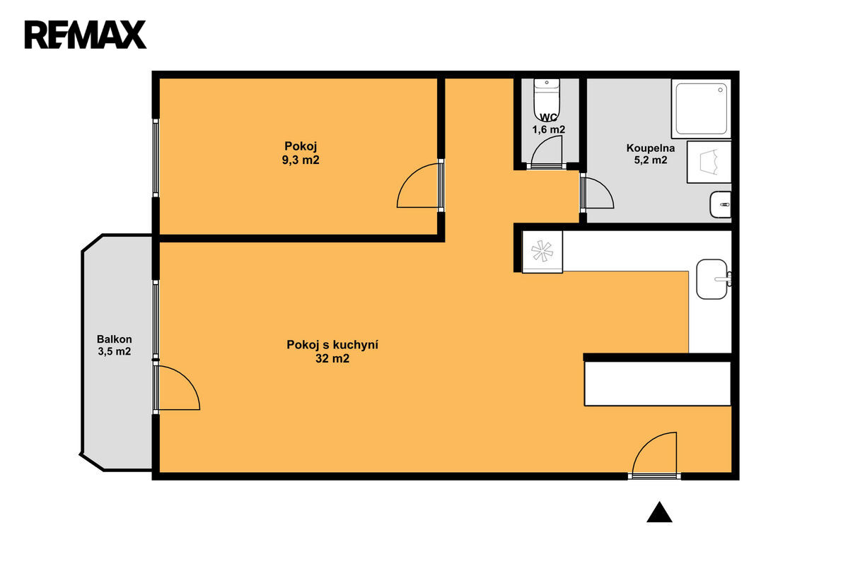
Byt o dispozici 2 + kk nabízí podlahovou plochu o velikosti 48 m2. K bytu náleží zasklený balkon (3,5 m2) a spíž. Byt prošel kompletní rekonstrukcí v roce 2021 a nyní hledá svého nájemce. Je umístěn v prvním podzemním podlaží.
Byt se sestává z obývacího pokoje s kuchyní, ložnice, chodby, koupelny a WC.

Byt je částečně vybavený – kuchyňská linka s vestavěnými spotřebiči (lednice, mrazák, trouba, varná deska, digestoř a myčka), velká šatní skříň, botník, věšák, pračka. Na oknech jsou namontovány venkovní žaluzie.

Vytápění je centrální. Parkování je možné před domem. Kousek od domu najdete potraviny. Přímo na soukromé zahradě domu je hřiště pro děti.

Díky své vynikající dopravní dostupnosti do Prahy, může být Český Brod zajímavou alternativou pro pražské bydlení. V Českém Brodě je plná občanská vybavenost. Najdete zde školy, školky, kompletní síť obchodů a služeb. Vlakem se dostanete do centra Prahy za 30 minut a autem za 25 minut na Černý Most.

Nájemné: 15 000 Kč/měsíc
Poplatky: 3 452 Kč/měsíc
Elektřina bude přepsána na nájemce. Předpokládaná záloha 3 000 Kč/měsíc.
Kauce ve výši 30 000 Kč.

Byt je k dispozici od května 2026.

V případě zájmu o prohlídku mě kontaktujte na tel. 774 30 20 12. Pronajímající si vyhrazuje právo vybrat nájemce na základě jím zvolených kritérií.
Cena:
15 000 CZK / za měsíc
Poznámka k ceně:
+ poplatky
Ing. Lucie Černá
REMAX Alfa
Spálená 97/29
Praha 1 - Nové Město, 11000
Česká republika
Tel. na makléře: +420 774 302 012
Tel. do kanceláře: +420 296 240 400
E-mail: lucie.cerna@re-max.cz

Potřebujete poradit/máte zájem o prohlídku?

* – toto pole je nutné vyplnit

Podrobné informace

Číslo zakázky:
ID 205-NP12742
Dispozice:
2+kk
Číslo podlaží:
-1
Počet podlaží v objektu:
4
Užitná plocha:
48 m²
Druh objektu:
Panelová
Stav objektu:
Po rekonstrukci
Vlastnictví:
Osobní
Typ nemovitosti:
Byty
K nastěhování:
1. 5. 2026
Odpad:
Kanalizace
Podlahová plocha:
48 m²
Plyn:
Plynovod
Umístění objektu:
Centrum obce
Vybaveno:
Ano
Energetická náročnost budovy:
C