Translate with 
MENU ZAVŘÍT

Prodej bytu 2+1 v osobním vlastnictví 49 m², Kamenný Most (ID 205-NP12811)

Kamenný Most, okres Kladno mapa

3 990 000 Kč ( za nemovitost)
GMimořádně
nehospodárná

1x
2x
64 m2
1/3
Exkluzivně

Byt 2+1 v Kamenném Mostě s dobrou dostupností do Prahy

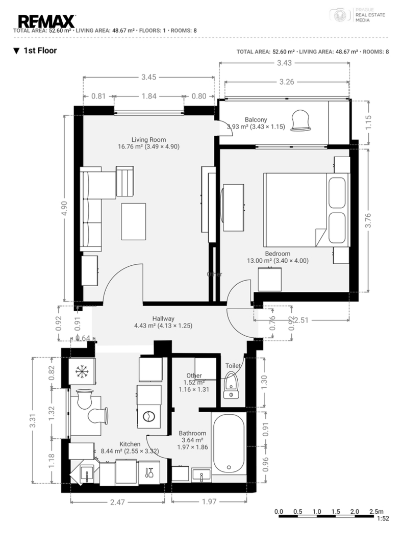
Nabízíme byt 2+1 o velikosti 52 m² v osobním vlastnictví v obci Kamenný Most, která leží mezi Kralupy nad Vltavou a Slaným a nabízí příjemné bydlení mimo městský ruch s dobrou dostupností do Prahy. Byt se nachází v 1. nadzemním podlaží cihlového domu bez výtahu, je po částečné rekonstrukci a náleží k němu lodžie a dva velké sklepy, které poskytují vítaný úložný prostor i větší komfort pro každodenní bydlení. Dispozici tvoří samostatná kuchyně, obývací pokoj, ložnice, koupelna, samostatné WC, předsíň, chodba a komory. Vytápění zajišťuje elektrický kotel umístěný přímo v bytě, ohřev vody elektrický bojler, voda je ze studny, odpad je sveden do obecní kanalizace a plyn je veden v domě, v bytě se nyní nevyužívá. Kamenný Most může zaujmout především ty, kteří hledají vlastní bydlení v dostupné vzdálenosti od města, ale zároveň chtějí po práci přijíždět domů do klidnějšího prostředí s příjemnější atmosférou. Právě spojení praktické dispozice, zázemí v podobě lodžie a sklepů a dobré dostupnosti dělá z této nabídky zajímavou volbu pro vlastní bydlení i nový začátek. Majitel si vyhrazuje právo vybrat kupujícího podle jím zvolených kritérií.
Prodávající si vyhrazuje právo vybrat kupujícího na základě jím zvolených kritérií.
Cena:
3 990 000 CZK / za nemovitost
RX finance

Spočítejte si splátku hypotéky

Na kolik vás vyjde pořízení vlastního bydlení? Zadejte pár informací do naší hypoteční kalkulačky a hned si prohlédněte výsledek.

Kupní cena nemovitosti

3 990 000 Kč

Výše hypotéky

Doba splácení

Vypočítaná měsíční splátka

Úroková sazba 3.6%

260 990 Kč

Hypotéku zařídíme za vás

Ušetřete svůj čas i nervy. Naši makléři zařídí veškeré papírování a dovedou vás až k úspěšnému podpisu smlouvy v bance.

Nechte nám kontakt, náš makléř se v pracovní dny ozve do 24 hodin

* – toto pole je nutné vyplnit
Daniel Centový
REMAX Alfa
Spálená 97/29
Praha 1 - Nové Město, 11000
Česká republika
Tel. na makléře: +420 608 225 541
Tel. do kanceláře: +420 296 240 400
E-mail: daniel.centovy@re-max.cz

Potřebujete poradit/máte zájem o prohlídku?

* – toto pole je nutné vyplnit

Podrobné informace

Číslo zakázky:
ID 205-NP12811
Dispozice:
2+1
Číslo podlaží:
1
Počet podlaží v objektu:
3
Užitná plocha:
49 m²
Druh objektu:
Smíšená
Stav objektu:
Velmi dobrý
Vlastnictví:
Osobní
Typ nemovitosti:
Byty
Odpad:
Kanalizace
Podlahová plocha:
64 m²
Zastavěná plocha:
319 m²
Energetická náročnost budovy:
G