Translate with 
MENU ZAVŘÍT

Pronájem bytu 2+kk v osobním vlastnictví 32 m², Zastávka (ID 268-NP03588)

ulice Kloboučky, Zastávka mapa

12 000 Kč ( za měsíc)
GMimořádně
nehospodárná

kk
2x
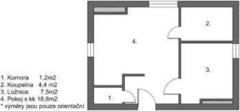
32 m2
3/3
Exkluzivně

Pronájem bytu 2+kk, Kloboučky

Ve výhradním zastoupení majitele nabízím k pronájmu příjemné podkrovní 2+kk o výměře 32 m² ve 2. patře cihlového domu na ulici Kloboučky v obci Zastávka, okres Brno-venkov.

Nabídka je vhodná pro jednotlivce nebo pár, kteří hledají klidné bydlení s dobrou dostupností do Brna. Prostor je ve velmi dobrém stavu, bez vybavení, a nový nájemce si jej tak může zařídit podle vlastních představ.

Součástí pronájmu je parkovací místo. K dispozici je také možnost využívání zahrady a hřiště u domu.

Měsíční nájemné: 12.000 Kč
Jistota: 20.000 Kč
Služby RK: 21.780 Kč včetně DPH
Elektřina a voda: měsíčně dle spotřeby

Uvedené výměry jsou pouze orientační.

V případě zájmu o prohlídku mě neváhejte kontaktovat. Pronajímající si vyhrazuje právo vybrat nájemce na základě jím zvolených kritérií.
Cena:
12 000 CZK / za měsíc
Poznámka k ceně:
+ energie, jistota a služby RK
Lada Peková
REMAX Delux
Křenová 538/22
Brno, 60200
Česká republika
Tel. na makléře: +420 602 417 229
Tel. do kanceláře: +420 602 703 897
E-mail: lada.pekova@re-max.cz

Potřebujete poradit/máte zájem o prohlídku?

* – toto pole je nutné vyplnit

Podrobné informace

Číslo zakázky:
ID 268-NP03588
Dispozice:
2+kk
Číslo podlaží:
3
Počet podlaží v objektu:
3
Užitná plocha:
32 m²
Druh objektu:
Cihlová
Stav objektu:
Velmi dobrý
Vlastnictví:
Osobní
Typ nemovitosti:
Byty
K nastěhování:
1. 5. 2026
Odpad:
Kanalizace
Podlahová plocha:
32 m²
Plyn:
Plynovod
Počet parkovacích míst:
1
Umístění objektu:
Klidná část obce
Energetická náročnost budovy:
G