Translate with 
MENU ZAVŘÍT

Prodej domu 160 m², Slavkov u Brna (ID 163-NP05376)

Slavkov u Brna, okres Vyškov mapa

5 490 000 Kč ( za nemovitost)
GMimořádně
nehospodárná

3x
160 m2
346 m2
1
Exkluzivně

Prodej rodinného domu se dvěma garážemi, dvorem a sklepem ve Slavkově u Brna

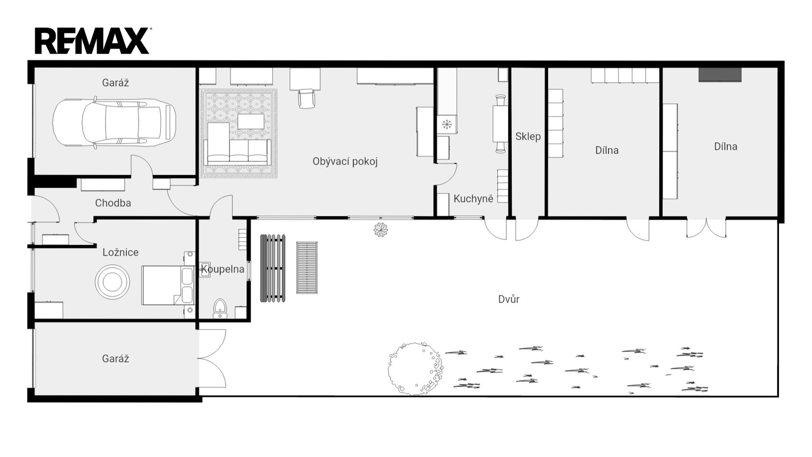
K prodeji je exkluzivně nabízen dům se dvěma garážemi, dvorem (či menší zahrádkou) a sklepem ve Slavkově u Brna. Nemovitost lze využít jak k příjemnému bydlení, tak k podnikání (k dispozici výloha). Dispozičně lze řešit jako 2+1 až 4+1 (druhá garáž vznikla přebudováním dřívějšího pokoje), případně rozšířit do podkroví. Strategické umístění u náměstí vybízí k možnosti využít nemovitost k podnikání i pro reklamní účely, přitom lze zde bydlet v klidu a soukromí. Na dům navazuje dvůr s částí využívanou jako zahrádka, též zde najdeme technické místnosti (dílna, sklad, klenutý podzemní sklep). Nemovitost je napojena na elektrickou energii, kanalizaci i obecní vodovod (ohřev vody elektrickým bojlerem). Možnost napojení na plyn. K dispozici koupelna s WC (zatím nebyla osazena vana či sprchový kout. Nemovitost je určena k rekonstrukci, nabízí však různé možnosti dispozičního uspořádání dle představ budoucího majitele. Slavkov u Brna patří k vyhledávaným turistickým, sportovním (koupaliště, tenisové kurty, stadion, sportovní hala) i kulturním centrům (silná napoleonská tradice). Vycházky do přírody lze směřovat do zámeckého parku, aleje, obory či kolem rybníka určeného k rybolovu. Výborná dopravní dostupnost (Brno, Vyškov 15 minut). Výhodnou hypotéku pomůžeme zdarma zajistit. Prodávající si vyhrazuje právo vybrat kupujícího na základě jím zvolených kritérií.
Cena:
5 490 000 CZK / za nemovitost
RX finance

Spočítejte si splátku hypotéky

Na kolik vás vyjde pořízení vlastního bydlení? Zadejte pár informací do naší hypoteční kalkulačky a hned si prohlédněte výsledek.

Kupní cena nemovitosti

5 490 000 Kč

Výše hypotéky

Doba splácení

Vypočítaná měsíční splátka

Úroková sazba 3.6%

260 990 Kč

Hypotéku zařídíme za vás

Ušetřete svůj čas i nervy. Naši makléři zařídí veškeré papírování a dovedou vás až k úspěšnému podpisu smlouvy v bance.

Nechte nám kontakt, náš makléř se v pracovní dny ozve do 24 hodin

* – toto pole je nutné vyplnit
Mgr. Květoslava Plimlová
REMAX Delta
Panská 397/2
Brno, 60200
Česká republika
Tel. na makléře: +420 725 392 726
Tel. do kanceláře: +420 607 449 860
E-mail: kvetoslava.plimlova@re-max.cz

Potřebujete poradit/máte zájem o prohlídku?

* – toto pole je nutné vyplnit

Podrobné informace

Číslo zakázky:
ID 163-NP05376
Poloha objektu:
Řadový
Počet podlaží v objektu:
1
Užitná plocha:
160 m²
Plocha parcely:
346 m²
Druh objektu:
Cihlová
Stav objektu:
Před rekonstrukcí
Typ nemovitosti:
Domy a vily
K nastěhování:
17. 4. 2026
Elektřina:
230 V, 400 V
Garáž:
Ano
Odpad:
Kanalizace
Plocha zahrady:
100 m²
Zastavěná plocha:
230 m²
Typ domu:
Přízemní
Voda:
Dálkový rozvod
Energetická náročnost budovy:
G