Translate with 
MENU ZAVŘÍT

Pronájem bytu 1+1 v osobním vlastnictví 28 m², Brno (ID 197-NP05166)

ulice Šámalova, Brno – městská část Brno-Židenice mapa

12 000 Kč ( za měsíc)
GMimořádně
nehospodárná

1x
1x
28 m2
2/0
Exkluzivně

Útulný byt 1+1 v Brně – ideální startovací bydlení s nízkými náklady

Hledáte dostupné a praktické bydlení v Brně s dobrou dostupností do centra? Tento byt 1+1 v Židenicích může být ideální volbou právě pro vás.

Nabízíme k dlouhodobému pronájmu útulný byt o dispozici 1+1 (28 m²) na ulici Šámalova, Brno – Židenice.

Byt se nachází ve 3. patře bytového domu a díky své poloze je příjemně světlý a zároveň úsporný na vytápění. Je ideální jako startovací bydlení pro jednotlivce nebo pár, který hledá klidné bydlení s dobrou dostupností do centra.

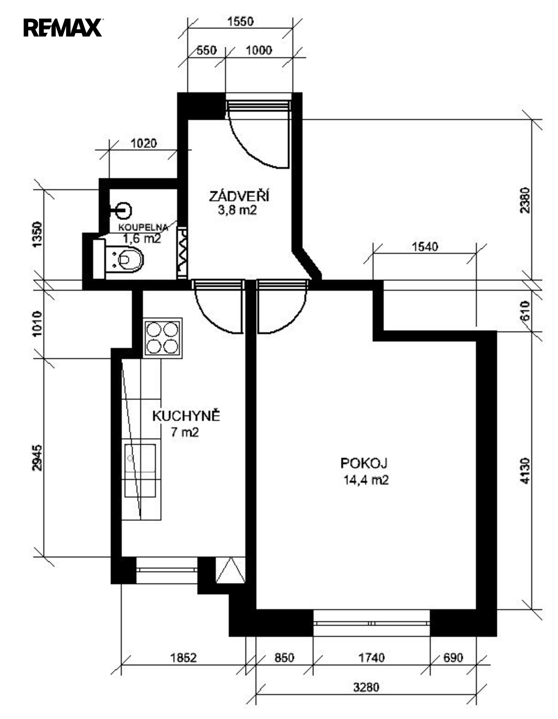
Dispozice bytu:

obytná místnost

kuchyň

koupelna

zádveří

Byt prošel částečnou rekonstrukcí a nabízí praktické uspořádání prostoru.

Byt je částečně vybavený – k dispozici je lednice, manželská postel, šatní skříň a komody.

V případě zájmu je možné po domluvě s majitelem byt vyklidit a přizpůsobit si ho dle vlastních potřeb.

Technické informace:

vytápění plynem (nízké náklady díky umístění bytu v domě)

ohřev vody elektrickým bojlerem

Náklady:

nájemné: 12 000 Kč / měsíc

úklid společných prostor: 200 Kč / měsíc

voda dle skutečné spotřeby

elektřina a plyn se převádí na nájemníka

Podmínky:

vratná kauce: 20 000 Kč

provize realitní kanceláři: 20 000 Kč

Lokalita nabízí výbornou dostupnost MHD i veškerou občanskou vybavenost v docházkové vzdálenosti.

Zvířata jsou možná po domluvě s majitelem.

K nastěhováni ihned.

Pokud hledáte dostupné bydlení v Brně s dobrou dostupností a možností přizpůsobit si prostor podle sebe, neváhejte se ozvat a domluvit si prohlídku. Pronajímající si vyhrazuje právo vybrat nájemce na základě jím zvolených kritérií.
Cena:
12 000 CZK / za měsíc
Mgr. Bc. Renata Svobodová
REMAX Magnum
Banskobystrická 819/52
Brno, 62100
Česká republika
Tel. na makléře: +420 777 606 111
Tel. do kanceláře: +420 733 679 901
E-mail: renata.svobodova@re-max.cz

Potřebujete poradit/máte zájem o prohlídku?

* – toto pole je nutné vyplnit

Podrobné informace

Číslo zakázky:
ID 197-NP05166
Dispozice:
1+1
Číslo podlaží:
2
Užitná plocha:
28 m²
Druh objektu:
Cihlová
Stav objektu:
Dobrý
Vlastnictví:
Osobní
Typ nemovitosti:
Byty
Charakter okolní zástavby:
Obytná
K nastěhování:
14. 4. 2026
Doprava:
Vlak, Dálnice, Silnice, MHD, Autobus
Elektřina:
230 V
Odpad:
Kanalizace
Ostatní rozvody:
Kabelová televize
Podlahová plocha:
28 m²
Plyn:
Plynovod
Telekomunikace:
Internet
Umístění objektu:
Centrum obce
Voda:
Zdroj pro celý objekt
Energetická náročnost budovy:
G