Translate with 
MENU ZAVŘÍT

Pronájem bytu 1+1 v osobním vlastnictví 34 m², Praha 4 - Krč (ID 201-NP03406)

ulice Horáčkova, Praha 4 – Krč mapa

17 000 Kč ( za měsíc)
CÚsporná

1x
1x
40 m2
10/12

Světlý byt 1+1 s lodžií, komorou a krásným výhledem | Praha 4 – Krč, blízko metra Pankrác

Byt, kde vás každé ráno potěší otevřený výhled do dálky a dostatek světla po celý den. K tomu praktická dispozice 1+1, prostorná lodžie a klidná lokalita se zelení.

Nabízím k dlouhodobému pronájmu světlý byt o dispozici 1+1, s podlahovou plochou 34 m², lodžií 6 m² a komorou 2 m², ve vyhledávané lokalitě Praha 4 – Krč. Byt se nachází v 9. patře (10. podlaží) domu s výtahem a nabízí příjemnou jižní orientaci a krásný otevřený výhled do dálky.

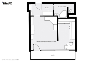
Dispozici tvoří obytný pokoj, samostatná kuchyň, vstupní chodba s velkorysým úložným prostorem, koupelna se sprchovým koutem a toaletou a praktická komora. Velkým benefitem je prostorná lodžie, která příjemně rozšiřuje obytný prostor.

Byt je částečně zařízený. K dispozici je kuchyňská linka s myčkou, plynovou varnou deskou, multifunkční troubou a plynovým sporákem. Koupelna prošla kompletní rekonstrukcí a byt působí čistě, světlým a udržovaným dojmem. Na podlahách je vinyl.

Dům je udržovaný, má výtah a pěkné společné prostory. Lokalita patří mezi velké přednosti této nabídky. Stanice metra Pankrác je v dobré dostupnosti a v bezprostředním okolí domu najdete obchody, služby i dostatek zeleně.

Byt je vhodný pro zájemce, kteří hledají dlouhodobé a klidné bydlení. Nájemní smlouva bude uzavřena na jeden rok s možností prodloužení.

Celkové měsíční náklady na bydlení činí 22.130 Kč:
- měsíční nájemné činí 17.000 Kč,
- zálohy na služby, vodu, vytápění, úklid domu a svoz odpadu 3.730 Kč měsíčně,
- záloha na plyn 400 Kč měsíčně
- a záloha na elektřinu 1.000 Kč měsíčně.

Kauce činí 20.730 Kč. Rezervační platba je 17.000 Kč a po podpisu nájemní smlouvy bude započtena jako odměna realitní kanceláře ze strany nájemce.

V případě zájmu o více informací nebo domluvení prohlídky mě prosím kontaktujte. Pronajímající si vyhrazuje právo vybrat nájemce na základě jím zvolených kritérií.
Cena:
17 000 CZK / za měsíc
Jan Halík
REMAX Atrium
Podolská 811/138
Praha 4 - Podolí, 14700
Česká republika
Tel. na makléře: +420 603 377 791
Tel. do kanceláře: +420 606 726 515
E-mail: jan.halik@re-max.cz

Potřebujete poradit/máte zájem o prohlídku?

* – toto pole je nutné vyplnit

Podrobné informace

Číslo zakázky:
ID 201-NP03406
Dispozice:
1+1
Číslo podlaží:
10
Počet podlaží v objektu:
12
Užitná plocha:
34 m²
Druh objektu:
Panelová
Stav objektu:
Velmi dobrý
Vlastnictví:
Osobní
Typ nemovitosti:
Byty
Charakter okolní zástavby:
Obytná
K nastěhování:
15. 4. 2026
Doprava:
Vlak, Dálnice, Silnice, MHD, Autobus
Elektřina:
230 V
Odpad:
Kanalizace
Ostatní rozvody:
Kabelová televize
Podlahová plocha:
40 m²
Plyn:
Plynovod
Telekomunikace:
Telefon, Internet
Umístění objektu:
Klidná část obce
Voda:
Dálkový rozvod
Vybaveno:
Ano
Energetická náročnost budovy:
C
Měrná vypočtená roční spotřeba energie v kWh/m²/rok:
84