Translate with 
MENU ZAVŘÍT

Prodej bytu 2+kk v osobním vlastnictví 44 m², Karlovy Vary (ID 294-NP01818)

ulice Bulharská, Karlovy Vary mapa

3 560 000 Kč ( za nemovitost)
GMimořádně
nehospodárná

kk
2x
44 m2
3/5
Exkluzivně

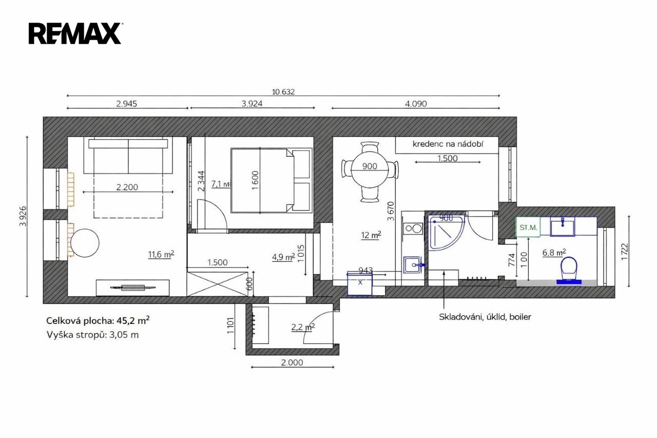
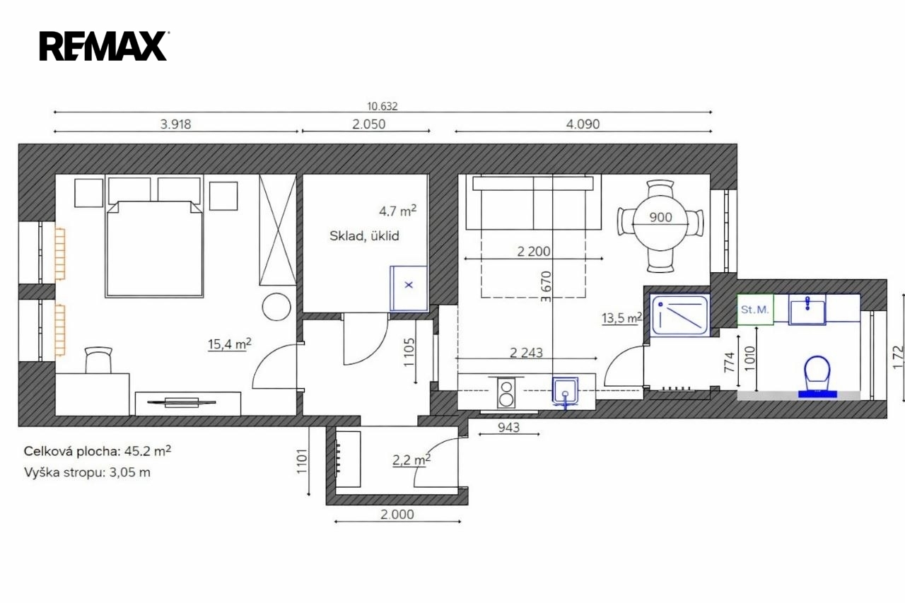
Prodej bytu 2 + KK, 43 m2, ul. Bulharská, Karlovy Vary

Bydlení v centru s vysokými stropy a možností vytvořit hodnotu podle vlastních představ.

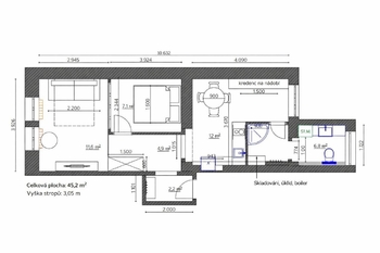
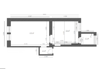
Nabízíme k prodeji byt 2+kk o velikosti 44 m² v atraktivní lokalitě – ul. Bulharská, Karlovy Vary.

Byt se nachází ve 2. patře (3. NP) a jeho hlavní předností jsou vysoké stropy 3,05 m,
které prostoru dodávají vzdušnost, eleganci a architektonický potenciál.

K bytu náleží praktická komora v mezipatře a výhodou jsou také nová plastová okna.

Stav a potenciál
Nemovitost je připravena k dokončení, což dává novému majiteli plnou kontrolu
nad finálním vzhledem, dispozicí i standardem bydlení.

Oproti běžným bytům zde neplatíte za kompromisy ani staré řešení – vše si nastavíte
moderně, úsporně a přesně podle svých požadavků.

Předpokládané investice do dokončení (bez vybavení) se pohybují cca
550 000 Kč – 900 000 Kč v závislosti na zvoleném standardu a technologiích.

Rádi zajistíme kompletní realizaci rekonstrukce i návrh interiéru dle požadavků klienta.

Investiční i vlastní bydlení
Menší byty v centru Karlových Varů mají dlouhodobě stabilní poptávku a dobrou likviditu.

Nemovitost je vhodná pro:
- dlouhodobý pronájem
- krátkodobý pronájem
- komfortní městské bydlení

Bonusové služby
Zajistíme pro vás - správu pronájmu.

Lokalita
Bulharská ulice patří mezi vyhledávané adresy v Karlových Varech.
V docházkové vzdálenosti najdete veškerou občanskou vybavenost – obchody,
restaurace, služby i centrum města.

Kupujete adresu, prostor a možnost vytvořit si moderní bydlení bez kompromisů.

Pro více informací nebo sjednání prohlídky mě neváhejte kontaktovat. Prodávající si vyhrazuje právo vybrat kupujícího na základě jím zvolených kritérií.
Cena:
3 560 000 CZK / za nemovitost
RX finance

Spočítejte si splátku hypotéky

Na kolik vás vyjde pořízení vlastního bydlení? Zadejte pár informací do naší hypoteční kalkulačky a hned si prohlédněte výsledek.

Kupní cena nemovitosti

3 560 000 Kč

Výše hypotéky

Doba splácení

Vypočítaná měsíční splátka

Úroková sazba 3.6%

260 990 Kč

Hypotéku zařídíme za vás

Ušetřete svůj čas i nervy. Naši makléři zařídí veškeré papírování a dovedou vás až k úspěšnému podpisu smlouvy v bance.

Nechte nám kontakt, náš makléř se v pracovní dny ozve do 24 hodin

* – toto pole je nutné vyplnit
Julia Sidnina
REMAX Glorion
Krymská 1056/5
Karlovy Vary, 36001
Česká republika
Tel. na makléře: +420 608 203 256
Tel. do kanceláře: +420 776 395 579
E-mail: yulia.sidnina@re-max.cz

Potřebujete poradit/máte zájem o prohlídku?

* – toto pole je nutné vyplnit

Podrobné informace

Číslo zakázky:
ID 294-NP01818
Dispozice:
2+kk
Číslo podlaží:
3
Počet podlaží v objektu:
5
Užitná plocha:
44 m²
Druh objektu:
Cihlová
Vlastnictví:
Osobní
Typ nemovitosti:
Byty
Charakter okolní zástavby:
Obchodní
K nastěhování:
17. 4. 2026
Doprava:
MHD
Odpad:
Kanalizace
Podlahová plocha:
44 m²
Zastavěná plocha:
148 m²
Plyn:
Plynovod
Umístění objektu:
Centrum obce
Voda:
Dálkový rozvod
Energetická náročnost budovy:
G