Translate with 
MENU ZAVŘÍT

Prodej bytu 3+kk v osobním vlastnictví 76 m², Písek (ID 114-NP10668)

ulice Karla Boromejského, Písek – část obce Hradiště mapa

6 250 000 Kč ( za nemovitost)
CÚsporná

kk
3x
78 m2
3/3
Exkluzivně

Prodej bytu 3+kk s balkonem, parkovacím stáním a sklepem – Písek, Hradiště

Hledáte byt, který vám nabídne prostor, světlo a pohodové bydlení bez kompromisů? Právě jste ho našli.

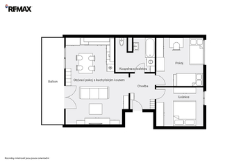
V Písku, v klidné části Hradiště na adrese Karla Boromejského, nabízím k prodeji byt o dispozici 3+kk s podlahovou plochou cca 78 m², který doplňuje balkon o velikosti 13 m². K bytu navíc patří sklep a vlastní parkovací stání přímo před domem.

Dominantou bytu je velkorysý obývací prostor s kuchyní o velikosti přes 33 m². Tohle je místo, kde se žije – vaří, stoluje, tráví čas s rodinou i přáteli. Díky velkým oknům je celý prostor krásně prosvětlený a působí vzdušně.

Byt dále nabízí dva samostatné pokoje, které skvěle poslouží jako ložnice, dětský pokoj nebo pracovna. Dispozice je praktická a funkční, bez zbytečných hluchých míst. Koupelna je řešena společně s WC a nabízí jak vanu, tak i sprchový kout, což přináší maximální komfort pro každodenní fungování.

Velkým benefitem je balkon, který příjemně rozšiřuje obytný prostor. Ideální místo na ranní kávu, večerní posezení nebo chvíle odpočinku na čerstvém vzduchu.

Byt je ve velmi dobrém stavu a nabízí i praktické prvky, které oceníte v každodenním životě – například klimatizaci, která zajistí komfort i v teplých letních dnech. Energetická náročnost budovy je třídy C, tedy úsporná.

Parkování máte vyřešené díky vlastnímu stání před domem a další úložný prostor nabízí sklep.

Lokalita Hradiště patří mezi klidnější části Písku, přitom s výbornou dostupností do centra. V okolí najdete kompletní občanskou vybavenost – školy, školky, obchody, sportoviště i přírodu na dosah. Ideální kombinace pro rodinné bydlení i pohodový život.

Tahle nemovitost dává smysl jak pro vlastní bydlení, tak i jako investice.

Pokud vás byt zaujal, ozvěte se a domluvíme si prohlídku. Rád vám ho osobně ukážu. Prodávající si vyhrazuje právo vybrat kupujícího na základě jím zvolených kritérií.
Cena:
6 250 000 CZK / za nemovitost
RX finance

Spočítejte si splátku hypotéky

Na kolik vás vyjde pořízení vlastního bydlení? Zadejte pár informací do naší hypoteční kalkulačky a hned si prohlédněte výsledek.

Kupní cena nemovitosti

6 250 000 Kč

Výše hypotéky

Doba splácení

Vypočítaná měsíční splátka

Úroková sazba 3.6%

260 990 Kč

Hypotéku zařídíme za vás

Ušetřete svůj čas i nervy. Naši makléři zařídí veškeré papírování a dovedou vás až k úspěšnému podpisu smlouvy v bance.

Nechte nám kontakt, náš makléř se v pracovní dny ozve do 24 hodin

* – toto pole je nutné vyplnit
Vladimír Rekl
REMAX Horizont
Třebešovská 2869/94
Praha 9 - Horní Počernice, 19300
Česká republika
Tel. na makléře: +420 602 141 471
Tel. do kanceláře: +420 733 149 056
E-mail: vladimir.rekl@re-max.cz

Potřebujete poradit/máte zájem o prohlídku?

* – toto pole je nutné vyplnit

Podrobné informace

Číslo zakázky:
ID 114-NP10668
Dispozice:
3+kk
Číslo podlaží:
3
Počet podlaží v objektu:
3
Užitná plocha:
76 m²
Druh objektu:
Cihlová
Stav objektu:
Velmi dobrý
Vlastnictví:
Osobní
Typ nemovitosti:
Byty
Charakter okolní zástavby:
Obytná
K nastěhování:
17. 4. 2026
Doprava:
Autobus
Elektřina:
230 V
Odpad:
Kanalizace
Podlahová plocha:
78 m²
Zastavěná plocha:
403 m²
Umístění objektu:
Klidná část obce
Voda:
Dálkový rozvod
Vybaveno:
Ano
Energetická náročnost budovy:
C