Translate with 
MENU ZAVŘÍT

Prodej domu 112 m², Soběhrdy (ID 257-NP01429)

Soběhrdy, okres Benešov mapa

11 850 000 Kč ( za nemovitost)
FVelmi
nehospodárná

4x
112 m2
1325 m2
1
Exkluzivně

Rodinný dům Soběhrdy

Nemovitost, kterou vám v zastoupení jejího majitele nabízíme na prodej, se nachází v Soběhrdech, 30 minut autem z okraje Prahy po D1 a 11 minut z centra Benešova.
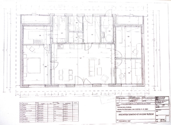
Dům je bungalov s velmi dobře využitým vnitřnmí prostorem a světlým interiérem. Dispozice je 4+kk, plánek najdete ve fotogalerii. Centrem domu je obýací pokoj s kuchyňským a jídelním koutem, ze kterého je výstup na terasu. Kromě 3 ložnic, z nichž jedna má vlastní šatnu a koupelnu, se zde nachází ještě další koupelna, komora a předsíň. Technická místnost je přístupná zvenku.
Dům je velmi pečlivě udržovaný, bez dalších úprav jej lze okamžitě užívat . K jeho nesporným výhodám patří zejména vlastní fotovoltaická elektrárna o výkonu 10 kWh, která plně pokrývá spotřebu elektřiny, přičemž ohřev vody i vytápění obstarává právě elektřina. Za loňský rok byly měsíční poplatky za elektřinu pouhých 1 500 Kč, což jsou platby za distribuci. Lze také přitápět krbem. Voda je z obecního vodovodu a odpad je svedený do kanalizace.
Na pozemku se nachází také zastřešené garážové stání pro dvě auta a místnost pro zahradní techniku.
Nemovitost je situována na okraji obce, na klidném místě. Všude kolem jsou louky, lesy a krásná středočeská krajina. Prodávající si vyhrazuje právo vybrat kupujícího na základě jím zvolených kritérií.
Cena:
11 850 000 CZK / za nemovitost
RX finance

Spočítejte si splátku hypotéky

Na kolik vás vyjde pořízení vlastního bydlení? Zadejte pár informací do naší hypoteční kalkulačky a hned si prohlédněte výsledek.

Kupní cena nemovitosti

11 850 000 Kč

Výše hypotéky

Doba splácení

Vypočítaná měsíční splátka

Úroková sazba 3.6%

260 990 Kč

Hypotéku zařídíme za vás

Ušetřete svůj čas i nervy. Naši makléři zařídí veškeré papírování a dovedou vás až k úspěšnému podpisu smlouvy v bance.

Nechte nám kontakt, náš makléř se v pracovní dny ozve do 24 hodin

* – toto pole je nutné vyplnit
Jarmila Václavová
REMAX Cool
Roztylské náměstí 393/35
Praha 4 - Záběhlice, 14100
Česká republika
Tel. na makléře: +420 606 377 788
Tel. do kanceláře: +420 728 400 586
E-mail: jarmila.vaclavova@re-max.cz

Potřebujete poradit/máte zájem o prohlídku?

* – toto pole je nutné vyplnit

Podrobné informace

Číslo zakázky:
ID 257-NP01429
Poloha objektu:
Samostatný
Počet podlaží v objektu:
1
Užitná plocha:
112 m²
Plocha parcely:
1 325 m²
Stav objektu:
Velmi dobrý
Typ nemovitosti:
Domy a vily
Charakter okolní zástavby:
Obytná
Garáž:
Ano
Odpad:
Kanalizace
Plocha zahrady:
1 213 m²
Zastavěná plocha:
125 m²
Typ domu:
Přízemní
Umístění objektu:
Klidná část obce
Voda:
Dálkový rozvod
Energetická náročnost budovy:
F