Translate with 
MENU ZAVŘÍT

Prodej domu 138 m², Úsilné (ID 343-NP00850)

Úsilné, okres České Budějovice mapa

4 200 000 Kč ( za nemovitost)
GMimořádně
nehospodárná

5+
138 m2
780 m2
2
Exkluzivně

Prodej rodinného domu v obci Úsilné, okr. České Budějovice.

Nabízíme Vám ke koupi rodinný dům s možnou dispozicí až 5+kk v obci Úsilné, okr. České Budějovice.

Dům je v původním udržovaném stavu, vyklizený a připravený ke kompletní rekonstrukci, dle vlastních představ budoucích majitelů.

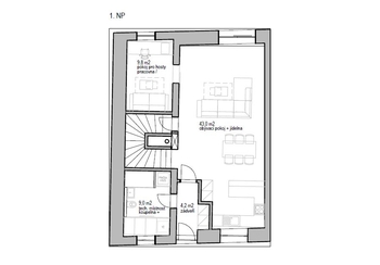
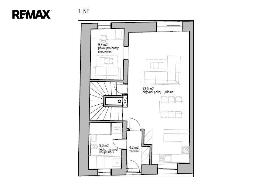
K domu máme připravenou i projektovou dokumentaci, jako jednu možnou variantu budoucí podoby, viz. půdorys ve fotografiích.

Dům se nachází na velmi klidném místě přímo v srdci obce Úsilné, necelé 2 km od města České Budějovice.

Před domem se nachází větší předzahrádka, kde je možné vybudovat 2 parkovací stání, a ještě zachovat část zahrady jako předzahrádku domu.
Za domem se nachází uzavřený dvorek, který zajišťuje dostatek soukromí, dále přístavba jako „letní“ byt (příprava na garsonku) + další stavení s dostatkem úložných prostor.
Vzadu se pak rozprostírá větší zahrada, která dřív sloužila hlavně jako ovocný sad.

Na obytném domě byla před cca 25 lety měněna nová střecha. Na pozemku je vlastní studna.
Do domu je zavedena elektřina i plyn.

Celková plocha pozemku činí 780 m2, z čehož zastavěná plocha a nádvoří činí 370 m2 a zahrada má 410 m2.

Pro více informací, či domluvení prohlídky, prosím kontaktujte přímo makléře zakázky. Prodávající si vyhrazuje právo vybrat kupujícího na základě jím zvolených kritérií.
Cena:
4 200 000 CZK / za nemovitost
RX finance

Spočítejte si splátku hypotéky

Na kolik vás vyjde pořízení vlastního bydlení? Zadejte pár informací do naší hypoteční kalkulačky a hned si prohlédněte výsledek.

Kupní cena nemovitosti

4 200 000 Kč

Výše hypotéky

Doba splácení

Vypočítaná měsíční splátka

Úroková sazba 3.6%

260 990 Kč

Hypotéku zařídíme za vás

Ušetřete svůj čas i nervy. Naši makléři zařídí veškeré papírování a dovedou vás až k úspěšnému podpisu smlouvy v bance.

Nechte nám kontakt, náš makléř se v pracovní dny ozve do 24 hodin

* – toto pole je nutné vyplnit
Bc. František Šteinhauser
REMAX G8 Reality 8
Pekárenská 1128/46
České Budějovice, 37004
Česká republika
Tel. na makléře: +420 733 785 784
Tel. do kanceláře: +420 733 785 785
E-mail: frantisek.steinhauser@re-max.cz

Potřebujete poradit/máte zájem o prohlídku?

* – toto pole je nutné vyplnit

Podrobné informace

Číslo zakázky:
ID 343-NP00850
Poloha objektu:
Rohový
Počet podlaží v objektu:
2
Užitná plocha:
138 m²
Plocha parcely:
780 m²
Druh objektu:
Smíšená
Stav objektu:
Před rekonstrukcí
Typ nemovitosti:
Domy a vily
K nastěhování:
20. 4. 2026
Doprava:
Silnice, Autobus
Elektřina:
230 V
Odpad:
Septik
Plocha zahrady:
410 m²
Zastavěná plocha:
370 m²
Plyn:
Plynovod
Typ domu:
Patrový
Umístění objektu:
Klidná část obce
Energetická náročnost budovy:
G