Translate with 
MENU ZAVŘÍT

Prodej bytu 2+1 v družstevním vlastnictví 54 m², Praha 10 - Malešice (ID 257-NP01430)

ulice Káranská, Praha 10 – Malešice mapa

6 295 000 Kč ( za nemovitost)
CÚsporná

1x
2x
54 m2
5/5
Exkluzivně

Prodej bytu 2+1 54 m², Káranská, Praha 10 - Malešice

Ráda bych vám nabídla k prodeji družstevní byt 2+1 o rozloze 54 m², nacházející se v žádané a klidné lokalitě Prahy 10 - Malešice, na adrese Káranská 341/28, v 5. patře domu bez výtahu. Byt je v původním stavu před rekonstrukcí, což představuje ideální příležitost upravit si bydlení přesně podle vlastních představ.
Vlastnictví – družstevní, anuita doplacena, převod do OV není zatím možný z tohoto důvodu nelze poskytnout byt úvěrující bance, jako předmět zástavy.
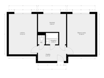
Dispozice bytu nabízí prostorný obývací pokoj (16,68 m²), samostatnou ložnici (16,62 m²), kuchyni (8,66 m²), koupelnu, oddělené WC, chodbu (6,47 m²). Byt působí vzdušně a díky umístění v domě nabízí příjemné soukromí. Dům je zateplený a velmi dobře udržovaný. K bytu patří 1 sklep. Okna jsou plastová. Do bytu je zaveden kabelový internet a společná TV anténa. Topení – dálkové ústřední, radiátory. Podlahy - parkety, linoleum. K bytu náleží sklepní kóje v suterénu domu
Velkou výhodou je samotná lokalita. Dům se nachází v tiché jednosměrné ulici, nedaleko se nachází Malešicý park a Hector Sport Centre, které jsou ideální pro procházky, nebo sport.
Dalším benefitem je výstavba nové tramvajové linky, která výrazně zlepší dopravní dostupnost.
Občanská vybavenost v okolí je velmi dobrá – v docházkové vzdálenosti najdete školu, školku, obchody, polikliniku, služby i další možnosti trávení volného času.
Byt je vhodný jak pro vlastní bydlení, tak jako investice.

Pro více informací nebo domluvení prohlídky mě neváhejte kontaktovat. Budu se těšit. Prodávající si vyhrazuje právo vybrat kupujícího na základě jím zvolených kritérií.
Prodávající si vyhrazuje právo vybrat kupujícího na základě jím zvolených kritérií.
Cena:
6 295 000 CZK / za nemovitost
Poznámka k ceně:
Včetně provize a právního servisu
RX finance

Spočítejte si splátku hypotéky

Na kolik vás vyjde pořízení vlastního bydlení? Zadejte pár informací do naší hypoteční kalkulačky a hned si prohlédněte výsledek.

Kupní cena nemovitosti

6 295 000 Kč

Výše hypotéky

Doba splácení

Vypočítaná měsíční splátka

Úroková sazba 3.6%

260 990 Kč

Hypotéku zařídíme za vás

Ušetřete svůj čas i nervy. Naši makléři zařídí veškeré papírování a dovedou vás až k úspěšnému podpisu smlouvy v bance.

Nechte nám kontakt, náš makléř se v pracovní dny ozve do 24 hodin

* – toto pole je nutné vyplnit
Iveta Vladyková
REMAX Cool
Roztylské náměstí 393/35
Praha 4 - Záběhlice, 14100
Česká republika
Tel. na makléře: +420 739 486 496
Tel. do kanceláře: +420 728 400 586
E-mail: iveta.vladykova@re-max.cz

Potřebujete poradit/máte zájem o prohlídku?

* – toto pole je nutné vyplnit

Podrobné informace

Číslo zakázky:
ID 257-NP01430
Dispozice:
2+1
Číslo podlaží:
5
Počet podlaží v objektu:
5
Užitná plocha:
54 m²
Druh objektu:
Panelová
Stav objektu:
Velmi dobrý
Vlastnictví:
Družstevní
Typ nemovitosti:
Byty
Charakter okolní zástavby:
Obytná
Elektřina:
230 V
Odpad:
Kanalizace
Podlahová plocha:
54 m²
Zastavěná plocha:
213 m²
Plyn:
Plynovod
Počet podlaží pod zemí:
1
Umístění objektu:
Klidná část obce
Voda:
Dálkový rozvod
Energetická náročnost budovy:
C