Translate with 
MENU ZAVŘÍT

Pronájem bytu 3+1 v osobním vlastnictví 79 m², Ústí nad Labem (ID 024-NP07569)

ulice Nová, Ústí nad Labem – městská část Ústí nad Labem-Střekov mapa

12 000 Kč ( za měsíc)
DMéně
úsporná

1x
3x
82 m2
8/8

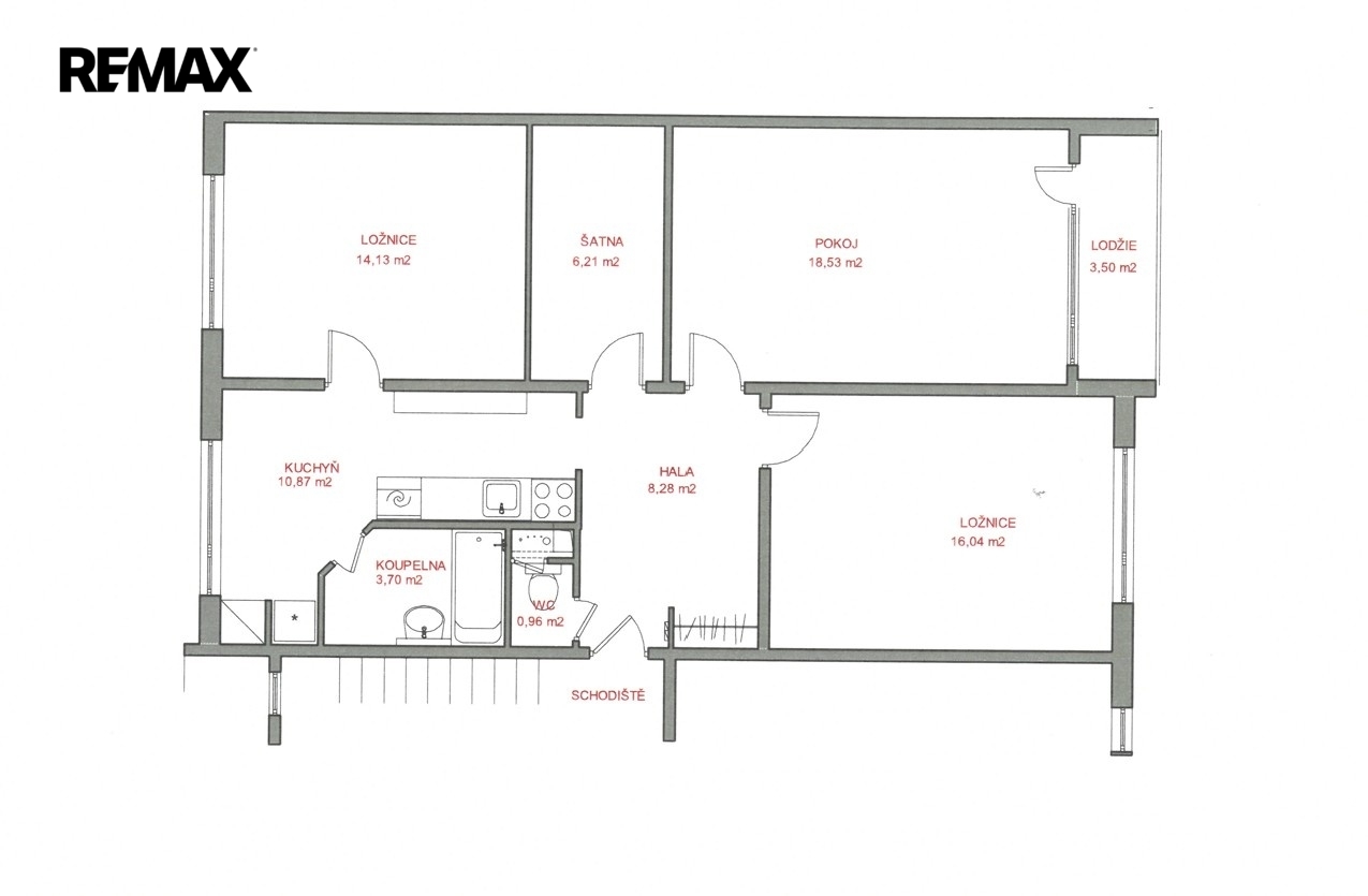
Pronájem bytu 3+1 s lodžií v Ústí nad Labem, 82 m2, Nová - Střekov

V ústecké čtvrti Střekov, v Nové ulici, nabízíme k pronájmu byt o velikosti 3+1 s lodžií a výměře 82 m². Byt se nachází v sedmém patře zatepleného panelového bytového domu s výtahem. Předností nabídky je velmi dobrý stav prostorného bytu s velkou šatnou, hezký výhled a dobrý poměr cena : velikost a stav bytu.

Cenové podmínky: Měsíční nájemné činí 12 000,- Kč, zálohy na energie a služby: vytápění 1532,- Kč, voda a ohřev vody: podle počtu osob, aktuálně 1530,- Kč + další položky ve výši 177,- Kč (osvětlení společných prostor a úklid chodeb). Smlouvu k odběru elektřiny a plynu si sjednává nájemce sám. Vratná kauce je ve výši dvou měsíčních nájmů, tj. 24 000,- Kč. Rezervační poplatek 4 000,- Kč.

Před kontaktováním makléře ke sjednání prohlídky vyplňte prosím dotazník, který se vám otevře po zkopírování této adresy: https://forms.gle/LFRw2MmpuE6SjtSZ8 do internetového prohlížeče. Makléř se vám po odeslání vyplněného formuláře ozve sám s návrhem času prohlídky. Vyplnění dotazníku je podmínkou pro uskutečnění prohlídky.

Nejbližší prohlídkový den: pátek 24.4.

Byt je ve velmi dobrém stavu. Bytové jádro je zděné, samostatná toaleta s přístupem z předsíně, v bytě je velká šatna (komora) pro uložení věcí. V kuchyni je kuchyňská linka s plynovým sporákem a myčkou nádobí (60 cm). K dispozici je kombinovaná lednice a automatická pračka (na fotografiích v inzerci).

Okna jsou plastová, s izolačními dvojskly. Orientována jsou k jihu a severu. V obytných místnostech a v kuchyni jsou plovoucí podlahy, v koupelně, na toaletě a v části předsíně je položena keramická dlažba. Celková výměra bytu je 82,58 m2, lodžie má výměru 3,5 m2. Byt je částečně vybaven nábytkem, v případě zájmu budoucího nájemce může být v bytě ponechán.

Vnitřní prostory domu jsou čisté, udržované. Zastávka MHD do 5 minut chůze od domu.

Pro více informací a domluvu prohlídky kontaktujte makléře nabídky prostřednictvím výše uvedeného odkazu na dotazník pro zájemce. Těšíme se na Vaši návštěvu!

Pronajímatel má zájem o slušné a pravidelně platící nájemníky.

Počet osob užívajících byt přiměřeně k jeho dispozici a výměře.
Pronajímající si vyhrazuje právo vybrat nájemce na základě jím zvolených kritérií.
Cena:
12 000 CZK / za měsíc
Poznámka k ceně:
cenové podmínky nájmu jsou uvedeny v textu inzerátu
Mgr. Petr Kostovič
REMAX G8 Reality 6
Mírové náměstí 3485/35b
Ústí nad Labem, 40001
Česká republika
Tel. na makléře: +420 725 858 356
Tel. do kanceláře: +420 608 027 854
E-mail: petr.kostovic@re-max.cz

Potřebujete poradit/máte zájem o prohlídku?

* – toto pole je nutné vyplnit

Podrobné informace

Číslo zakázky:
ID 024-NP07569
Dispozice:
3+1
Číslo podlaží:
8
Počet podlaží v objektu:
8
Užitná plocha:
79 m²
Druh objektu:
Panelová
Stav objektu:
Velmi dobrý
Vlastnictví:
Osobní
Typ nemovitosti:
Byty
Charakter okolní zástavby:
Obytná
K nastěhování:
1. 5. 2026
Doprava:
Vlak, Dálnice, Silnice, MHD, Autobus
Elektřina:
230 V
Odpad:
Kanalizace
Podlahová plocha:
82 m²
Plyn:
Plynovod
Počet podlaží pod zemí:
1
Telekomunikace:
Internet
Umístění objektu:
Sídliště
Voda:
Dálkový rozvod
Vybaveno:
Ano
Výtah:
Ano
Energetická náročnost budovy:
D
Měrná vypočtená roční spotřeba energie v kWh/m²/rok:
105