Translate with 
MENU ZAVŘÍT

Prodej bytu 2+kk v osobním vlastnictví 44 m², Praha 4 - Nusle (ID 114-NP10674)

ulice Družstevní, Praha 4 – Nusle mapa

7 990 000 Kč ( za nemovitost)
GMimořádně
nehospodárná

kk
2x
62 m2
5/6
Exkluzivně

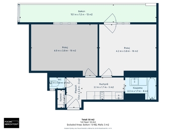
Prodej bytu 2+kk 44 m²

Praha – Nusle | byt s velkorysou terasou | celková plocha 61,6 m²

Jsou byty, které se hodnotí podle metrů.
A pak jsou byty, které si vyberete podle toho, jak se v nich cítíte.

Tento byt v ulici Družstevní patří přesně do té druhé skupiny.

Nabízí praktickou dispozici 2+kk o celkové ploše 61,6 m², z toho samotný byt cca 44 m², terasa 14,7 m² a sklepní kóje 2,5 m². A právě terasa je tím, co dává této nabídce skutečný smysl.

Nachází se v 6. nadzemním podlaží a díky své poloze je byt příjemně světlý. Dům není vybaven výtahem, což je potřeba vzít v úvahu, na druhou stranu zde získáváte více klidu, soukromí a odstupu od ruchu ulice.

Dispozice bytu zahrnuje dva samostatné pokoje, kuchyň situovanou v předsíni, koupelnu s vanou, samostatné WC a praktickou komoru. Byt je v udržovaném stavu a umožňuje okamžité bydlení, zároveň však nabízí zajímavý potenciál pro modernizaci a úpravy dle vlastních představ.

Velkým benefitem je terasa o velikosti 14,7 m² s otevřeným výhledem do okolí, která výrazně rozšiřuje užitnou hodnotu bytu. Nabízí prostor pro každodenní relax, ranní kávu i večerní posezení.

Lokalita Nuslí je dlouhodobě oblíbená pro svou dostupnost do centra, kompletní občanskou vybavenost a příjemnou atmosféru tradiční pražské čtvrti.
Prodávající si vyhrazuje právo vybrat kupujícího na základě jím zvolených kritérií.
Cena:
7 990 000 CZK / za nemovitost
RX finance

Spočítejte si splátku hypotéky

Na kolik vás vyjde pořízení vlastního bydlení? Zadejte pár informací do naší hypoteční kalkulačky a hned si prohlédněte výsledek.

Kupní cena nemovitosti

7 990 000 Kč

Výše hypotéky

Doba splácení

Vypočítaná měsíční splátka

Úroková sazba 3.6%

260 990 Kč

Hypotéku zařídíme za vás

Ušetřete svůj čas i nervy. Naši makléři zařídí veškeré papírování a dovedou vás až k úspěšnému podpisu smlouvy v bance.

Nechte nám kontakt, náš makléř se v pracovní dny ozve do 24 hodin

* – toto pole je nutné vyplnit
Jiří Kubina
REMAX Horizont
Třebešovská 2869/94
Praha 9 - Horní Počernice, 19300
Česká republika
Tel. na makléře: +420 734 485 567
Tel. do kanceláře: +420 733 149 056
E-mail: jiri.kubina@re-max.cz

Potřebujete poradit/máte zájem o prohlídku?

* – toto pole je nutné vyplnit

Podrobné informace

Číslo zakázky:
ID 114-NP10674
Dispozice:
2+kk
Číslo podlaží:
5
Počet podlaží v objektu:
6
Užitná plocha:
44 m²
Druh objektu:
Panelová
Stav objektu:
Dobrý
Vlastnictví:
Osobní
Typ nemovitosti:
Byty
Charakter okolní zástavby:
Obytná
Odpad:
Kanalizace
Podlahová plocha:
62 m²
Plyn:
Plynovod
Energetická náročnost budovy:
G