Translate with 
MENU ZAVŘÍT

Pronájem bytu 2+kk v osobním vlastnictví 43 m², Unhošť (ID 228-NP02463)

ulice Na Rybníčku, Unhošť mapa

14 000 Kč ( za měsíc)
DMéně
úsporná

kk
2x
43 m2
3/5
Exkluzivně

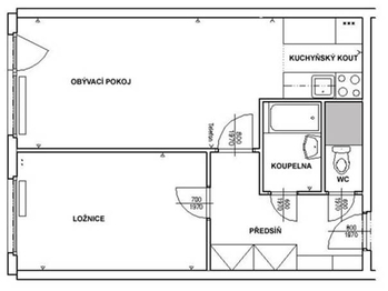
BYT 2+kk, lodžie, sklep, komora na patře

Nabízíme Vám k dlouhodobému pronájmu útulný, klidný a slunný byt s velkou lodžií ve 2. patře revitalizovaného panelového domu. V domě není výtah.

V bytě plast okna, kuch. linka, el. sporák s troubou, lednice, myčka, pračka, vestavěné skříně.

Vybavení na fotografiích lze ponechat nebo předat byt bez nábytku.

Součásti je velká sklepní kóje v přízemí a komora na patře vedle vstupu do bytu.

Příjemná lokalita v blízkosti centra Unhoště. V docházkové vzdálenosti je veškerá občanská vybavenost.

Výborná dostupnost Kladna a Prahy autem i MHD.

Volný od 1.5.2026

Pro další informace a prohlídky jsem Vám k dispozici.
Pronajímající si vyhrazuje právo vybrat nájemce na základě jím zvolených kritérií.
Cena:
14 000 CZK / za měsíc
Poznámka k ceně:
+ poplatky 4 630 CZK/2 osoby + elektřina cca 1200 CZK, kauce 37 260 CZK, RK 16 940 CZK
Karel Kulhavý
REMAX Ace
Jabloňová 2136/11
Praha 10 - Záběhlice, 10600
Česká republika
Tel. na makléře: +420 733 555 976
Tel. do kanceláře: +420 602 202 452
E-mail: karel.kulhavy@re-max.cz

Potřebujete poradit/máte zájem o prohlídku?

* – toto pole je nutné vyplnit

Podrobné informace

Číslo zakázky:
ID 228-NP02463
Dispozice:
2+kk
Číslo podlaží:
3
Počet podlaží v objektu:
5
Užitná plocha:
43 m²
Druh objektu:
Panelová
Stav objektu:
Velmi dobrý
Vlastnictví:
Osobní
Typ nemovitosti:
Byty
K nastěhování:
1. 5. 2026
Odpad:
Kanalizace
Podlahová plocha:
43 m²
Zastavěná plocha:
43 m²
Umístění objektu:
Klidná část obce
Vybaveno:
Ano
Energetická náročnost budovy:
D