Translate with 
MENU ZAVŘÍT

Pronájem bytu 2+kk v osobním vlastnictví 73 m², Praha 4 - Záběhlice (ID 257-NP01431)

ulice Hlavní, Praha 4 – Záběhlice mapa

25 700 Kč ( za měsíc)
ENehospodárná

kk
2x
77 m2
1/10
Exkluzivně

Designový byt v industriálním stylu 2+kk s lodžií – Praha 4, Záběhlice

Láká vás bydlení v netradičním otevřeném prostoru, kde se snoubí design, funkčnost a pohodlí?
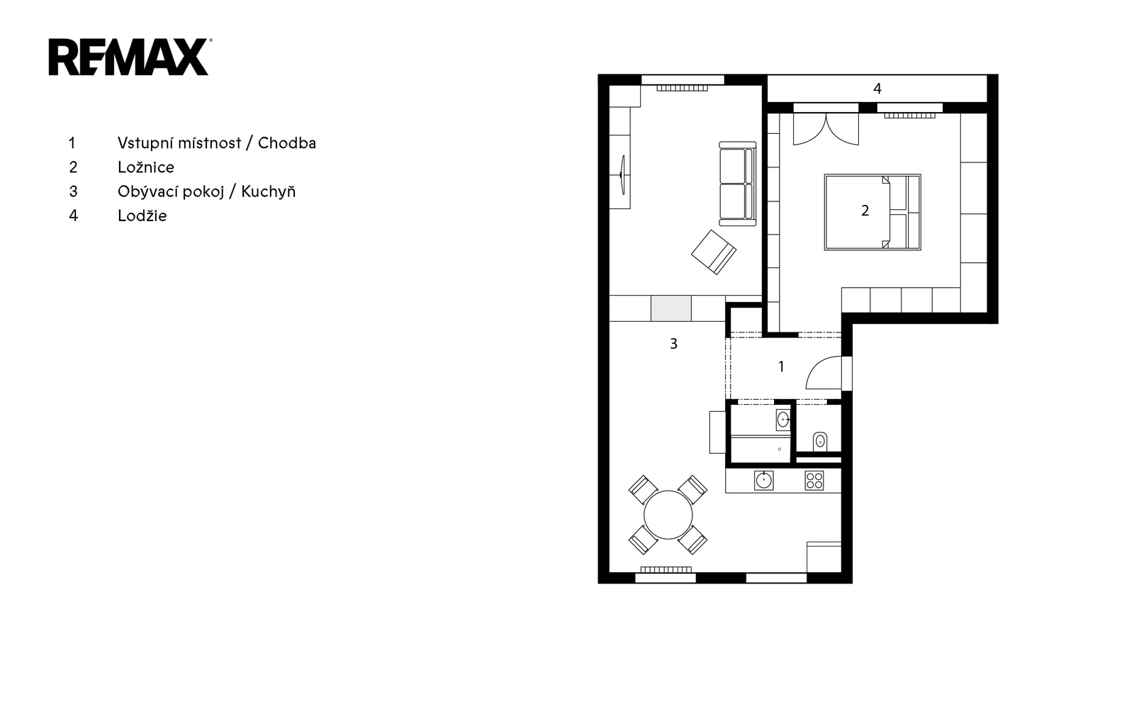
Nabízíme k pronájmu jedinečný byt 2+kk (původně 4+1), o podlahové ploše cca 73 m2 + lodžie 4 m2 , v 1. patře bytového domu v pražských Záběhlicích, který prošel promyšlenou rekonstrukcí a nabízí originální atmosféru industriálního stylu. Úpravou dispozice vznikl vzdušný, otevřený prostor s podlahovou plochou cca 41 m², propojující kuchyň, jídelnu a obývací část. Jednotlivé části jsou pouze opticky rozděleny a navazují na předsíň. Kuchyňská linka je plně vybavena: plynová varná deska, elektrická trouba, myčka, lednice s mrazákem a pračka se sušičkou. Z otevřené předsíně je vstup do koupelny se sprchovým koutem a samostatné toalety. Ložnice o velikosti cca 23 m² nabízí 7 vestavných skříní a přímý vstup na zasklenou lodžii. Další úložné prostory zajišťuje vestavná skříň v předsíni. Orientace bytu na západ (kuchyň, jídelna) a východ (obývací část, ložnice, lodžie) zajišťuje dostatek denního světla po celý den.
Použití odhalených stropů a kombinace parketových podlah a betonové stěrky dodává bytu osobitý charakter. Celkový styl podtrhuje designový nábytek, který je součástí vybavení.
Dům prošel rekonstrukcí fasády včetně zateplení (nový energetický štítek je v přípravě). Velkou výhodou je bezproblémové parkování – bez městských parkovacích zón.
V okolí je kompletní občanská vybavenost: mateřská, základní i střední školy, ZUŠ, evangelická akademie, zdravotnická škola, Penny Market, OD Centrum s Albertem, v dojezdové vzdálenosti OC Chodov. Autobusová zastávka s přímým spojením na Smíchovské nádraží / Chodov / Kačerov/ Roztyly/ Skalku / Florenc je přímo před domem s dojezdem na Metro C – Roztyly cca 10 minut. Dětská hřiště, pumptrack, skatepark v docházkové vzdálenosti. Milovníci sportu ocení blízkost areálu Hamr s množstvím sportovních aktivit, či možnosti procházek v okolí Hamerského rybníka.
Pokud Vás nabídka zaujala, neváhejte mne kontaktovat, budu se na Vás těšit při prohlídce!
Pronajímatel si vyhrazuje právo výběru nájemce dle jím zvolených kritérií.
Pronajímající si vyhrazuje právo vybrat nájemce na základě jím zvolených kritérií.
Cena:
25 700 CZK / za měsíc
Poznámka k ceně:
+ poplatky za služby 4.700,- /2os. + převod elektřiny a plynu na nájemce
Ing. Petra Kaulitzová
REMAX Cool
Roztylské náměstí 393/35
Praha 4 - Záběhlice, 14100
Česká republika
Tel. na makléře: +420 602 270 901
Tel. do kanceláře: +420 728 400 586
E-mail: petra.kaulitzova@re-max.cz

Potřebujete poradit/máte zájem o prohlídku?

* – toto pole je nutné vyplnit

Podrobné informace

Číslo zakázky:
ID 257-NP01431
Dispozice:
2+kk
Číslo podlaží:
1
Počet podlaží v objektu:
10
Užitná plocha:
73 m²
Druh objektu:
Cihlová
Stav objektu:
Velmi dobrý
Vlastnictví:
Osobní
Typ nemovitosti:
Byty
K nastěhování:
1. 5. 2026
Odpad:
Kanalizace
Podlahová plocha:
77 m²
Plyn:
Plynovod
Umístění objektu:
Klidná část obce
Voda:
Dálkový rozvod
Vybaveno:
Ano
Výtah:
Ano
Energetická náročnost budovy:
E
Měrná vypočtená roční spotřeba energie v kWh/m²/rok:
139