Translate with 
MENU ZAVŘÍT

Prodej domu 116 m², Buštěhrad (ID 320-NP00300)

ulice Javorová, Buštěhrad mapa

12 450 000 Kč ( za nemovitost)
DMéně
úsporná

3x
116 m2
814 m2
2
Exkluzivně

Prodej rodinného domu 116 m2, pozemek 814 m2, Buštěhrad u Kladna

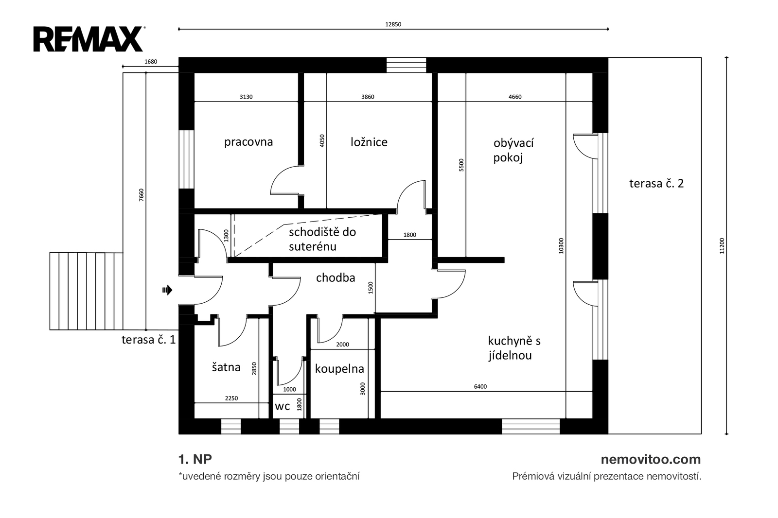
Exkluzivně Vám nabízíme k prodeji rodinný dům, který prošel kompletní rekonstrukcí. Dispozice domu je 3+kk a užitné ploše 116 m², doplněný o jednotku 2+kk (51 m²) v suterénu.
Srdcem domu je velkorysý obývací prostor s kuchyňským koutem o ploše 50 m². Je vzdušný, světlý a přirozeně propojený se zahradou. Tady se bude určitě odehrávat váš každodenní život. Od ranní kávy, přes rodinné obědy až po večery s přáteli.

Dále dům tvoří ložnice, pracovna, šatna a komfortní sociální zázemí se samostatným WC. Vše navržené tak, aby byl domov nejen krásný, ale i praktický.
A pak je tu ještě něco navíc, co dělá tuto nabídku skutečně výjimečnou. Suterén o dispozici 2+kk s vlastním sociálním zařízením. Obytný prostor, který může sloužit jako bydlení pro další členy rodiny, zázemí pro podnikání, nebo jako stabilní zdroj příjmu z pronájmu. Součástí je také garáž pro dvě auta a technická místnost. Vytápění zajišťuje samostatný plynový kondenzační kotel.
Dům stojí na pozemku o velikosti 814 m² a nabízí tím dostatek prostoru pro relaxaci i aktivní odpočinek. Praktickým bonusem je nádrž na shromažďování splaškové vody.

Na konci náhledových fotografiií jsme pro vás připravili několik vizualizací.

Lokalita Buštěhrad je ideální kombinací klidu a dostupnosti. Najdete zde veškerou základní občanskou vybavenost – školku, školu, obchody, restaurace i zdravotní služby. Milovníci pohybu ocení blízká sportoviště, běžecké a cyklistické stezky i sportovní centrum.

A co dopravní dostupnost? Autobusem jste na metru Veleslavín za cca 18 minut, autem v Praze běžně do 15–20 minut.

Buštěhrad je místo, kam se lidé stěhují, aby zpomalili…, ale přitom nic důležitého neztratili.

Přijďte se přesvědčit osobně. Rád Vás tímto domem provedu.
Prodávající si vyhrazuje právo vybrat kupujícího na základě jím zvolených kritérií.
Cena:
12 450 000 CZK / za nemovitost
RX finance

Spočítejte si splátku hypotéky

Na kolik vás vyjde pořízení vlastního bydlení? Zadejte pár informací do naší hypoteční kalkulačky a hned si prohlédněte výsledek.

Kupní cena nemovitosti

12 450 000 Kč

Výše hypotéky

Doba splácení

Vypočítaná měsíční splátka

Úroková sazba 3.6%

260 990 Kč

Hypotéku zařídíme za vás

Ušetřete svůj čas i nervy. Naši makléři zařídí veškeré papírování a dovedou vás až k úspěšnému podpisu smlouvy v bance.

Nechte nám kontakt, náš makléř se v pracovní dny ozve do 24 hodin

* – toto pole je nutné vyplnit
Ing. Martin Bárta
REMAX Welcome Home
Zenklova 2245/29
Praha 8 - Libeň, 18000
Česká republika
Tel. na makléře: +420 602 216 275
Tel. do kanceláře: +420 602 400 024
E-mail: martin.barta@re-max.cz

Potřebujete poradit/máte zájem o prohlídku?

* – toto pole je nutné vyplnit

Podrobné informace

Číslo zakázky:
ID 320-NP00300
Poloha objektu:
Samostatný
Počet podlaží v objektu:
2
Užitná plocha:
116 m²
Plocha parcely:
814 m²
Druh objektu:
Cihlová
Stav objektu:
Po rekonstrukci
Typ nemovitosti:
Domy a vily
Charakter okolní zástavby:
Obytná
K nastěhování:
30. 4. 2026
Garáž:
Ano
Odpad:
Kanalizace
Plocha zahrady:
637 m²
Zastavěná plocha:
177 m²
Plyn:
Plynovod
Počet parkovacích míst:
1
Typ domu:
Přízemní
Voda:
Dálkový rozvod
Energetická náročnost budovy:
D