Translate with 
MENU ZAVŘÍT

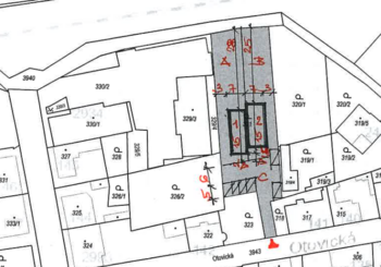
Prodej pozemku 597 m², Praha 9 - Horní Počernice (ID 114-NP10685)

ulice Otovická, Praha 9 – Horní Počernice mapa

8 358 000 Kč ( za nemovitost)

597 m2
Exkluzivně

Prodej stavebního pozemku 597m²

Exkluzivně nabízíme k prodeji polovinu stavebního pozemek parc. č. 321 o celkové výměře 597 m², nacházející se v atraktivní a klidné lokalitě Praha – Horní Počernice. k pozemku je projekt na výstavbu dvojdomů. Možnost zakoupit obě poloviny pozemku, nebo jen oddělit jednu polovinu.
Pozemek je vhodný pro výstavbu rodinného domu a jeho velkou výhodou je již zpracovaný projekt. Parcela nabízí velmi praktické řešení přístupů – hlavní vjezd je orientován z jižní strany, zatímco ze severní strany je k dispozici druhý přístup, což poskytuje větší flexibilitu při plánování stavby i budoucího využití pozemku.
Pozemek se nachází v příjemném prostředí s okolní zástavbou rodinných domů a dostatkem zeleně.
Inženýrské sítě:
Možnost napojení na všechny inženýrské sítě - elektřina, vodovod, kanalizace a plyn.
Horní Počernice patří mezi vyhledávané rezidenční lokality díky kombinaci klidného bydlení a velmi dobré dostupnosti do centra Prahy. V okolí je k dispozici kompletní občanská vybavenost – školy, školky, obchody, restaurace, sportoviště i zdravotnická zařízení. Výhodou je také rychlé napojení na Pražský okruh a dálnici D10.
Pozemek představuje ideální příležitost jak pro vlastní bydlení, tak i jako zajímavou investici.
Pro více informací nebo domluvení prohlídky nás neváhejte kontaktovat.
Prodávající si vyhrazuje právo vybrat kupujícího na základě jím zvolených kritérií.
Cena:
8 358 000 CZK / za nemovitost
Poznámka k ceně:
Včetně provize RK, právního a hypotečního servisu
RX finance

Spočítejte si splátku hypotéky

Na kolik vás vyjde pořízení vlastního bydlení? Zadejte pár informací do naší hypoteční kalkulačky a hned si prohlédněte výsledek.

Kupní cena nemovitosti

8 358 000 Kč

Výše hypotéky

Doba splácení

Vypočítaná měsíční splátka

Úroková sazba 3.6%

260 990 Kč

Hypotéku zařídíme za vás

Ušetřete svůj čas i nervy. Naši makléři zařídí veškeré papírování a dovedou vás až k úspěšnému podpisu smlouvy v bance.

Nechte nám kontakt, náš makléř se v pracovní dny ozve do 24 hodin

* – toto pole je nutné vyplnit
Martin Drlička
REMAX Horizont
Třebešovská 2869/94
Praha 9 - Horní Počernice, 19300
Česká republika
Tel. na makléře: +420 606 796 657
Tel. do kanceláře: +420 733 149 056
E-mail: martin.drlicka@re-max.cz

Potřebujete poradit/máte zájem o prohlídku?

* – toto pole je nutné vyplnit

Podrobné informace

Číslo zakázky:
ID 114-NP10685
Druh pozemku:
Pro bydlení
Celková plocha:
597 m²
Typ nemovitosti:
Pozemky
K nastěhování:
1. 5. 2026