Translate with 
MENU ZAVŘÍT

Prodej bytu 2+1 v osobním vlastnictví 54 m², Praha 3 - Žižkov (ID 020-NP11025)

ulice Na vrcholu, Praha 3 – Žižkov mapa

8 390 000 Kč ( za nemovitost)
DMéně
úsporná

1x
2x
54 m2
4/6
Exkluzivně

Prodej bytu 2+1 v osobním vlastnictví 54 m², Praha 3 - Žižkov

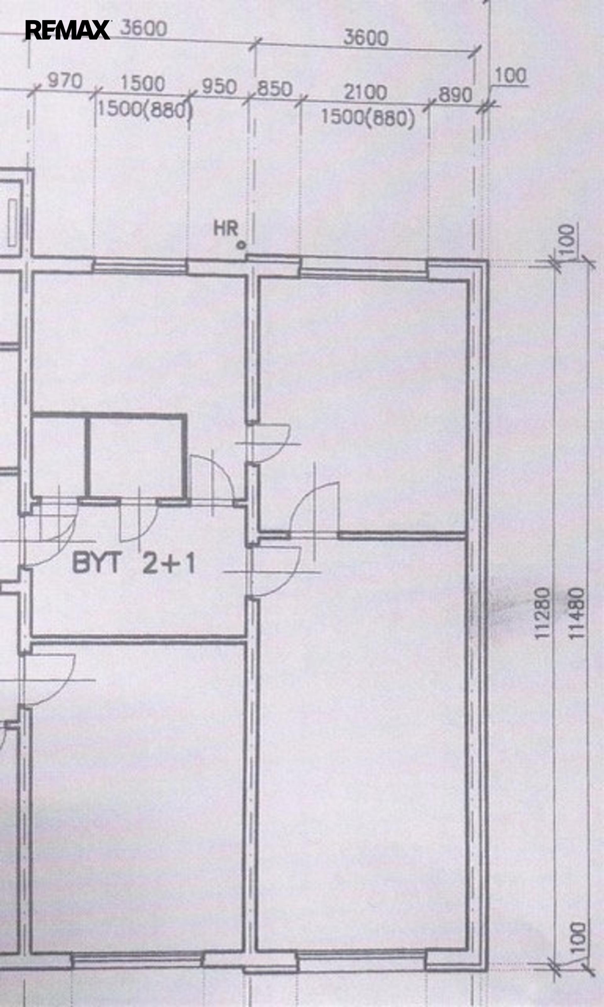
Nabízím k prodeji světlý, nově zrekonstruovaný byt 2+1 o celkové ploše 54 m², situovaný ve 3. patře revitalizovaného čtyřpatrového cihlového domu na Žižkově, v ulici Na vrcholu. Byt má samostatnou kuchyň, vybavenou novým plynovým sporákem s elektrickou troubou. V předsíni je po celé délce vestavná šatní skříň, následuje velký obývací pokoj, který je průchozí do ložnice. Koupelna je moderně řešena a se sprchovým koutem, toaleta je samostatná.
Interiér bytu tvoří plovoucí podlahy, které jsou v kombinaci s dlažbou v koupelně a kuchyni. Okna bytu jsou plastová. Byt se prodává bez vybavení, což nabízí novým majitelům příležitost přizpůsobit si prostor podle svých představ.
K bytu náleží také sklep, ideální pro uskladnění kol a dalších věcí.
Lokalita, ve které se nemovitost nachází, nabízí výbornou dostupnost do centra Prahy. Tramvajová i autobusová zastávka jsou v pěší vzdálenosti několika minut, což činí tuto lokalitu velmi atraktivní pro jakékoli formy dopravy.
Byt prošel kompletní kvalitní rekonstrukcí, která zahrnovala modernizaci veškerých prostor, a tak je připraven k okamžitému nastěhování.
V případě zájmu o prohlídku mě neváhejte kontaktovat.
Prodávající si vyhrazuje právo vybrat kupujícího na základě jím zvolených kritérií.
Cena:
8 390 000 CZK / za nemovitost
RX finance

Spočítejte si splátku hypotéky

Na kolik vás vyjde pořízení vlastního bydlení? Zadejte pár informací do naší hypoteční kalkulačky a hned si prohlédněte výsledek.

Kupní cena nemovitosti

8 390 000 Kč

Výše hypotéky

Doba splácení

Vypočítaná měsíční splátka

Úroková sazba 3.6%

260 990 Kč

Hypotéku zařídíme za vás

Ušetřete svůj čas i nervy. Naši makléři zařídí veškeré papírování a dovedou vás až k úspěšnému podpisu smlouvy v bance.

Nechte nám kontakt, náš makléř se v pracovní dny ozve do 24 hodin

* – toto pole je nutné vyplnit
Bc. Jana Kolouchová
REMAX G8 Reality
Rohanské nábřeží 678/27
Praha 8 - Karlín, 18600
Česká republika
Tel. na makléře: +420 602 802 496
Tel. do kanceláře: +420 703 180 388
E-mail: jana.kolouchova@re-max.cz

Potřebujete poradit/máte zájem o prohlídku?

* – toto pole je nutné vyplnit

Podrobné informace

Číslo zakázky:
ID 020-NP11025
Dispozice:
2+1
Číslo podlaží:
4
Počet podlaží v objektu:
6
Užitná plocha:
54 m²
Druh objektu:
Cihlová
Stav objektu:
Velmi dobrý
Vlastnictví:
Osobní
Typ nemovitosti:
Byty
K nastěhování:
29. 4. 2026
Odpad:
Kanalizace
Podlahová plocha:
54 m²
Plyn:
Plynovod
Umístění objektu:
Klidná část obce
Energetická náročnost budovy:
D