Translate with 
MENU ZAVŘÍT

Prodej bytu 4+kk v osobním vlastnictví 100 m², Velké Přílepy (ID 218-NP06732)

ulice Sportovní, Velké Přílepy mapa

10 501 000 Kč (vč. DPH, za nemovitost)
DMéně
úsporná

kk
4x
100 m2
1/2
Exkluzivně Rezervace

Světlý mezonetový byt 4+kk, 98m2, s menší zahradou

Hledáte klidné bydlení pro rodinu nedaleko Prahy?
Světlý mezonetový byt 4+kk s menší zahradou, jen necelých 18km od centra hlavního města, jistě splní požadavky vaší rodiny pro komfortní bydlení.

V prodeji krásný mezonetový byt 4+kk o užitné ploše 98,84 m2 + 2,8 m2 balkon + udržovaná zahrada s venkovním posezením.

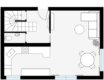
Byt je rozdělen do dvou pater (viz půdorysy ve fotogalerii): v 1.NP se nachází předsíň (8,80 m2) se schodištěm do 2. NP, toaleta (1,62 m2), komora pod schodištěm (2,3 m2), obývací pokoj (22,44 m2) s kompletně vybaveným kuchyňským koutem (9,60 m2). Z obývacího pokoje je vstup na terasu do udržované zahrady s příjemným posezením a s kolnou pro uložení zahradního a sportovního náčiní.
Ve 2.NP se nachází chodba se schodištěm (7,21 m2), pokoj s vestavěnou skříní (11,38 m2), pokoj (13,33 m2), ložnice s vestavěnou skříní (17,83 m2) a vstupem na balkon (2,80 m2) a koupelna s vanou a toaletou (6,44 m2).
Je také možné zřídit výlez na půdu, kterou lze využít jako další úložný prostor.

Ohřev vody a vytápění nemovitosti je řešeno plynovým kotlem.

K bytu náleží jedno parkovací stání přímo před domem.

Dům, ve kterém jsou pouze tři bytové jednotky se nachází v klidné části, pouze 6min chůze od centra obce Velké Přílepy.

Velké Přílepy jsou vyhledávanou rezidenční lokalitou se skvělou dopravní dostupností do Prahy (18km), Kladna (15km) či Kralup nad Vltavou (11km). Spojení s Prahou či Kladnem je zajištěno autobusovými linkami PID 316 (Bořislavka) a 350 (Dejvická/Kladno).
V obci je kompletní občanská vybavenost (Pošta, MŠ, ZŠ, Obchod, Restaurace atd.).

V okolí najdete spoustu možností pro volnočasové aktivity jako jízdárny, koupaliště s pláží, Snail driving range, Pivovar atd. Dále je zde spousta zeleně – nedaleko je např. vyhlídka Skalka nebo vyhlášená zřícenina hradu Okoř.
Cena:
10 501 000 CZK / Rezervováno
Poznámka k ceně:
Upozornění:
Prodávající si vyhrazuje právo vybrat kupujícího na základě jím zvolených kritérií.
RX finance

Spočítejte si splátku hypotéky

Na kolik vás vyjde pořízení vlastního bydlení? Zadejte pár informací do naší hypoteční kalkulačky a hned si prohlédněte výsledek.

Kupní cena nemovitosti

10 501 000 Kč

Výše hypotéky

Doba splácení

Vypočítaná měsíční splátka

Úroková sazba 3.6%

260 990 Kč

Hypotéku zařídíme za vás

Ušetřete svůj čas i nervy. Naši makléři zařídí veškeré papírování a dovedou vás až k úspěšnému podpisu smlouvy v bance.

Nechte nám kontakt, náš makléř se v pracovní dny ozve do 24 hodin

* – toto pole je nutné vyplnit
Sabina Smolová
RE/MAX Anděl
Ostrovského 253/3
Praha 5 - Smíchov, 15000
Česká republika
Tel. na makléře: +420 608 012 047
Tel. do kanceláře: +420 725 293 030
E-mail: sabina.smolova@re-max.cz

Potřebujete poradit/máte zájem o prohlídku?

* – toto pole je nutné vyplnit

Podrobné informace

Číslo zakázky:
ID 218-NP06732
Dispozice:
4+kk
Číslo podlaží:
1
Počet podlaží v objektu:
2
Podlahová plocha:
100 m²
Druh objektu:
Cihlová
Stav objektu:
Velmi dobrý
Vlastnictví:
Osobní
Typ nemovitosti:
Byty
Charakter okolní zástavby:
Obytná
Elektřina:
230 V
Odpad:
Kanalizace
Užitná plocha:
98 m²
Plocha zahrady:
165 m²
Zastavěná plocha:
193 m²
Plyn:
Plynovod
Počet parkovacích míst:
1
Umístění objektu:
Klidná část obce
Voda:
Dálkový rozvod
Energetická náročnost budovy:
D
Měrná vypočtená roční spotřeba energie v kWh/m²/rok:
165