Translate with 
MENU ZAVŘÍT

Prodej obchodních prostor 230 m², Praha 7 - Holešovice (ID 205-NP07718)

ulice Jankovcova, Praha 7 – Holešovice mapa

10 500 000 Kč ( za nemovitost)
FVelmi
nehospodárná

230 m2
Exkluzivně

Prodej nebytového prostoru 230,38 m2, 45.576,- Kč/m2, 2 vstupy ulice/domu, 2 podlaží, široké využití

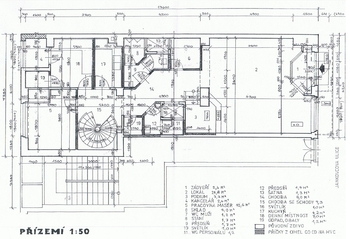
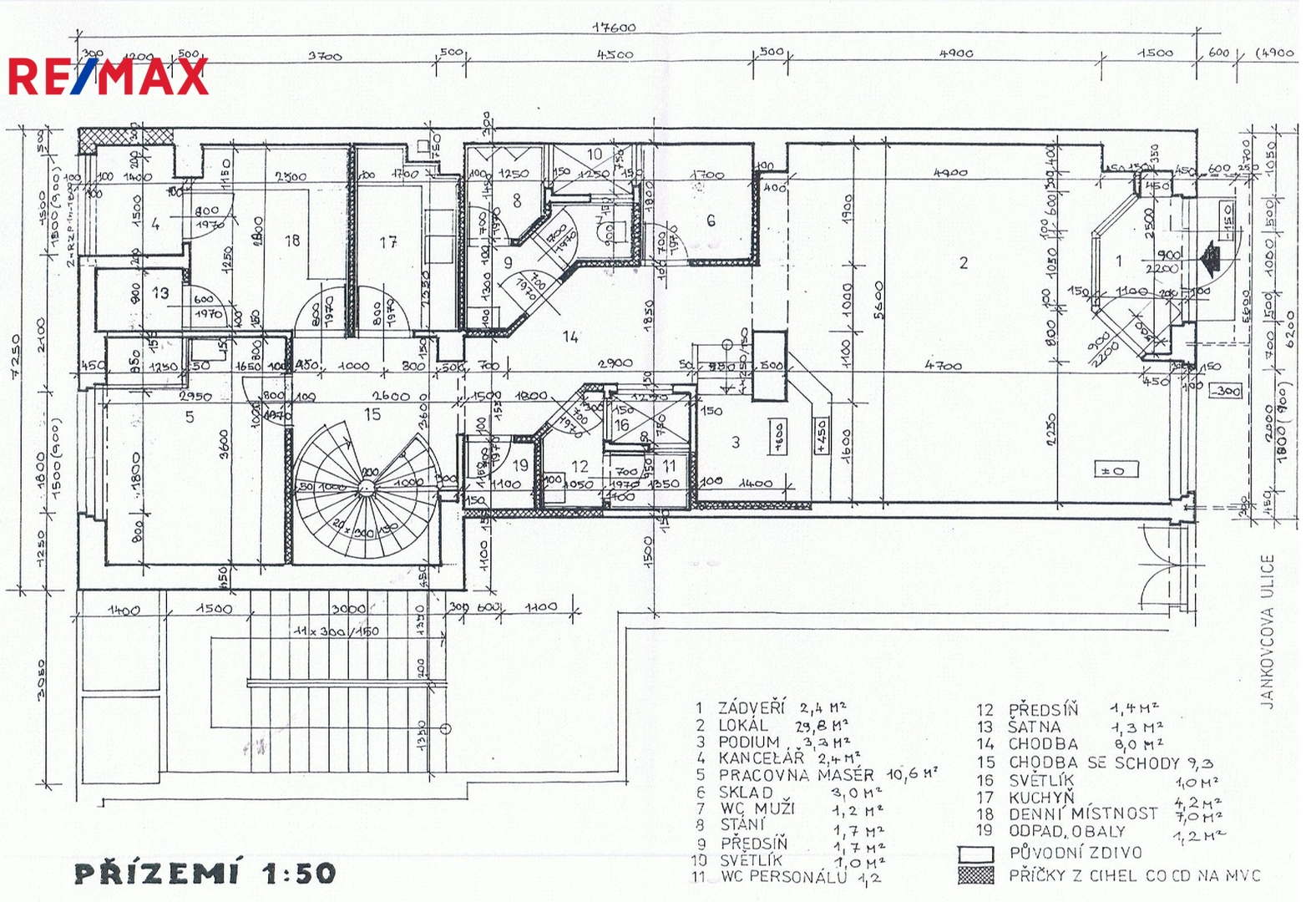
Vynikající investiční příležitost a místo pro podnikání v podobě nebytového prostoru o celkové výměře 230,38 m2 s příslušenstvím, za vynikající a bezkonkurenční cenu 45.360,- Kč/m2 plochy, který se skládá z prostoru v 1. NP o výměře 89,73 m2 s venkovním přímým vstupem z ulice a oknem (výloha) a suterénu v 1. PP o výměře 140,65 m2 s druhým vstupem z domu.

V 1. NP se nachází centrální část vhodná pro pro prodejnu, restauraci, pekařství, masnu, kavárnu, celkové posezení, recepci, přijímání klientů nebo zákazníků, na kterou navazuje chodba s příručními sklady, oddělenými WC a dvěma místnostmi s vanou a sprchovým koutem. Točitým dřevěným schodištěm se sejde do suterénu, kde jsou 2 místnosti a volný prostor 90 m2 vhodný ke cvičení, skladování (lze zajistit stálé klima), případně dalšímu posezení. V suterénu lze využít stávající rozvody studené a teplé vody, odpadů a centrálního vytápění, čímž lze zajistit sucho a celkově příznivé klima v celých spodních prostorech.

Prostor je aktuálně vybavený a zařízený podle fotografií a jeho budoucí využití je velmi široké. Může zde pokračovat noční klub, zajistíme nájemce, noční nebo denní bar, kavárna, pekárna, cukrárna, vinárna se s klením prostorem, případně zážitková gastronomie studené i teplé kuchyně. Dále se prostory mohou přeměnit v jakoukoliv prodejnu, opravnu, nebo výdejnu internetového obchodu se skladovým zázemím. Ve svatební, krejčovský, masážní nebo kosmetický salon, sídlo firmy, kancelářské a prezentační prostory, atd.

Nebytový prostor se nachází v přízemí a suterénu cihlového domu původní činžovní zástavby v ulici Jankovcova, nedaleko křižovatky ul. Dělnická a Libeňského mostu, s vynikající dostupností do centra Prahy a na metro C. V okolí je velké množství kancelářský budov, rezidenční nové i původní bytové zástavby.

Podrobnější informace a termín prohlídky lze získat a sjednat u makléře zakázky.
Cena:
10 500 000 CZK / za nemovitost
Poznámka k ceně:
Kupující neplatí provizi RK, cena je vč. provize RK a právního servisu.
Upozornění:
Prodávající si vyhrazuje právo vybrat kupujícího na základě jím zvolených kritérií.
RX finance

Spočítejte si splátku hypotéky

Na kolik vás vyjde pořízení vlastního bydlení? Zadejte pár informací do naší hypoteční kalkulačky a hned si prohlédněte výsledek.

Kupní cena nemovitosti

10 500 000 Kč

Výše hypotéky

Doba splácení

Vypočítaná měsíční splátka

Úroková sazba 3.6%

260 990 Kč

Hypotéku zařídíme za vás

Ušetřete svůj čas i nervy. Naši makléři zařídí veškeré papírování a dovedou vás až k úspěšnému podpisu smlouvy v bance.

Nechte nám kontakt, náš makléř se v pracovní dny ozve do 24 hodin

* – toto pole je nutné vyplnit
Petr Veselý
RE/MAX Alfa
Spálená 97/29
Praha 1 - Nové Město, 11000
Česká republika
Tel. na makléře: +420 733 678 220
Tel. do kanceláře: +420 296 240 400
E-mail: petr.vesely@re-max.cz

Potřebujete poradit/máte zájem o prohlídku?

* – toto pole je nutné vyplnit

Podrobné informace

Číslo zakázky:
ID 205-NP07718
Typ nemovitosti:
Komerční prostory
Druh prostor:
Obchodní
Číslo podlaží:
1
Počet podlaží v objektu:
6
Plocha kanceláří:
230 m²
Druh objektu:
Cihlová
Stav objektu:
Velmi dobrý
Charakter okolní zástavby:
Obchodní a obytná
Další nebytové prostory:
230 m²
K nastěhování:
22. 9. 2023
Doprava:
MHD
Elektřina:
230 V
Občanská vybavenost:
Kompletní síť obchodů a služeb
Odpad:
Kanalizace
Celková plocha:
230 m²
Celková plocha nebytových prostor:
230 m²
Plyn:
Plynovod
Počet podlaží pod zemí:
1
Telekomunikace:
Telefon, Internet
Topení:
Ústřední - dálkové
Typ domu:
Patrový
Voda:
Dálkový rozvod
Energetická náročnost budovy:
F
Měrná vypočtená roční spotřeba energie v kWh/m²/rok:
240