Translate with 
MENU ZAVŘÍT

Prodej domu 150 m², Vysoká (ID 096-NP04847)

Vysoká – část obce Střednice mapa

Prodáno
GMimořádně
nehospodárná

4x
150 m2
312 m2
2
Exkluzivně Prodáno

Patrový dům 4+1 se stodolou, kůlnou a dřevníkem v obci Střednice

V zastoupení majitele nabízím k prodeji rodinný patrový dům, který se nachází v obci Vysoká - Střednice. Dům je starý přibližně sto let, je v dobře udržovaném původním stavu s průběžnými dílčími rekonstrukcemi a opravami. Dům je částečně podsklepen.
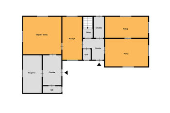
V přízemí jsou dvě ložnice (17 m2 a 13 m2), obývací pokoj (21 m2), kuchyně (13 m2), koupelna a toaleta (celkem 11 m2), předsíň (9 m2) a zádveří (5 m2).
V patře je nově udělaný podkrovní pokoj (31 m2) a je připraven prostor na vytvoření druhé kuchyně, dále pak nová koupelna (5 m2). Druhá část půdy může být také přeměněna na prostorný podkrovní pokoj.
Stavba je připojena k obecnímu vodovodu a má také vlastní studnu na zalévání. Připojení ke kanalizaci je nové. Fasáda z roku 1991, půda byla upravena po roce 2000, v té době byla také opravena střecha (část hliníková z roku 1985, druhá část je z tašek Bramac z roku 1992). Elektřina v přízemí je v hliníku, v patře v mědi. Trubky na rozvod vody jsou plastové. Okna jsou kombinací dřevěných oken se špaletovými z konce 70. let.
Voda je ohřívaná elektrickým bojlerem v přízemí i v patře. Vytápění je momentálně pouze v přízemí, plynový kotel na propan butan (nádrž na zahradě). Vaření na propanu. V jedné z ložnic v přízemí jsou krbová kamna, ve kterých se topí dřevem.
Dům má zatravněný dvůr, ze kterého je vstup do kůlny a dřevníku. Z druhé strany je zahrada se vzrostlým stromem, růžovým záhonem, venkovním posezením a stodolou.
Ve Střednici je mateřská škola, kostel, zastávka autobusů, dětské hřiště a restaurace, základní škola a ostatní infrastruktura jsou v obci Vysoká.
Nemovitost je prodávána včetně vybavení viditelného na fotografiích.
V případě zájmu o prohlídku mě neváhejte kontaktovat. Prodávající si vyhrazuje právo vybrat kupujícího na základě jím zvolených kritérií.
Cena:
Prodáno
Mgr. Kateřina Kutnohorská
REMAX Diamond
Samcova 1177/1
Praha 1 - Nové Město, 11000
Česká republika
Tel. na makléře: +420 774 274 700
Tel. do kanceláře: +420 224 247 291
E-mail: katerina.kutnohorska@re-max.cz

Potřebujete poradit/máte zájem o prohlídku?

* – toto pole je nutné vyplnit

Podrobné informace

Číslo zakázky:
ID 096-NP04847
Poloha objektu:
Samostatný
Počet podlaží v objektu:
2
Užitná plocha:
150 m²
Plocha parcely:
312 m²
Druh objektu:
Cihlová
Stav objektu:
Dobrý
Druh stavby:
Rodinný dům
Typ nemovitosti:
Domy a vily
K nastěhování:
1. 7. 2023
Zastavěná plocha:
92 m²
Typ domu:
Patrový
Umístění objektu:
Centrum obce
Vybaveno:
Ano
Energetická náročnost budovy:
G