Translate with 
MENU ZAVŘÍT

Pronájem bytu 2+1 v osobním vlastnictví 47 m², Praha 8 - Libeň (ID 114-NP08683)

ulice V mezihoří, Praha 8 – Libeň mapa

Pronajato
GMimořádně
nehospodárná

1x
2x
47 m2
2/7
Exkluzivně Pronajato

Pronájem bytu 2+1 v klidném vnitrobloku nadaleko Palmovky

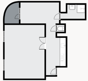
Nabízíme k pronájmu částečně zrekonstruovaný byt 2+1 nedaleko Palmovky. Je v čistém domě a tiché ulici, orientován do vnitrobloku, s výhledem na společnou zahradu. Byt se nachází v 2. patře a v domě je výtah. Je možno využít i sklep.

V bytě je nová kuchyňská linka, nová koupelna a je bez nábytku. Má malý balkon.
Kuchyň je průchozí, velký pokoj s dvěma okny a dvoukřídlými dvěřmi nabízí spoustu prostoru, druhý měnší pokoj je průchozí do koupelny a má zmíněný balkon.

Výborná dopravní dostupnost, skvělá orientace bytu, zahrada ve vnitrobloku. Pronajímající si vyhrazuje právo vybrat nájemce na základě jím zvolených kritérií.
Cena:
Pronajato
Poznámka k ceně:
Nájemné 16.000,- Kč, měsíční poplatky za služby (2 osoby) 1.461,-Kč + plyn a elektřina bude přepsána na nájemníka. 1x nájem a 1x kauce, Provize RK ve výši 1 nájmu. Požadujeme pojištění odpovědnosti.
Upozornění:
Pronajímající si vyhrazuje právo vybrat nájemce na základě jím zvolených kritérií.
Ing. Emilie Kovačičová
RE/MAX Horizont
Třebešovská 2869/94
Praha 9 - Horní Počernice, 19300
Česká republika
Tel. na makléře: +420 724 031 850
Tel. do kanceláře: +420 733 149 056
E-mail: emilie.kovacicova@re-max.cz

Potřebujete poradit/máte zájem o prohlídku?

* – toto pole je nutné vyplnit

Podrobné informace

Číslo zakázky:
ID 114-NP08683
Dispozice:
2+1
Číslo podlaží:
2
Počet podlaží v objektu:
7
Podlahová plocha:
47 m²
Druh objektu:
Cihlová
Stav objektu:
Velmi dobrý
Vlastnictví:
Osobní
Druh stavby:
Ostatní
Typ nemovitosti:
Byty
K nastěhování:
1. 7. 2023
Odpad:
Kanalizace
Užitná plocha:
47 m²
Plyn:
Plynovod
Umístění objektu:
Centrum obce
Výtah:
Ano
Energetická náročnost budovy:
G