Translate with 
MENU ZAVŘÍT

Prodej bytu 3+1 v družstevním vlastnictví 71 m², Praha 4 - Modřany (ID 010-NP04705)

ulice K Orionce, Praha 4 – Modřany mapa

8 300 000 Kč ( za nemovitost)
GMimořádně
nehospodárná

1x
3x
71 m2
2/4
Exkluzivně Rezervace

Prodej pěkného světlého bytu 3+1 s balkónem a garáží, Praha 4 - Modřany

Exkluzivní nabídka bytu 3+1, 71 m2 s balkónem a garáží na atraktivním místě Prahy 4 –Modřany.

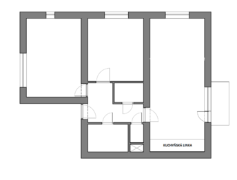
Byt o ploše 76 m2 je umístěn ve 2.podlaží pouze třípatrového domu, který se nachází na oploceném pozemku. K bytu náleží část zahrady k výhradnímu užívání a garáž (17 m2) v přízemí domu. Byt určený k rekonstrukci dle představ klienta je orientován na jih (obývací pokoj – 19m2), ložnice (13 a 8 m2) na východ a na sever (kuchyň 16 m2). Prostorná koupelna s vanou, WC samostatně. V bytě jsou k dispozici úložné prostory v komoře, další komora na patře a v přízemí domu sklep.
Vytápění bytu je zajištěno plynovou kotelnou pouze pro dům.

Byt je v družstevním vlastnictví, se splacenou anuitou, ale vzhledem k tomu, že se jedná o malé družstvo, převod do osobního vlastnictví v plánu není.

Dům je umístěn v klidné, rezidenční lokalitě mezi rodinnými domy, přesto s výbornou dopravní dostupností a s veškerou občanskou vybaveností v místě (rozsáhlá obchodní síť, mateřské, základní i střední školy, poliklinika), v blízkosti cyklostezky podél Vltavy a dostatek zeleně pro relaxaci a sportovní vyžití , včetně Modřanské rokle, Píšovického lesa nebo lesoparku Hodkovičky. Prodávající si vyhrazuje právo vybrat kupujícího na základě jím zvolených kritérií.
Cena:
8 300 000 CZK / Rezervováno
Poznámka k ceně:
cena je včetně provize a veškerého právního servisu
Upozornění:
Prodávající si vyhrazuje právo vybrat kupujícího na základě jím zvolených kritérií.
RX finance

Spočítejte si splátku hypotéky

Na kolik vás vyjde pořízení vlastního bydlení? Zadejte pár informací do naší hypoteční kalkulačky a hned si prohlédněte výsledek.

Kupní cena nemovitosti

8 300 000 Kč

Výše hypotéky

Doba splácení

Vypočítaná měsíční splátka

Úroková sazba 3.6%

260 990 Kč

Hypotéku zařídíme za vás

Ušetřete svůj čas i nervy. Naši makléři zařídí veškeré papírování a dovedou vás až k úspěšnému podpisu smlouvy v bance.

Nechte nám kontakt, náš makléř se v pracovní dny ozve do 24 hodin

* – toto pole je nutné vyplnit
Ing. Iveta Smetanová
RE/MAX Search
Na bělidle 309/31
Praha 5 - Smíchov, 15000
Česká republika
Tel. na makléře: +420 736 533 622
Tel. do kanceláře: +420 734 526 176
E-mail: iveta.smetanova@re-max.cz

Potřebujete poradit/máte zájem o prohlídku?

* – toto pole je nutné vyplnit

Podrobné informace

Číslo zakázky:
ID 010-NP04705
Dispozice:
3+1
Číslo podlaží:
2
Počet podlaží v objektu:
4
Podlahová plocha:
71 m²
Druh objektu:
Cihlová
Stav objektu:
Velmi dobrý
Vlastnictví:
Družstevní
Typ nemovitosti:
Byty
Elektřina:
230 V
Odpad:
Kanalizace
Užitná plocha:
71 m²
Zastavěná plocha:
205 m²
Plyn:
Plynovod
Umístění objektu:
Klidná část obce
Voda:
Dálkový rozvod
Vybaveno:
Ano
Energetická náročnost budovy:
G