Translate with 
MENU ZAVŘÍT

Prodej bytu 2+1 v osobním vlastnictví 54 m², Praha 4 - Michle (ID 340-NP00162)

ulice Batelovská, Praha 4 – Michle mapa

7 890 000 Kč ( za nemovitost)
GMimořádně
nehospodárná

1x
2x
54 m2
1/7
Exkluzivně

Byt 2+1 s lodžií na Budějovické na prodej

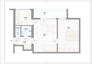
Ráda bych vám nabídla k prodeji byt o dispozici 2+1 a podlahové ploše 48 m² s lodžií 6 m², který se nachází ve vyvýšeném přízemí domu v ulici Batelovská, Praha 4 – Budějovická. K bytu náleží také sklepní kóje.

Byt je po rekonstrukci a má zděné bytové jádro. Součástí je prostorná lodžie s bezpečnostními mřížemi, která poskytuje příjemný prostor k posezení. Okna jsou orientována na severovýchod.

Měsíční náklady na 2 osoby jsou cca 7 900 Kč + 800 Kč plyn + elektřina.

Dům se nachází ve velmi dobře dostupné lokalitě s kompletní občanskou vybaveností. Stanice metra Metro C (Praha) – Budějovická je vzdálena jen několik minut chůze. V okolí se nachází obchody, restaurace, služby, zdravotnická zařízení i nákupní centrum DBK Budějovická. Přímo naproti domu je základní škola.

Lokalita nabízí výbornou dostupnost do centra i na hlavní dopravní tahy a do budoucna ji ještě zatraktivní plánovaná linka Metro D.

Byt je vhodný jak pro vlastní bydlení, tak jako investice k pronájmu. V případě zájmu o prohlídku mne neváhejte kontaktovat. Prodávající si vyhrazuje právo vybrat kupujícího na základě jím zvolených kritérií.
Cena:
7 890 000 CZK / za nemovitost
Poznámka k ceně:
včetně provize a právního servisu
Upozornění:
Prodávající si vyhrazuje právo vybrat kupujícího na základě jím zvolených kritérií.
RX finance

Spočítejte si splátku hypotéky

Na kolik vás vyjde pořízení vlastního bydlení? Zadejte pár informací do naší hypoteční kalkulačky a hned si prohlédněte výsledek.

Kupní cena nemovitosti

7 890 000 Kč

Výše hypotéky

Doba splácení

Vypočítaná měsíční splátka

Úroková sazba 3.6%

260 990 Kč

Hypotéku zařídíme za vás

Ušetřete svůj čas i nervy. Naši makléři zařídí veškeré papírování a dovedou vás až k úspěšnému podpisu smlouvy v bance.

Nechte nám kontakt, náš makléř se v pracovní dny ozve do 24 hodin

* – toto pole je nutné vyplnit
Ing. Michaela Bohatová
RE/MAX Miramar II
Pražská 709
Dolní Břežany, 25241
Česká republika
Tel. na makléře: +420 736 164 764
Tel. do kanceláře: +420 739 555 554
E-mail: michaela.bohatova@re-max.cz

Potřebujete poradit/máte zájem o prohlídku?

* – toto pole je nutné vyplnit

Podrobné informace

Číslo zakázky:
ID 340-NP00162
Dispozice:
2+1
Číslo podlaží:
1
Počet podlaží v objektu:
7
Podlahová plocha:
54 m²
Druh objektu:
Panelová
Stav objektu:
Velmi dobrý
Vlastnictví:
Osobní
Typ nemovitosti:
Byty
K nastěhování:
1. 4. 2026
Doprava:
Vlak, Dálnice, Silnice, MHD, Autobus
Odpad:
Kanalizace
Užitná plocha:
48 m²
Plyn:
Plynovod
Telekomunikace:
Telefon, Internet
Umístění objektu:
Centrum obce
Vybaveno:
Ano
Výtah:
Ano
Energetická náročnost budovy:
G