Translate with 
MENU ZAVŘÍT

Prodej domu 132 m², Vlasatice (ID 197-NP04983)

Vlasatice, okres Brno-venkov mapa

7 980 000 Kč ( za nemovitost)
BVelmi
úsporná

4x
132 m2
220 m2
2

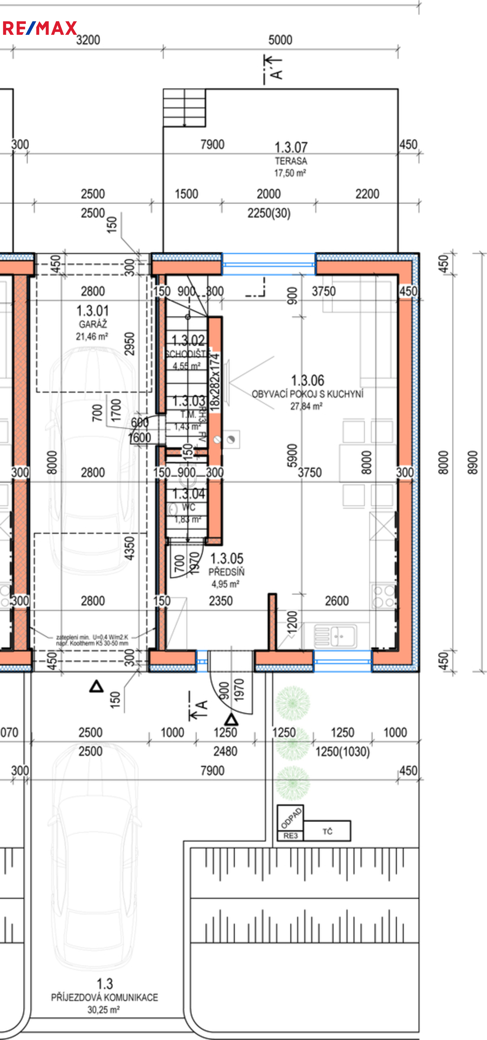
Moderní rodinný dům 4+kk - pravý s vinným sklepem, zahradou a designovým poradenstvím – Vlasatice

Moderní rodinný dům 4+kk - pravý s vinným sklepem, zahradou a designovým poradenstvím – Vlasatice
Hledáte pohodlné, zdravé a úsporné bydlení pro svou rodinu v dojezdové vzdálenosti od Brna? Tato novostavba moderního řadového domu ve Vlasaticích si vás získá hned na první pohled – a nejen tím!

Dům o dispozici 4+kk a celkové užitné ploše 132 m² je součástí developerského projektu společnosti Service Stav Development, s.r.o., která má za sebou desítky úspěšných realizací po celé ČR. K domu náleží pozemek o výměře 220 m², kde najdete praktickou zahradu a dvě soukromá parkovací stání.

Proč právě tento dům?
✅ Energeticky úsporné bydlení – dům spadá do energetické třídy B. Vytápění a chlazení zajišťuje moderní tepelné čerpadlo, v kombinaci s elektrickým bojlerem s podporou fotovoltaické elektrárny. V přízemí i v patře je instalováno podlahové topení, což přispívá k velmi nízkým provozním nákladům.

✅ Kvalitní stavební materiály – dům je postaven z cihel Porotherm 30 a Porotherm 30 AKU, které zajišťují zdravé vnitřní prostředí a vysokou akustickou pohodu.

✅ Vinný sklep (2,5 × 3 m) – ideální místo pro uskladnění vína, stylové posezení s přáteli nebo jako praktický úložný prostor.

✅ Soukromá zahrada – prostor pro dětské hry, pěstování zeleniny, letní grilování nebo klidný odpočinek.

✅ Možnost instalace krbových kamen – dům je na jejich zapojení připraven.

✅ Příprava na venkovní žaluzie – komfortní a estetické řešení stínění pro ještě vyšší pohodlí.

✅ Konzultace s interiérovým designérem v ceně – součástí nabídky je konzultace se studiem Archouse, které vám pomůže přizpůsobit interiér domu přesně vašim představám.

✅ Flexibilní řešení soukromí – možnost individuálního provedení zábran mezi domy pro větší komfort a klid.

✅ Skvělá dostupnost do Brna – 25 minut autem do centra Brna díky přímému napojení na D52.

✅ Příjemná a klidná lokalita – obec Vlasatice nabízí základní občanskou vybavenost, bezpečné prostředí a blízkost přírody.

Financování & rezervační proces
Kupní cena je rozdělena do 3 splátek:
1) při podpisu rezervační smlouvy - 240 000,- Kč
-> kompletní specifikace domu dle individuálních požadavků
2) při podpisu smlouvy o smlouvě budoucí - 1 750 000,- Kč
3) po kompletním dokončení stavby a kolaudaci v červenci 2026 - 5 990 000,- Kč

Tento dům je připraven stát se novým domovem pro rodinu, která hledá kvalitní a bezpečné zázemí s rychlým dosahem do Brna a možností individuálního doladění interiéru.

Zaujala vás tato nabídka? Neváhejte mě kontaktovat a domluvte si prohlídku!
Cena:
7 980 000 CZK / za nemovitost
Poznámka k ceně:
Včetně provize a právního servisu
Upozornění:
Prodávající si vyhrazuje právo vybrat kupujícího na základě jím zvolených kritérií.
RX finance

Spočítejte si splátku hypotéky

Na kolik vás vyjde pořízení vlastního bydlení? Zadejte pár informací do naší hypoteční kalkulačky a hned si prohlédněte výsledek.

Kupní cena nemovitosti

7 980 000 Kč

Výše hypotéky

Doba splácení

Vypočítaná měsíční splátka

Úroková sazba 3.6%

260 990 Kč

Hypotéku zařídíme za vás

Ušetřete svůj čas i nervy. Naši makléři zařídí veškeré papírování a dovedou vás až k úspěšnému podpisu smlouvy v bance.

Nechte nám kontakt, náš makléř se v pracovní dny ozve do 24 hodin

* – toto pole je nutné vyplnit
Ing. Jan Sigmund
RE/MAX Magnum
Banskobystrická 819/52
Brno, 62100
Česká republika
Tel. na makléře: +420 725 958 033
Tel. do kanceláře: +420 733 679 901
E-mail: jan.sigmund@re-max.cz

Potřebujete poradit/máte zájem o prohlídku?

* – toto pole je nutné vyplnit

Podrobné informace

Číslo zakázky:
ID 197-NP04983
Poloha objektu:
Řadový
Počet podlaží v objektu:
2
Užitná plocha:
132 m²
Plocha parcely:
220 m²
Druh objektu:
Cihlová
Stav objektu:
Projekt
Typ nemovitosti:
Domy a vily
Charakter okolní zástavby:
Obytná
Doprava:
Dálnice, Silnice, Autobus
Elektřina:
230 V, 400 V
Odpad:
Kanalizace
Plocha zahrady:
160 m²
Zastavěná plocha:
76 m²
Počet parkovacích míst:
2
Počet podlaží pod zemí:
1
Telekomunikace:
Internet
Typ domu:
Přízemní
Umístění objektu:
Klidná část obce
Voda:
Dálkový rozvod
Vybaveno:
Ano
Energetická náročnost budovy:
B