Translate with 
MENU ZAVŘÍT

Prodej domu 94 m², Pasohlávky (ID 077-NP06947)

Pasohlávky, okres Brno-venkov mapa

9 980 000 Kč ( za nemovitost)
ENehospodárná

3x
94 m2
680 m2
1
Exkluzivně

Rodinný dům 3+kk v obci Pasohlávky

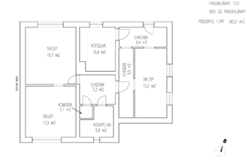
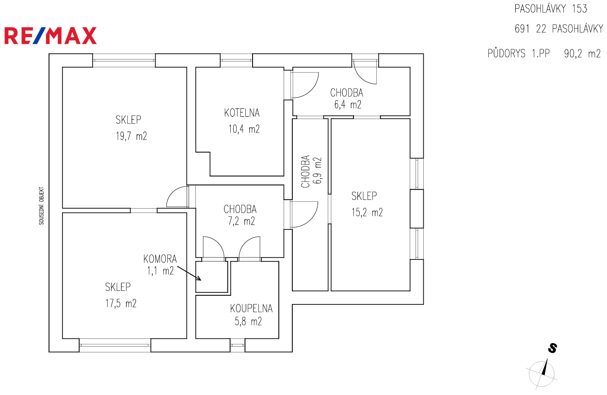
Nabízíme k prodeji přízemní rodinný dům o dispozici 3+kk, postavený v roce 1980 a situovaný v řadové zástavbě v klidné části obce Pasohlávky. Dům prošel částečnou rekonstrukcí a jeho obytná část o užitné ploše 94 m² zahrnuje obývací pokoj s kuchyňským koutem, ložnici, pokoj, koupelnu s toaletou a verandu. Nemovitost je kompletně podsklepená, přičemž sklepní prostory o celkové užitné ploše 90 m² tvoří tři místnosti, koupelna s toaletou a kotelna. Vstup do sklepní části je situován ze zadní části domu, což umožňuje pohodlné využití prostoru i případné rozšíření obytné plochy.

Z pravé strany domu je zřízen průjezd na zahradu, která poskytuje příjemné soukromí a prostor pro odpočinek. Na pozemku se nachází garáž a další parkování je možné v průjezdu i před domem, takže nemovitost nabízí dostatek místa pro více vozidel.
Obec Pasohlávky, ležící na břehu Novomlýnských nádrží, je vyhledávanou lokalitou díky krásnému okolí, dětským hřištím, venkovním posilovacím prvkům, možnostem procházek kolem jezer a množství cyklostezek. Výborná je také dopravní dostupnost do Brna i Mikulova. Pokud hledáte klidné a atraktivní místo pro svůj nový domov, tato nemovitost rozhodně stojí za prohlídku.

V případě zájmu o prohlídku prosím kontaktujte makléře. Jste‑li makléř, spolupráce je vítána. Prodávající si vyhrazuje právo vybrat kupujícího na základě jím zvolených kritérií.
Cena:
9 980 000 CZK / za nemovitost
Poznámka k ceně:
včetně provize RK a právních služeb
Upozornění:
Prodávající si vyhrazuje právo vybrat kupujícího na základě jím zvolených kritérií.
RX finance

Spočítejte si splátku hypotéky

Na kolik vás vyjde pořízení vlastního bydlení? Zadejte pár informací do naší hypoteční kalkulačky a hned si prohlédněte výsledek.

Kupní cena nemovitosti

9 980 000 Kč

Výše hypotéky

Doba splácení

Vypočítaná měsíční splátka

Úroková sazba 3.6%

260 990 Kč

Hypotéku zařídíme za vás

Ušetřete svůj čas i nervy. Naši makléři zařídí veškeré papírování a dovedou vás až k úspěšnému podpisu smlouvy v bance.

Nechte nám kontakt, náš makléř se v pracovní dny ozve do 24 hodin

* – toto pole je nutné vyplnit
Iveta Ritterová
RE/MAX Pro
Blatného 3
Brno, 61600
Česká republika
Tel. na makléře: +420 733 679 959
Tel. do kanceláře: +420 732 299 929
E-mail: iveta.ritterova@re-max.cz

Potřebujete poradit/máte zájem o prohlídku?

* – toto pole je nutné vyplnit

Podrobné informace

Číslo zakázky:
ID 077-NP06947
Poloha objektu:
Řadový
Počet podlaží v objektu:
1
Užitná plocha:
94 m²
Plocha parcely:
680 m²
Druh objektu:
Cihlová
Stav objektu:
Po rekonstrukci
Typ nemovitosti:
Domy a vily
Charakter okolní zástavby:
Obytná
Garáž:
Ano
Odpad:
Kanalizace
Plocha zahrady:
544 m²
Zastavěná plocha:
130 m²
Počet parkovacích míst:
6
Počet podlaží pod zemí:
1
Typ domu:
Přízemní
Umístění objektu:
Klidná část obce
Voda:
Dálkový rozvod
Vybaveno:
Ano
Energetická náročnost budovy:
E
Měrná vypočtená roční spotřeba energie v kWh/m²/rok:
256