Translate with 
MENU ZAVŘÍT

Prodej bytu 1+1 v osobním vlastnictví 110 m², Brno (ID 277-NP00467)

ulice Mlýnská, Brno – městská část Brno-střed mapa

6 690 000 Kč ( za nemovitost)
GMimořádně
nehospodárná

1x
1x
110 m2
5/5
Exkluzivně

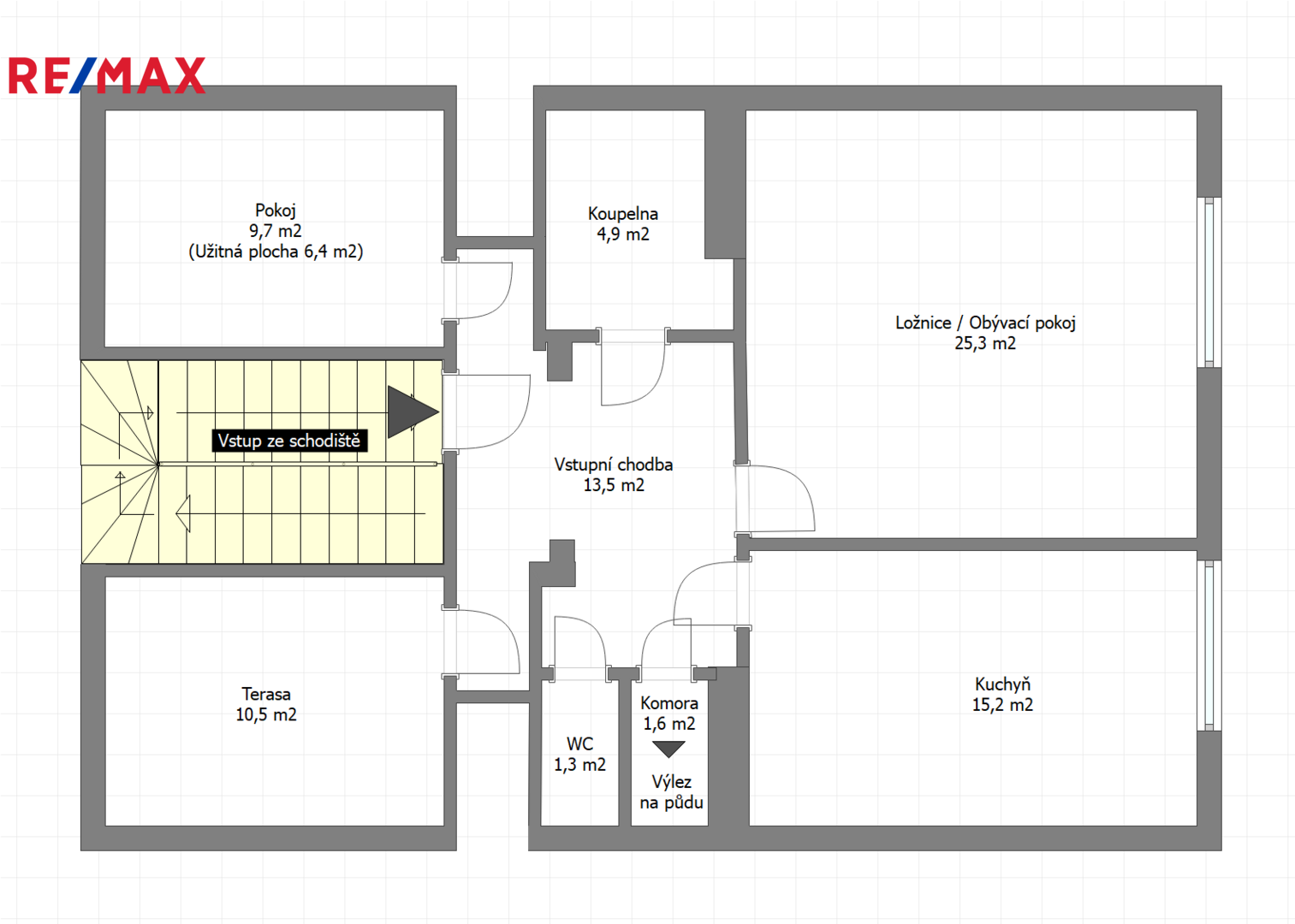
Byt 1+1 s terasou, půdou a výjimečným potenciálem

Ve výhradním zastoupení majitele nabízím byt v osobním vlastnictví o dispozici 1+1, který se nachází v 5. nadzemním podlaží zděného domu bez výtahu v atraktivní lokalitě Trnitá. Byt zabírá celé patro a díky neprůchozím pokojům poskytuje maximální soukromí. Po částečné rekonstrukci má podlahovou plochu cca 71,5 m² + terasa 10,5 m², přičemž v katastru nemovitostí je evidována původní výměra 75,9 m²– změna podílů a kolaudace úprav je k dořešení.

Dispozice
• vstupní chodba: 13,5 m²
• kuchyň: 15,2 m²
• hlavní pokoj: 25,3 m²
• menší pokoj: 9,7 m² (pracovna/šatna) - užitná plocha skrze šikminu 6,4 m²
• koupelna: 4,9 m²
• samostatné WC: 1,3 m²
• komora: 1,6 m²

Byt je v dobrém stavu. Proběhla rekonstrukce koupelny a WC, elektroinstalace je v mědi (2013, mimo světel), částečně nové rozvody vody a zateplení stropu pokoje pod střešní terasou. Díky vysokým stropům působí byt světlým a vzdušným dojmem.
Bonusové prostory
• terasa 10,5 m² (částečně zastřešená)
o voda i elektřina
o ideální pro posezení, práci z domova či menší zahrádku
• sklep 5 m²
• výhradní přístup k půdním prostorám cca 23 m2 (s vodou a elektřinou) – vhodné ke skladování
• možnost využití pochozí střechy nad bytem přístupné z půdy cca 40 m² (jižní orientace)
• využití zahrady ve vnitrobloku

Celkem tak získáváte výrazně více prostoru, než nabízí běžný byt této velikosti.
Technický stav
• zrekonstruovaná koupelna a WC
• dřevěná okna
• jižní strana domu zateplená
• samostatné měření elektřiny a plynu
• vytápění: plynové vafky
• ohřev vody: elektrický kotel

Měsíční náklady (2 osoby)
• fond oprav: 2 500 Kč
• plyn: 1 500 Kč
• elektřina: 1 400 Kč
• voda: 500 Kč
Celkově tedy cca 5 900 Kč / měsíc

Lokalita
• rezidentní parkování zóny C
• zastávka MHD Masná ~4 min chůze
• výborná dostupnost centra, dálnice i letiště
• kompletní občanská vybavenost

Shrnutí
• byt přes celé patro domu
• terasa + půda + sklep + pochozí střecha
• vhodné k bydlení i investici
• nízký počet bytů v domě
• atraktivní lokalita

Poznámka k právnímu stavu: Byt byl upravován na základě stavebního povolení, nicméně kolaudace těchto úprav a zápis změny podílů v katastru nebyly dokončeny. Budoucí vlastník bude mít povinnost kolaudaci a související administrativu dořešit. V katastru je evidována původní výměra, zatímco podlahová plocha po úpravách činí cca 71,5 m².
Cena:
6 690 000 CZK / za nemovitost
Poznámka k ceně:
včetně provize a právních služeb
Upozornění:
Prodávající si vyhrazuje právo vybrat kupujícího na základě jím zvolených kritérií.
RX finance

Spočítejte si splátku hypotéky

Na kolik vás vyjde pořízení vlastního bydlení? Zadejte pár informací do naší hypoteční kalkulačky a hned si prohlédněte výsledek.

Kupní cena nemovitosti

6 690 000 Kč

Výše hypotéky

Doba splácení

Vypočítaná měsíční splátka

Úroková sazba 3.6%

260 990 Kč

Hypotéku zařídíme za vás

Ušetřete svůj čas i nervy. Naši makléři zařídí veškeré papírování a dovedou vás až k úspěšnému podpisu smlouvy v bance.

Nechte nám kontakt, náš makléř se v pracovní dny ozve do 24 hodin

* – toto pole je nutné vyplnit
Bc. Petr Novotný
RE/MAX Permanentia
Střední 622/34a
Brno, 61200
Česká republika
Tel. na makléře: +420 728 249 964
Tel. do kanceláře: +420 603 260 651
E-mail: petr.novotny@re-max.cz

Potřebujete poradit/máte zájem o prohlídku?

* – toto pole je nutné vyplnit

Podrobné informace

Číslo zakázky:
ID 277-NP00467
Dispozice:
1+1
Číslo podlaží:
5
Počet podlaží v objektu:
5
Podlahová plocha:
110 m²
Druh objektu:
Smíšená
Stav objektu:
Dobrý
Vlastnictví:
Osobní
Typ nemovitosti:
Byty
Doprava:
Silnice, MHD, Autobus
Elektřina:
230 V
Odpad:
Kanalizace
Užitná plocha:
72 m²
Zastavěná plocha:
112 m²
Plyn:
Plynovod
Voda:
Dálkový rozvod
Energetická náročnost budovy:
G