Translate with 
MENU ZAVŘÍT

Prodej bytu 2+1 v osobním vlastnictví 53 m², Brno (ID 309-NP00491)

ulice Jugoslávská, Brno – městská část Brno-sever mapa

5 690 000 Kč ( za nemovitost)
GMimořádně
nehospodárná

1x
2x
53 m2
2/3
Exkluzivně

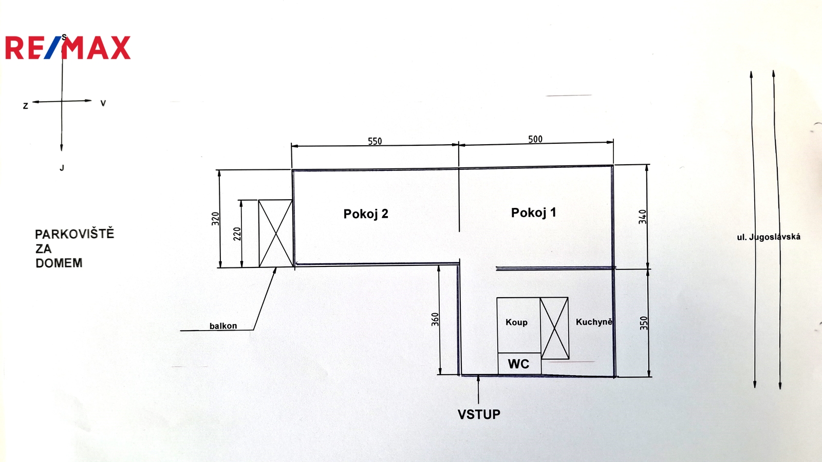
Prodej bytu 2+1, 53 m2, Brno - Černá pole

Nabízím k prodeji byt o dispozici 2+1, v osobním vlastnictví, ve druhém NP na ulici Jugoslávská v Brně - Černých polích. Byt s vlastním balkónem, sklepní kójí, s vyhrazeným parkováním ve vnitrobloku. Parkování chráněné vjezdovou bránou z hlavní ulice.
Byt je ve zatepleném domě. Je ve slušném stavu, stále obývaný. Blízko centra města, čímž lze řešit i jako investici.
Tzn, než se tam půjdeme podívat, dohodneme termín s majitelkou :-)
Cena:
5 690 000 CZK / za nemovitost
Poznámka k ceně:
cena zahrnuje veškeré náklady s prodejem spojené, vč provize RK
Upozornění:
Prodávající si vyhrazuje právo vybrat kupujícího na základě jím zvolených kritérií.
RX finance

Spočítejte si splátku hypotéky

Na kolik vás vyjde pořízení vlastního bydlení? Zadejte pár informací do naší hypoteční kalkulačky a hned si prohlédněte výsledek.

Kupní cena nemovitosti

5 690 000 Kč

Výše hypotéky

Doba splácení

Vypočítaná měsíční splátka

Úroková sazba 3.6%

260 990 Kč

Hypotéku zařídíme za vás

Ušetřete svůj čas i nervy. Naši makléři zařídí veškeré papírování a dovedou vás až k úspěšnému podpisu smlouvy v bance.

Nechte nám kontakt, náš makléř se v pracovní dny ozve do 24 hodin

* – toto pole je nutné vyplnit
Oldřich Křípač
RE/MAX Alfa 2
Koperníkova 4526/1
Brno, 61500
Česká republika
Tel. na makléře: +420 731 691 539
Tel. do kanceláře: +420 737 265 555
E-mail: oldrich.kripac@re-max.cz

Potřebujete poradit/máte zájem o prohlídku?

* – toto pole je nutné vyplnit

Podrobné informace

Číslo zakázky:
ID 309-NP00491
Dispozice:
2+1
Číslo podlaží:
2
Počet podlaží v objektu:
3
Podlahová plocha:
53 m²
Druh objektu:
Smíšená
Stav objektu:
Velmi dobrý
Vlastnictví:
Osobní
Typ nemovitosti:
Byty
Charakter okolní zástavby:
Obytná
Odpad:
Kanalizace
Užitná plocha:
51 m²
Zastavěná plocha:
417 m²
Plyn:
Plynovod
Energetická náročnost budovy:
G