Translate with 
MENU ZAVŘÍT

Prodej bytu 3+1 v osobním vlastnictví 101 m², Praha 5 - Smíchov (ID 205-NP11878)

ulice Nad Palatou, Praha 5 – Smíchov mapa

11 490 000 Kč ( za nemovitost)
DMéně
úsporná

1x
3x
101 m2
2/4
Exkluzivně

Prostorný mezonet kousek od metra Anděl

Snili jste o rodinném bydlení v klidné části Prahy s výbornou dostupností?
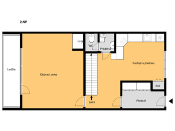
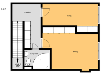
Pak nepřehlédněte tento nadprůměrně prostorný mezonet 3+1 (94m2) s velkou lodžií (+7 m2), sklepem (+6 m2) a překrásnou neveřejnou zahradou jen pár kroků od zastávky Hybšmanka a celkem 10 min jízdy MHD od metra Anděl.

Co jej činí ideálním?
- Klid - ulice je neuvěřitelně tichá, jezdí sem v podstatě jen místní a pošta
- Dostupnost - z metra Anděl vás doveze MHD až ke schodům do uzamčené zahrady (při aktuální výluce to i s přestupem trvá cca 10 min)
- Životní prostor - 3 samostatné pokoje a velká kuchyň s jídelnou poskytují dost místa jak pro společně trávený čas, tak pro soukromí. Při troše dobré vůle lze byt díky novým úpravám využít i dvougeneračně(!)
- Hromady úložných prostor - kromě již zmíněného sklepa najdete v bytě 10(!) vestavěných skříní a spíž
- Vlastní uzamčená zahrada s posezením a hracím prostorem pro děti
- Bezproblémové parkování v ulici
- Spousta zeleně kolem (jak u domu, tak v okolí - Ladronka, Strahov...)
- Kompletní infrastruktura v blízkosti

Chcete vědět více, nebo si rovnou domluvit prohlídku?
Zavolejte - tento byt může být novým domovem právě pro vás a rádi vám jej ukážeme naživo. Těšíme se na vás!
Spolupráce s realitními makléři je vítána a podporována!
Cena:
11 490 000 CZK / za nemovitost
Poznámka k ceně:
Cena zahrnuje právní servis, advokátní úschovu i provizi RK.
Upozornění:
Prodávající si vyhrazuje právo vybrat kupujícího na základě jím zvolených kritérií.
RX finance

Spočítejte si splátku hypotéky

Na kolik vás vyjde pořízení vlastního bydlení? Zadejte pár informací do naší hypoteční kalkulačky a hned si prohlédněte výsledek.

Kupní cena nemovitosti

11 490 000 Kč

Výše hypotéky

Doba splácení

Vypočítaná měsíční splátka

Úroková sazba 3.6%

260 990 Kč

Hypotéku zařídíme za vás

Ušetřete svůj čas i nervy. Naši makléři zařídí veškeré papírování a dovedou vás až k úspěšnému podpisu smlouvy v bance.

Nechte nám kontakt, náš makléř se v pracovní dny ozve do 24 hodin

* – toto pole je nutné vyplnit
Ing. Petr Šoupal
RE/MAX Alfa
Spálená 97/29
Praha 1 - Nové Město, 11000
Česká republika
Tel. na makléře: +420 771 218 788
Tel. do kanceláře: +420 296 240 400
E-mail: petrsoupal.team@re-max.cz

Potřebujete poradit/máte zájem o prohlídku?

* – toto pole je nutné vyplnit

Podrobné informace

Číslo zakázky:
ID 205-NP11878
Dispozice:
3+1
Číslo podlaží:
2
Počet podlaží v objektu:
4
Podlahová plocha:
101 m²
Druh objektu:
Smíšená
Stav objektu:
Velmi dobrý
Vlastnictví:
Osobní
Typ nemovitosti:
Byty
Doprava:
Dálnice, Silnice, MHD, Autobus
Elektřina:
230 V
Odpad:
Kanalizace
Ostatní rozvody:
Kabelové rozvody
Užitná plocha:
94 m²
Plocha zahrady:
1 641 m²
Zastavěná plocha:
888 m²
Plyn:
Plynovod
Telekomunikace:
Internet
Umístění objektu:
Klidná část obce
Voda:
Dálkový rozvod
Vybaveno:
Ano
Energetická náročnost budovy:
D