Translate with 
MENU ZAVŘÍT

Prodej domu 250 m², Kostelec nad Černými lesy (ID 218-NP06606)

ulice Pražská, Kostelec nad Černými lesy mapa

7 480 000 Kč ( za nemovitost)
GMimořádně
nehospodárná

250 m2
156 m2
1
Exkluzivně

Prodej komerčního objektu Kostelec nad Černými lesy

Ve výhradním zastoupení nabízíme k prodeji historický dům přímo ve středu města Kostelec nad Černými lesy, počátek stavby byl zahájen v roce 1841. Dům se nachází přímo na náměstí a lze jej využít ke komerčním účelům a zároveň i k bydlení. Jedná se o památkovou zónu s velkým potenciálem pro podnikání.

V přízemí se nyní nachází večerka, zadní část přízemí je momentálně nevyužívána – lze využít jako skladovací prostor, nebo případně zvětšit a rozšířit stávající prodejnu. V horní části domu se nachází dvě bytové jednotky – jedna je obývána majiteli večerky, druhá bytová jednotka je prázdná. Každý z bytů má samostatný odběr elektřiny i samostatný vchod. V půdních prostorech se nachází bývalý ateliér a půda. Dům je podsklepený, ve sklepě je vlastní studna. Zaparkovat lze bezproblémově za domem.
Objekt vyžaduje rekonstrukci včetně střechy. Budoucího majitele čekají stavební úpravy, které se však rychle mohou díky potenciálu domu zúročit.
Objekt je napojen na kanalizaci a obecní vodovod.
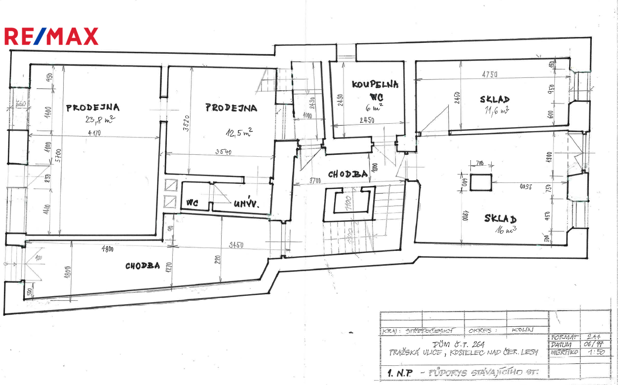
Dispoziční řešení:
Přízemí: Prodejna, chodba, sklad k prodejně, sociální zařízení, koupelna
1. Patro Byt 1: Kuchyň, obývací pokoj, pokoj, ložnice
Byt 2: Kuchyň, obývací pokoj, pokoj, koupelna
+ sklep a půdní prostory. Výměra vnitřních prostor je orientační, překreslené půdorysy budou do inzerátu ještě dodatečně vloženy.

Lokalita Kostelce nad Černými lesy je vyhledávaná pro svou plnou občanskou vybavenost, která zahrnuje školy, obchody, restaurace a další služby. Díky skvělému dopravnímu spojení do Prahy, Kolína a Kutné Hory je tato nemovitost ideální pro podnikatelské záměry s možností vlastního bydlení.

Nemovitost není zatížena hypotečním úvěrem ani jiným právním omezením.
V případě zájmu o prohlídku mě neváhejte kontaktovat.
Cena:
7 480 000 CZK / za nemovitost
Poznámka k ceně:
Upozornění:
Prodávající si vyhrazuje právo vybrat kupujícího na základě jím zvolených kritérií.
RX finance

Spočítejte si splátku hypotéky

Na kolik vás vyjde pořízení vlastního bydlení? Zadejte pár informací do naší hypoteční kalkulačky a hned si prohlédněte výsledek.

Kupní cena nemovitosti

7 480 000 Kč

Výše hypotéky

Doba splácení

Vypočítaná měsíční splátka

Úroková sazba 3.6%

260 990 Kč

Hypotéku zařídíme za vás

Ušetřete svůj čas i nervy. Naši makléři zařídí veškeré papírování a dovedou vás až k úspěšnému podpisu smlouvy v bance.

Nechte nám kontakt, náš makléř se v pracovní dny ozve do 24 hodin

* – toto pole je nutné vyplnit
Jiřina Laštovková
RE/MAX Anděl
Ostrovského 253/3
Praha 5 - Smíchov, 15000
Česká republika
Tel. na makléře: +420 725 039 903
Tel. do kanceláře: +420 725 293 030
E-mail: jirina.lastovkova@re-max.cz

Potřebujete poradit/máte zájem o prohlídku?

* – toto pole je nutné vyplnit

Podrobné informace

Číslo zakázky:
ID 218-NP06606
Poloha objektu:
Řadový
Počet podlaží v objektu:
1
Užitná plocha:
250 m²
Plocha parcely:
156 m²
Druh objektu:
Cihlová
Stav objektu:
Před rekonstrukcí
Typ nemovitosti:
Domy a vily
Charakter okolní zástavby:
Obchodní
K nastěhování:
3. 6. 2025
Elektřina:
230 V
Odpad:
Kanalizace
Zastavěná plocha:
156 m²
Typ domu:
Přízemní
Umístění objektu:
Centrum obce
Energetická náročnost budovy:
G