Translate with 
MENU ZAVŘÍT

Prodej domu 209 m², Rašovice (ID 268-NP03243)

Rašovice, okres Vyškov mapa

5 500 000 Kč ( za nemovitost)
GMimořádně
nehospodárná

5+
209 m2
330 m2
2
Exkluzivně

Prostorný RD 6+kk se zahrádkou

Zamilovali jste se do jižní Moravy a oblasti kolem historického Slavkova? Máte velkou rodinu a hledáte nový domov? Pak tato nabídka je přesně to pravé pro vás.

Ve výhradním zastoupení majitelky vám nabízíme k prodeji rodinný dům v obci Rašovice, okres Vyškov, vzdálené pouhých 6 km od Slavkova u Brna.
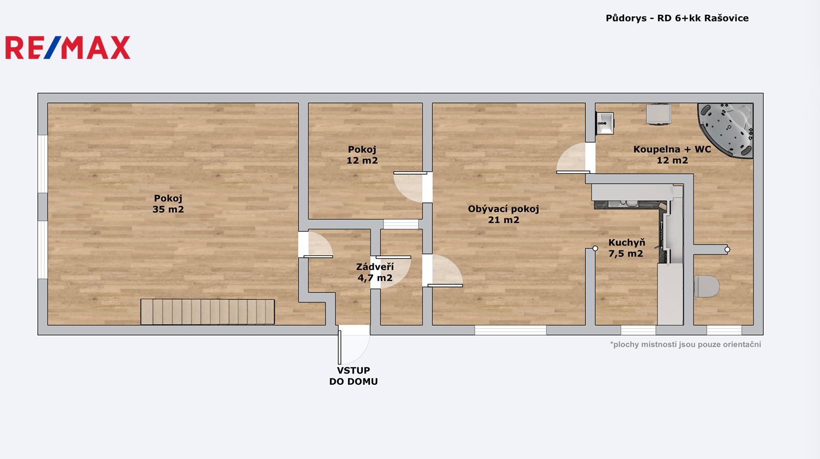
Tento patrový dům s 6 pokoji v řadové zástavbě, disponuje užitnou plochou 209 m² a zastavěnou plochou 140 m². Celková plocha pozemku je 330 m² .
V přízemí domu najdeme 3 pokoje, kuchyni a prostornou koupelnu s toaletou.

V podkroví jsou další 3 pokoje, z nichž jeden je navržen pro vybudování sociálního zařízení a kuchyňského koutu. Tímto řešením se zde nabízí možnost vytvoření dvou samostatných bytových jednotek s dispozicí 3+kk, což představuje ideální variantu pro rodinné bydlení i vícegenerační bydlení .

Dvorek je dostatečně prostorný a umožňuje stavbu pergoly pro příjemné posezení a využití stávající udírny. K dispozici je i sklep a dílna, které potěší každého kutila. Z dvorku se po schodech dostanete na menší zahradu, kde máte možnost pěstovat vlastní zeleninu či vybudovat bazén nebo prostor pro hry dětí.

Parkování je zajištěno nejen před domem ve slepé ulici, ale také v průjezdu domu, což ocení každá rodina. Objekt je v dobrém stavu, proběhla tu částečná rekonstrukce v letech 2016-2019, nebyla však dokončena. Byla vyměněna okna, elektřina je již v mědi a v roce 1997 byla udělána nová střecha.

Topit v domě je možné krbovými kamny na pevná paliva nebo elektrickými přímotopy. Teplá voda je zabezpečena elektrickým kotlem. Plyn v domě není, přípojka je však před domem, nic tedy nebrání tomu připojit dům i na plyn.
V současné době je v kuchyni plynový sporák s elektrickou troubou, plyn je však k vaření používán z bomby.

Dostupnost dopravy je zajištěna možností příjezdu po silnici a pravidelným autobusovým spojením integrovanou dopravou Jihomoravského kraje. Dům je napojen na vodovod a odpad je řešen kanalizací, což poskytuje komfortní a moderní standard bydlení.

S obytnou plochou 209 m² jsou možnosti využití tohoto prostoru opravdu neomezené a záleží pouze na vaší fantazii a představách o bydlení.

V Rašovicích najdete veškerou občanskou vybavenost , obchody, restaurace, mateřskou i základní školu, sportovní oddíl, dětské hřiště i knihovnu. Je tu i bohatý kulturní život.
V obci byla vybudována nová místní komunikace, veřejné osvětlení, kabelová televize, plynofikace, vodovod i splašková kanalizace.
Okolní příroda a lesy vybízejí nejen k pěším výletům a houbaření, ale i cyklo výletům.

Pokud vás nabídka zaujala, neváhejte kontaktovat makléřku nabídky.
Cena:
5 500 000 CZK / za nemovitost
Poznámka k ceně:
Cena je včetně provize RK a právních služeb.
Upozornění:
Prodávající si vyhrazuje právo vybrat kupujícího na základě jím zvolených kritérií.
RX finance

Spočítejte si splátku hypotéky

Na kolik vás vyjde pořízení vlastního bydlení? Zadejte pár informací do naší hypoteční kalkulačky a hned si prohlédněte výsledek.

Kupní cena nemovitosti

5 500 000 Kč

Výše hypotéky

Doba splácení

Vypočítaná měsíční splátka

Úroková sazba 3.6%

260 990 Kč

Hypotéku zařídíme za vás

Ušetřete svůj čas i nervy. Naši makléři zařídí veškeré papírování a dovedou vás až k úspěšnému podpisu smlouvy v bance.

Nechte nám kontakt, náš makléř se v pracovní dny ozve do 24 hodin

* – toto pole je nutné vyplnit
Bohdana Polgárová
RE/MAX Delux
Křenová 538/22
Brno, 60200
Česká republika
Tel. na makléře: +420 774 231 266
Tel. do kanceláře: +420 602 703 897
E-mail: bohdana.polgarova@re-max.cz

Potřebujete poradit/máte zájem o prohlídku?

* – toto pole je nutné vyplnit

Podrobné informace

Číslo zakázky:
ID 268-NP03243
Poloha objektu:
Řadový
Počet podlaží v objektu:
2
Užitná plocha:
209 m²
Plocha parcely:
330 m²
Druh objektu:
Smíšená
Stav objektu:
Velmi dobrý
Typ nemovitosti:
Domy a vily
Charakter okolní zástavby:
Obytná
K nastěhování:
19. 5. 2025
Doprava:
Silnice, Autobus
Elektřina:
230 V, 400 V
Garáž:
Ano
Odpad:
Kanalizace, Septik
Plocha zahrady:
112 m²
Zastavěná plocha:
115 m²
Plyn:
Plynovod
Typ domu:
Patrový
Umístění objektu:
Klidná část obce
Voda:
Dálkový rozvod
Vybaveno:
Ano
Energetická náročnost budovy:
G