Translate with 
MENU ZAVŘÍT

Prodej domu 219 m², Odřepsy (ID 059-NP07707)

Odřepsy, okres Nymburk mapa

7 800 000 Kč ( za nemovitost)
GMimořádně
nehospodárná

5+
219 m2
498 m2
2
Exkluzivně

Vícegenerační rodinný dům 219 m2 se stodolou u Poděbrad

Nabízíme k prodeji prostorný rodinný dům se zpevněným nádvořím a stodolou v obci Odřepsy, 5 km od centra Poděbrad a 4 km od nájezdu na dálnici D11. Tato atraktivní poloha a skvělá dopravní dostupnost Poděbrady, Kolín, Praha, Hradec Králové) jsou velkou, nikoliv však jedinou předností nabízené nemovitosti. Patrový zděný dům s obytnou přístavbou do dvora aktuálně nabízí na 219 m2 užitné plochy ve dvou podlažích, které lze vzhledem k dispozičnímu členění využít k vícegeneračnímu bydlení, zrekonstruovat na prostorný jednogenerační rodinný dům s bytem pro rodiče v přízemní přístavbě nebo pokračovat ve využití objektu k pronájmu jednotlivých bytových prostorů. Zde se nabízí rekolaudace na bytový dům a případně i následný rozprodej po nově vzniklých bytových a nebytových jednotkách.
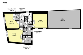
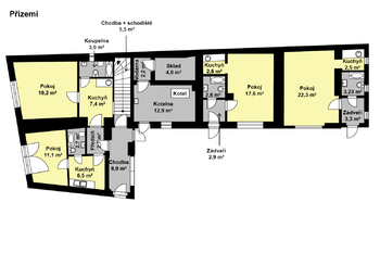
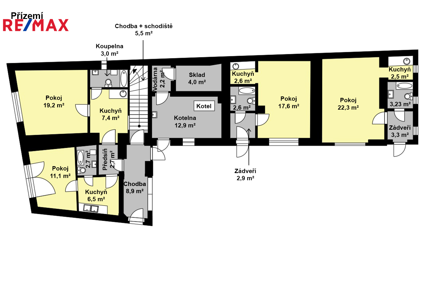
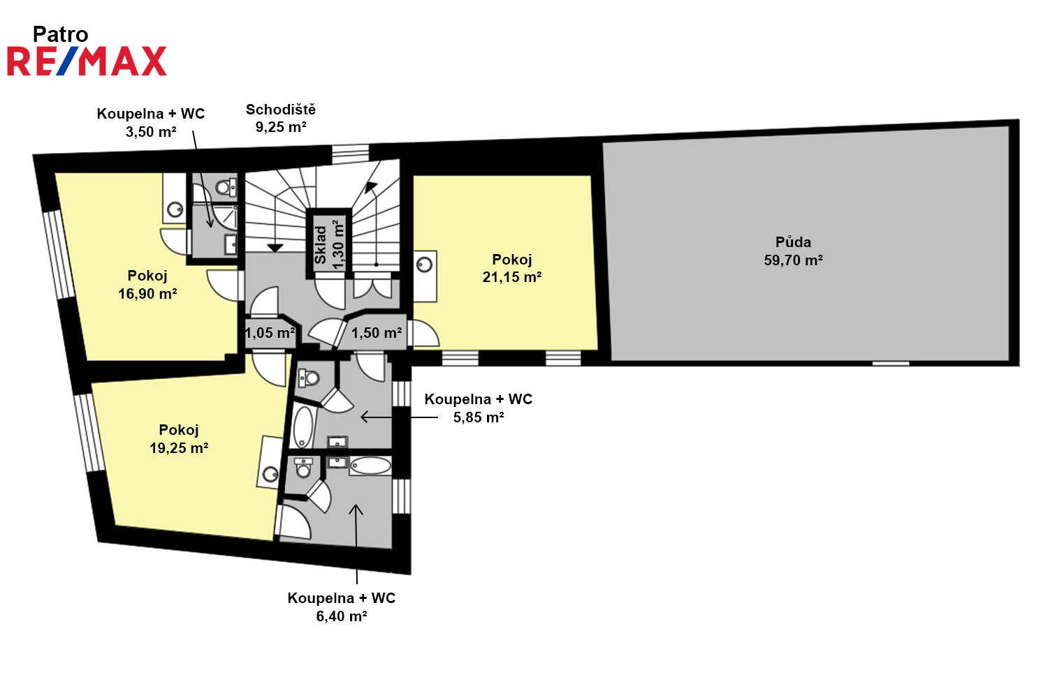
Dispoziční členění nemovitosti i jejích jednotlivých částí je patrné z přiložených půdorysů. Dvůr je dlážděný betonovými deskami a je využívaný k parkování. Je uzavřen objektem zděné stodoly, členěné na garáž, centrální úložný prostor, dílnu a podkrovní místnost. Ze stodoly je přístupná malá zahrádka.
Dům má elektrickou přípojku 220/380 V, rozvody elektro jsou v mědi. Jednotlivé bytové jednotky mají vlastní podružné elektroměry. Objekt je napojený na obecní vodovod, ale využívá vlastní vodu ze studny. Odpadní vody jsou svedeny do tlakové kanalizace. Voda i odpady jsou vedeny v plastu. Vytápění celého objektu zajišťuje automatický kotel se zásobníkem na tuhá paliva - doplnění zásoby paliva jednou za 2-3 dny.
Více technických detailů na požádání u makléře.
Nemovitost je vhodná pro trvalé bydlení pro zájemce, kteří potřebují prostor pro své podnikání nebo koníčky, pro vícečetnou rodinu či vícegenerační rodinu nebo je vhodným objektem pro podnikatelský projekt.
Bližší informace o nemovitosti a možnost sjednání prohlídky u makléře zakázky.
Cena:
7 800 000 CZK / za nemovitost
Poznámka k ceně:
Cena včetně provize a právních služeb
Upozornění:
Prodávající si vyhrazuje právo vybrat kupujícího na základě jím zvolených kritérií.
RX finance

Spočítejte si splátku hypotéky

Na kolik vás vyjde pořízení vlastního bydlení? Zadejte pár informací do naší hypoteční kalkulačky a hned si prohlédněte výsledek.

Kupní cena nemovitosti

7 800 000 Kč

Výše hypotéky

Doba splácení

Vypočítaná měsíční splátka

Úroková sazba 3.6%

260 990 Kč

Hypotéku zařídíme za vás

Ušetřete svůj čas i nervy. Naši makléři zařídí veškeré papírování a dovedou vás až k úspěšnému podpisu smlouvy v bance.

Nechte nám kontakt, náš makléř se v pracovní dny ozve do 24 hodin

* – toto pole je nutné vyplnit
Mgr. Jaroslav Slavotínek
RE/MAX G8 Reality 4
Václavská 864
Kolín, 28002
Česká republika
Tel. na makléře: +420 603 392 335
Tel. do kanceláře: +420 603 392 333
E-mail: jaroslav.slavotinek@re-max.cz

Potřebujete poradit/máte zájem o prohlídku?

* – toto pole je nutné vyplnit

Podrobné informace

Číslo zakázky:
ID 059-NP07707
Poloha objektu:
Samostatný
Počet podlaží v objektu:
2
Užitná plocha:
219 m²
Plocha parcely:
498 m²
Druh objektu:
Smíšená
Stav objektu:
Velmi dobrý
Typ nemovitosti:
Domy a vily
Charakter okolní zástavby:
Obytná
K nastěhování:
7. 1. 2026
Doprava:
Silnice, Autobus
Elektřina:
230 V, 400 V
Garáž:
Ano
Odpad:
Kanalizace
Zastavěná plocha:
189 m²
Počet parkovacích míst:
4
Typ domu:
Patrový
Umístění objektu:
Centrum obce
Voda:
Dálkový rozvod
Vybaveno:
Ano
Energetická náročnost budovy:
G