Translate with 
MENU ZAVŘÍT

Prodej domu 134 m², Nymburk (ID 059-NP07769)

ulice Ječná, Nymburk mapa

7 890 000 Kč ( za nemovitost)
DMéně
úsporná

4x
134 m2
206 m2
2
Exkluzivně

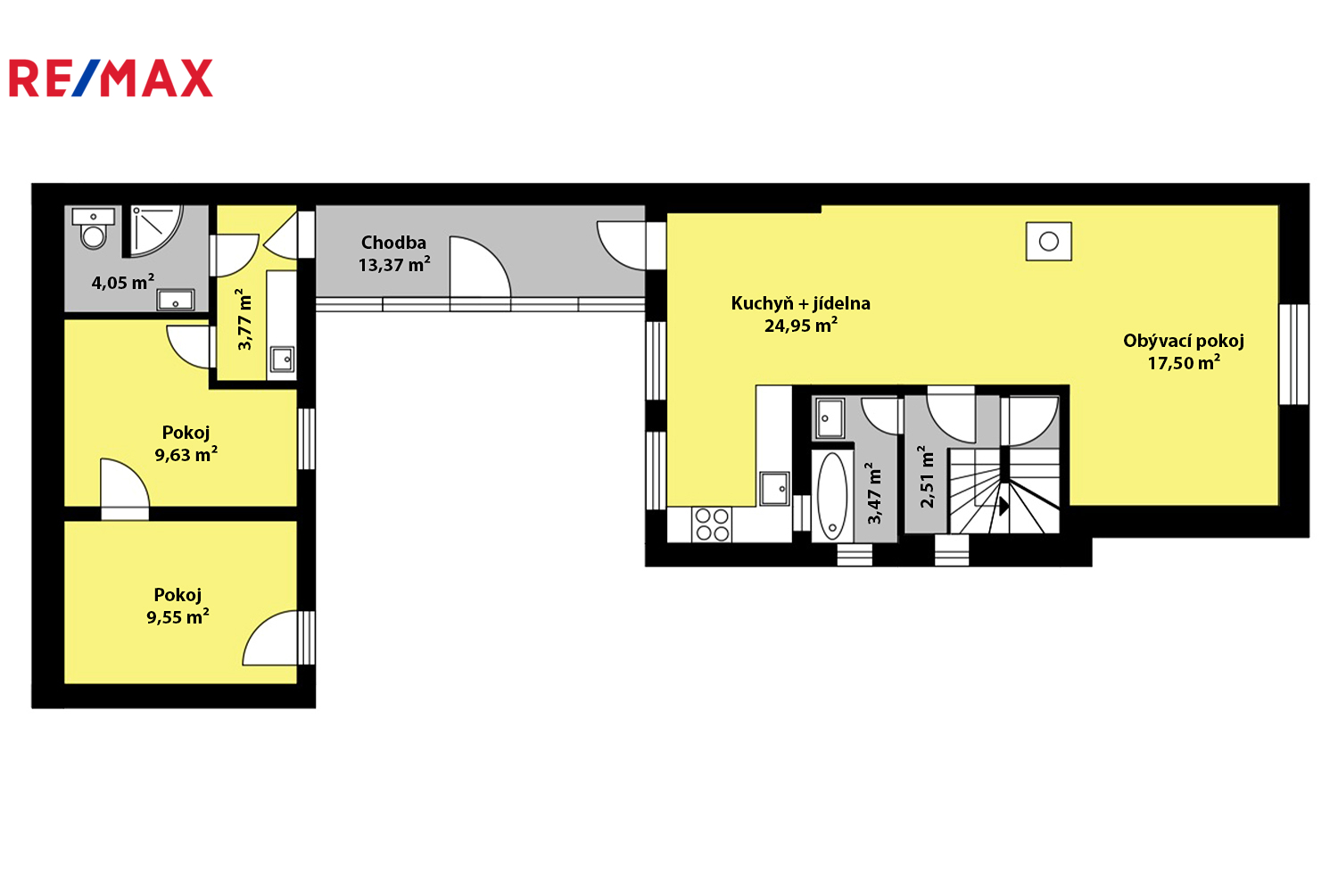
Prodej rodinného domu po rekonstrukci 4+kk, pozemek 206 m², ulice Ječná, Nymburk

Dovolujeme si Vám nabídnout k prodeji nově zrekonstruovaný rodinný dům v jedné z nejklidnějších částí města Nymburk – v ulici Ječná. Tato atraktivní adresa nabízí nejen příjemné a tiché prostředí, ale také výbornou dostupnost do centra města a veškerou občanskou vybavenost v dosahu. Dům prošel kompletní a kvalitní rekonstrukcí v letech 2020/2021 a je připraven splnit všechny vaše představy o moderním a komfortním bydlení. V přízemí domu se nachází prostorný obývací pokoj propojený s jídelnou a moderním kuchyňským koutem. Dům je dále propojen prosklenou chodbou s další samostatnou jednotkou, která nabízí vlastní kuchyňský kout, pokoj, koupelnu a vstupní pokoj – ideální pro hosty, vícegenerační bydlení nebo pronájem. V patře najdete dva útulné pokoje vhodné jako ložnice, dětské pokoje či pracovny. Samostatná bytová jednotka má vlastní elektroměr, což umožňuje nezávislé užívání nebo pronájem. V domě je ústřední topení ohřívané plynovým kotlem, které majitel nepoužívá. Využívá kombinaci krbových kamen a občasného přitápění konvektory, jelikož je polovinu času v domě sám a v pokoje jsou prázdné. Zdrojem tepla v současné době jsou krbová kamna v obývacím pokoji s komínem, která efektivně vyhřívají i horní patro (komín má revizi). Samostatný byt je vybaven přímotopy, ale je možné i vytápění plynem - radiátory. K dispozici je obecní voda i vlastní studna na pozemku s čerpadlem a hadicí pro zalévání zahrady. Teplou vodu zajišťují dva elektrické bojlery (80 l a 25 l), přičemž menší bojler se automaticky doplňuje z většího v případě, že se teplá voda spotřebuje. Bojlery jsou umístěné v suterénu domu. Tepelné fólie na plastových oknech a francouzském okně na stinné straně domu zajišťují efektivnější tepelnou izolaci a příjemnější prostředí v interiéru. V každé místnosti je navíc síť proti hmyzu. Protihluková stěna poskytuje maximální klid a soukromí. Dům je zateplený, což zajišťuje nízké provozní náklady a energetickou úspornost. Internetové připojení je zajištěno od společnosti MARCOMNET. Tato nemovitost je ideální volbou pro ty, kteří hledají klidné a bezpečné bydlení s veškerým komfortem moderního života. Neváhejte mě kontaktovat pro více informací nebo domluvení prohlídky tohoto výjimečného domu v Nymburce.
Cena:
7 890 000 CZK / za nemovitost
Poznámka k ceně:
Cena včetně provize a právních služeb.
Upozornění:
Prodávající si vyhrazuje právo vybrat kupujícího na základě jím zvolených kritérií.
RX finance

Spočítejte si splátku hypotéky

Na kolik vás vyjde pořízení vlastního bydlení? Zadejte pár informací do naší hypoteční kalkulačky a hned si prohlédněte výsledek.

Kupní cena nemovitosti

7 890 000 Kč

Výše hypotéky

Doba splácení

Vypočítaná měsíční splátka

Úroková sazba 3.6%

260 990 Kč

Hypotéku zařídíme za vás

Ušetřete svůj čas i nervy. Naši makléři zařídí veškeré papírování a dovedou vás až k úspěšnému podpisu smlouvy v bance.

Nechte nám kontakt, náš makléř se v pracovní dny ozve do 24 hodin

* – toto pole je nutné vyplnit
Zuzana Beňová, DiS.
RE/MAX G8 Reality 4
Václavská 864
Kolín, 28002
Česká republika
Tel. na makléře: +420 725 003 287
Tel. do kanceláře: +420 603 392 333
E-mail: zuzana.benova@re-max.cz

Potřebujete poradit/máte zájem o prohlídku?

* – toto pole je nutné vyplnit

Podrobné informace

Číslo zakázky:
ID 059-NP07769
Poloha objektu:
V bloku
Počet podlaží v objektu:
2
Užitná plocha:
134 m²
Plocha parcely:
206 m²
Druh objektu:
Cihlová
Stav objektu:
Po rekonstrukci
Typ nemovitosti:
Domy a vily
Charakter okolní zástavby:
Obytná
K nastěhování:
8. 12. 2025
Doprava:
Vlak, Dálnice, Silnice, Autobus
Elektřina:
230 V, 400 V
Odpad:
Kanalizace
Zastavěná plocha:
108 m²
Plyn:
Plynovod
Počet podlaží pod zemí:
1
Typ domu:
Patrový
Umístění objektu:
Klidná část obce
Voda:
Dálkový rozvod
Vybaveno:
Ano
Energetická náročnost budovy:
D
Měrná vypočtená roční spotřeba energie v kWh/m²/rok:
380