Translate with 
MENU ZAVŘÍT

Prodej bytu 2+kk v osobním vlastnictví 56 m², Kyjov (ID 077-NP06811)

Kyjov, okres Hodonín mapa

4 342 075 Kč ( za nemovitost)
BVelmi
úsporná

kk
2x
56 m2
2/4
Exkluzivně

Prodej nového moderního bytu 2+kk, Kyjovské zahrady

Projekt Kyjovské zahrady vstupuje do druhé etapy, která přináší moderní bytový dům se šesti podlažími a celkem 77 byty v dispozicích od útulných 1+kk až po prostorné 4+kk. Vybrané přízemní byty nabídnou vlastní předzahrádky, zatímco střešní byty vyniknou luxusními terasami s krásnými výhledy a maximálním soukromím.

Dům je navržen s důrazem na kvalitu a komfort. Byty budou dokončeny ve vysokém standardu – součástí jsou vinylové podlahy, koupelny obložené keramickými dlaždicemi, moderní plastová okna v antracitovém provedení s izolačními trojskly i podlahové vytápění v kombinaci s vlastními klimatizačními jednotkami. Samozřejmostí jsou sklepní kóje, komfortní výtah a kompletní příprava na moderní technologie včetně vysokorychlostního internetu. Pro zájemce bude k dispozici také možnost parkování v podzemních garážích nebo na vyhrazených venkovních stáních.

Bytový dům spadá do energetické třídy B – velmi úsporná stavba, která zaručuje nízké provozní náklady. Navíc každý zájemce má v průběhu výstavby možnost klientských změn a může si vybrat z nabídky zařizovacích předmětů dle vlastního vkusu, takže nový byt dokonale odpovídá jeho představám.

Kyjovské zahrady tak nabízejí ideální příležitost pro moderní a pohodlné bydlení s přidanou hodnotou kvality i nadčasového designu.

V průběhu výstavby je možnost klientských změn ve formě výběru zařizovacích předmětů dle vkusu zájemce.

Bezproblémové financování hypotečním úvěrem. Pro více informací neváhejte kontaktovat makléře.
Cena:
4 342 075 CZK / za nemovitost
Poznámka k ceně:
cena je konečná – včetně provize realitní kanceláře, právního a poprodejního servisu
Upozornění:
Prodávající si vyhrazuje právo vybrat kupujícího na základě jím zvolených kritérií.
RX finance

Spočítejte si splátku hypotéky

Na kolik vás vyjde pořízení vlastního bydlení? Zadejte pár informací do naší hypoteční kalkulačky a hned si prohlédněte výsledek.

Kupní cena nemovitosti

4 342 075 Kč

Výše hypotéky

Doba splácení

Vypočítaná měsíční splátka

Úroková sazba 3.6%

260 990 Kč

Hypotéku zařídíme za vás

Ušetřete svůj čas i nervy. Naši makléři zařídí veškeré papírování a dovedou vás až k úspěšnému podpisu smlouvy v bance.

Nechte nám kontakt, náš makléř se v pracovní dny ozve do 24 hodin

* – toto pole je nutné vyplnit
Ing. Michal Stehlík
RE/MAX Pro
Blatného 3
Brno, 61600
Česká republika
Tel. na makléře: +420 733 679 940
Tel. do kanceláře: +420 732 299 929
E-mail: michal.stehlik@re-max.cz

Potřebujete poradit/máte zájem o prohlídku?

* – toto pole je nutné vyplnit

Podrobné informace

Číslo zakázky:
ID 077-NP06811
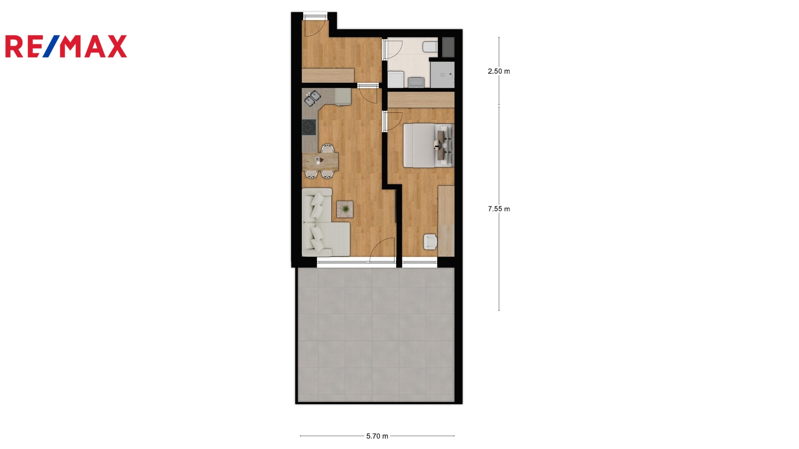
Dispozice:
2+kk
Číslo podlaží:
2
Počet podlaží v objektu:
4
Podlahová plocha:
56 m²
Druh objektu:
Cihlová
Stav objektu:
Ve výstavbě (hrubá stavba)
Vlastnictví:
Osobní
Typ nemovitosti:
Byty
Bezbariérový byt:
Ano
Charakter okolní zástavby:
Obytná
K nastěhování:
30. 11. 2027
Doprava:
Vlak, Silnice, MHD, Autobus
Elektřina:
230 V
Odpad:
Kanalizace
Užitná plocha:
46 m²
Počet podlaží pod zemí:
1
Telekomunikace:
Internet
Umístění objektu:
Centrum obce
Voda:
Dálkový rozvod
Výtah:
Ano
Energetická náročnost budovy:
B