Translate with 
MENU ZAVŘÍT

Prodej bytu 4+1 v osobním vlastnictví 115 m², Praha 5 - Smíchov (ID 320-NP00225)

ulice Pod Skalkou, Praha 5 – Smíchov mapa

13 850 000 Kč ( za nemovitost)
GMimořádně
nehospodárná

1x
4x
115 m2
1/4
Exkluzivně

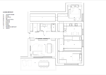
Velký byt 4+1, 115m² s terasou a výhledem do zeleně – Praha 5, Pod Skalkou

Exkluzivně nabízíme k prodeji prostorný a světlý byt, který vám dá pocit soukromí, klidu a přitom budete jen pár minut od centra.
Byt o dispozici 4+1, 95 m² v ulici Pod Skalkou kombinuje výhledy do zeleně s velkou terasou 20m² orientovanou na jih a vynikající dopravní dostupností.

Nachází se v prvním patře menšího bytového domu (6 byt.jednotek), v jedné z nejklidnějších ulic Smíchova. Byt má řadu benefitů. Tu představuje především velká terasa 20 m². Ideální pro snídaně i večerní víno při západu slunce. Dále pak velký prosvětlený pokoj s přímým vstupem na terasu. Tři samostatné ložnice a kuchyň. Příjemným doplňkem jsou rovněž i nízké provozní náklady.
Byt je vyklizený a připravený pro rekonstrukci. Ideální pro ty, kteří chtějí vytvořit osobité bydlení na tomto krásném místě.

Lokalita Pod Skalkou je klidná rezidenční ulice, která je obklopená přírodou. V pěší vzdálenosti od Husových sadů, lesoparku Na Cibulce i vily Bertramka. Na dosah je park Ladronka, obora Hvězda, nemocnice Motol. V okolí najdete školy, školky, sportoviště, obchody i kavárny.
Do centra (Anděl / Smíchovské nádraží) se dostanete během 5 minut autem nebo MHD.

Tento byt představuje jedinečnou příležitost pro ty, kdo hledají prostorné bydlení a chtějí si vytvořit domov přesně podle svých představ za velmi příznivou cenu.

Náhledové fotografie s vybavením jsou vizualizace, aby si budoucí kupující dovedl lépe představit, co se do daného prostoru vejde nebo jak se dá zařídit.

Nový majitel bytu jistě ocení jeho prostor, světlo a polohu.
Rád vám jej osobně představím.
Cena:
13 850 000 CZK / za nemovitost
Poznámka k ceně:
Upozornění:
Prodávající si vyhrazuje právo vybrat kupujícího na základě jím zvolených kritérií.
RX finance

Spočítejte si splátku hypotéky

Na kolik vás vyjde pořízení vlastního bydlení? Zadejte pár informací do naší hypoteční kalkulačky a hned si prohlédněte výsledek.

Kupní cena nemovitosti

13 850 000 Kč

Výše hypotéky

Doba splácení

Vypočítaná měsíční splátka

Úroková sazba 3.6%

260 990 Kč

Hypotéku zařídíme za vás

Ušetřete svůj čas i nervy. Naši makléři zařídí veškeré papírování a dovedou vás až k úspěšnému podpisu smlouvy v bance.

Nechte nám kontakt, náš makléř se v pracovní dny ozve do 24 hodin

* – toto pole je nutné vyplnit
Ing. Martin Bárta
RE/MAX Welcome Home
Zenklova 2245/29
Praha 8 - Libeň, 18000
Česká republika
Tel. na makléře: +420 602 216 275
Tel. do kanceláře: +420 602 400 024
E-mail: martin.barta@re-max.cz

Potřebujete poradit/máte zájem o prohlídku?

* – toto pole je nutné vyplnit

Podrobné informace

Číslo zakázky:
ID 320-NP00225
Dispozice:
4+1
Číslo podlaží:
1
Počet podlaží v objektu:
4
Podlahová plocha:
115 m²
Druh objektu:
Smíšená
Stav objektu:
Před rekonstrukcí
Vlastnictví:
Osobní
Typ nemovitosti:
Byty
Charakter okolní zástavby:
Obytná
Elektřina:
230 V
Odpad:
Kanalizace
Užitná plocha:
115 m²
Zastavěná plocha:
504 m²
Plyn:
Plynovod
Umístění objektu:
Klidná část obce
Voda:
Dálkový rozvod
Energetická náročnost budovy:
G