Translate with 
MENU ZAVŘÍT

Prodej bytu 3+kk v osobním vlastnictví 117 m², Praha 9 - Horní Počernice (ID 114-NP10326)

ulice Slatiňanská, Praha 9 – Horní Počernice mapa

13 900 000 Kč (vč. DPH, za nemovitost)
BVelmi
úsporná

kk
3x
117 m2
3/3
Exkluzivně

Prodej bytu 3+kk (4+kk, nebo 2 byty 2+kk) 117m²

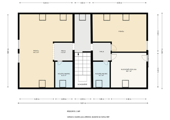
Exkluzivně nabízíme k prodeji nový byt v osobním vlastnictví v moderní novostavbě s dispozicí 3+kk o velikosti 117m², je situovaný v moderní novostavbě na adrese Slatiňanská č. or. 3, Praha - Horní Počernice. Tento zděný objekt byl postaven s důrazem na nízkoenergetické standardy, což zajišťuje nízké náklady na provoz a komfortní bydlení. Byt je možné s drobnou úpravu upravit na 4+kk nebo na 2 byty 2+kk. K bytu je možné dokoupit vnitřní parkovací stání v garáži, nebo vlastní předzahrádku, na kterou se dá zajistit přístup přímo z bytu. Prodávající je developer a díky tomu je možný odpočet DPH. V ceně bytu je kuchyňská linka, která se nyní bude instalovat.

Jednotka se nachází ve 3. podlaží třípodlažního domu a nabízí celkovou užitnou plochu 117 m². Vnitřní dispozice bytu zahrnuje 2x obývací pokoj propojený s kuchyňským koutem a útulnou ložnici, což poskytuje ideální prostor pro pohodlné bydlení. Jsou zde i 2 koupelny. Důraz byl kladen na kvalitní materiály a moderní design, což vytváří příjemnou atmosféru.

K vybavení nemovitosti patří plynový kondenzační kotel, který zajišťuje efektivní vytápění ve spojení s podlahovým topením a ohřev teplé vody. Byt je napojen na vodovod a kanalizaci, stejně jako na plynovod. Elektřina je zabezpečena rozvodem 230 V. V okolí nemovitosti je výborná dostupnost celé řady dopravních možností, včetně vlakového spojení, dálnice, silnice, MHD a autobusové dopravy, což usnadňuje každodenní dojíždění.

V blízkosti se nachází veškerá občanská vybavenost, jako jsou obchody, školy a zdravotnická zařízení, což zaručuje pohodlný životní styl. Dlažděná vozovka zajišťuje bezproblémový přístup k objektu. Rybník 30m, autobusová zastávka 130m, ZŠ 300m, Lidl 300m, CČM 500m.

Tato nemovitost představuje ideální volbu pro jednotlivce nebo páry hledající moderní bydlení s komfortním zázemím a dobrou dostupností do centra města. Dům je situován v ulici, kde je vjezd povolen pouze místním, což zajišťuje velmi klidné bydlení. Byt je možné financovat hypotečním úvěrem, s jehož vyřízením Vám zdarma a rádi pomůžeme. V případě zájmu o prohlídku zavolejte makléři nabídky.
Cena:
13 900 000 CZK / za nemovitost
Poznámka k ceně:
Možnost odpočtu DPH. Včetně provize RK, právního a hypotečního servisu.
Upozornění:
Prodávající si vyhrazuje právo vybrat kupujícího na základě jím zvolených kritérií.
RX finance

Spočítejte si splátku hypotéky

Na kolik vás vyjde pořízení vlastního bydlení? Zadejte pár informací do naší hypoteční kalkulačky a hned si prohlédněte výsledek.

Kupní cena nemovitosti

13 900 000 Kč

Výše hypotéky

Doba splácení

Vypočítaná měsíční splátka

Úroková sazba 3.6%

260 990 Kč

Hypotéku zařídíme za vás

Ušetřete svůj čas i nervy. Naši makléři zařídí veškeré papírování a dovedou vás až k úspěšnému podpisu smlouvy v bance.

Nechte nám kontakt, náš makléř se v pracovní dny ozve do 24 hodin

* – toto pole je nutné vyplnit
Martin Drlička
RE/MAX Horizont
Třebešovská 2869/94
Praha 9 - Horní Počernice, 19300
Česká republika
Tel. na makléře: +420 606 796 657
Tel. do kanceláře: +420 733 149 056
E-mail: martin.drlicka@re-max.cz

Potřebujete poradit/máte zájem o prohlídku?

* – toto pole je nutné vyplnit

Podrobné informace

Číslo zakázky:
ID 114-NP10326
Dispozice:
3+kk
Číslo podlaží:
3
Počet podlaží v objektu:
3
Podlahová plocha:
117 m²
Druh objektu:
Cihlová
Stav objektu:
Novostavba
Vlastnictví:
Osobní
Typ nemovitosti:
Byty
Charakter okolní zástavby:
Obytná
K nastěhování:
1. 5. 2025
Doprava:
Vlak, Dálnice, Silnice, MHD, Autobus
Elektřina:
230 V
Odpad:
Kanalizace
Užitná plocha:
117 m²
Zastavěná plocha:
207 m²
Plyn:
Plynovod
Rok výstavby:
2 025
Telekomunikace:
Telefon, Internet
Umístění objektu:
Klidná část obce
Voda:
Dálkový rozvod
Energetická náročnost budovy:
B