Translate with 
MENU ZAVŘÍT

Prodej domu 163 m², Šestajovice (ID 096-NP05733)

ulice Revoluční, Šestajovice mapa

15 990 000 Kč ( za nemovitost)
GMimořádně
nehospodárná

5+
163 m2
1309 m2
2
Exkluzivně

Prodej rodinného domu v obci Šestajovice, jen 2 minuty jízdy autem od hranice hlavního města Prahy

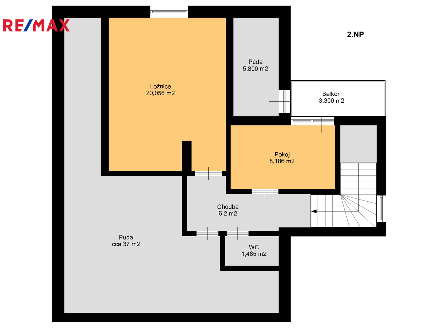
Ve výhradním zastoupení majitele si vám dovolujeme nabídnout nezateplený cihlový patrový rodinný dům se sedlovou střechou kolaudovaný v roce 1909 ve velmi dobrém a udržovaném stavu s dispozicí 5+1 vč. půdního prostoru o celkové výměře cca 163 m² s celkovým pozemkem o výměře 1 309 m² v obci Šestajovice, která je vzdálená 2 minuty jízdy autem od hranice hlavního města Prahy. Součástí je i venkovní podsklepená stodola se sedlovou střechou o výměře cca 43 m² do které je přivedena elektřina. Vjezd na pozemek je zajištěn z obecní komunikace.

Dům je napojen na všechny inženýrské sítě --- Vodovodní řád, plynovod, kanalizace a EL.

Výměra:
Obytná část - cca 117 m² + balkon 3,3 m² (rozdělena do dvou pater)
Půda - cca 42,8 m²
Stodola - cca 43 m²

Ohřev vody a vytápění je řešeno plynovým kondenzačním kotlem značky BOSH. Vytápění je rozvedeno po celém domě do radiátorů. Okna jsou dřevěná - dvojitá.

Aktuální měsíční režie rodinného domu činí --- plyn cca 5.000,-Kč, el. cca 1.900,-Kč měsíčně

Zahrada nabízí mnoho ovocných stromu. Nabízí se zde možnost i realizace bazénu či zastřešené garáže. Velkým příjemným benefitem je, že se pozemek nachází hned vedle vodní plochy Beranka.

V Šestajovicích se nachází plná občanská vybavenost vč. základní školy a školky. Dále je k dispozici supermarket Billa a Penny, drogerie Teta, kavárny a restaurace. V blízké vzdálenosti se nachází dálnice D11, po které se za 15 minut dostanete na Černý most. Velkou výhodou je autobusové spojení ze zastávky Šestajovice, Balkán, která je vzdálená 2 min chůzí od nabízené nemovitosti.

S financováním vám moc rádi pomůžeme.
Pro více informací neváhejte kontaktovat makléře nabídky.
Cena:
15 990 000 CZK / za nemovitost
Poznámka k ceně:
Upozornění:
Prodávající si vyhrazuje právo vybrat kupujícího na základě jím zvolených kritérií.
RX finance

Spočítejte si splátku hypotéky

Na kolik vás vyjde pořízení vlastního bydlení? Zadejte pár informací do naší hypoteční kalkulačky a hned si prohlédněte výsledek.

Kupní cena nemovitosti

15 990 000 Kč

Výše hypotéky

Doba splácení

Vypočítaná měsíční splátka

Úroková sazba 3.6%

260 990 Kč

Hypotéku zařídíme za vás

Ušetřete svůj čas i nervy. Naši makléři zařídí veškeré papírování a dovedou vás až k úspěšnému podpisu smlouvy v bance.

Nechte nám kontakt, náš makléř se v pracovní dny ozve do 24 hodin

* – toto pole je nutné vyplnit
Jan Hart
RE/MAX Diamond
Samcova 1177/1
Praha 1 - Nové Město, 11000
Česká republika
Tel. na makléře: +420 734 113 965
Tel. do kanceláře: +420 224 247 291
E-mail: jan.hart@re-max.cz

Potřebujete poradit/máte zájem o prohlídku?

* – toto pole je nutné vyplnit

Podrobné informace

Číslo zakázky:
ID 096-NP05733
Poloha objektu:
Samostatný
Počet podlaží v objektu:
2
Užitná plocha:
163 m²
Plocha parcely:
1 309 m²
Druh objektu:
Cihlová
Stav objektu:
Dobrý
Typ nemovitosti:
Domy a vily
Odpad:
Kanalizace
Zastavěná plocha:
118 m²
Plyn:
Plynovod
Typ domu:
Patrový
Umístění objektu:
Klidná část obce
Voda:
Dálkový rozvod
Energetická náročnost budovy:
G