Translate with 
MENU ZAVŘÍT

Prodej bytu 2+kk v osobním vlastnictví 42 m², Praha 2 - Nusle (ID 254-NP00851)

ulice Jaromírova, Praha 2 – Nusle mapa

6 300 000 Kč ( za nemovitost)
GMimořádně
nehospodárná

kk
2x
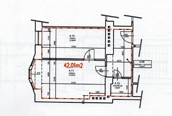
42 m2
4/7
Exkluzivně

Prodej bytu 2+kk, 42 m², Jaromírova, Praha - Nusle

V zastoupení majitele nabízíme k prodeji světlý byt 2+kk po rekonstrukci, situovaný ve 3. patře udržovaného cihlového domu s výtahem v ulici Jaromírova – jen pár kroků od tramvajové zastávky a v docházkové vzdálenosti od Vyšehradu a Nuselského údolí. K domu patří krásná zahrada, kterou mohou využívat všichni majitelé.

Samotný byt prošel částečnou rekonstrukcí. Kuchyňská linku s troubou a varnou deskou, koupelna se sprchovým koutem a toaletou, a dvě světlé místnosti s plovoucími podlahami. Díky vysokým stropům a velkým oknům působí velmi prostorně a vzdušně. Okna jsou orientována do ulice s pohledem na historické domy Nuslí.

Tramvajová zastávka je doslova pár kroků od domu, stanice metra Vyšehrad nebo Karlovo náměstí v dosahu pár minut. V okolí najdete množství kaváren, restaurací, obchodů i parků. Na procházku to máte jen pár minut do Vyšehradských sadů nebo na Folimanku.

Byt se prodává bez vybavení.

Pro více informací volejte makléři nabídky.
Cena:
6 300 000 CZK / za nemovitost
Poznámka k ceně:
Včetně právního servisu, advokátní úschovy a provize RK
Upozornění:
Prodávající si vyhrazuje právo vybrat kupujícího na základě jím zvolených kritérií.
RX finance

Spočítejte si splátku hypotéky

Na kolik vás vyjde pořízení vlastního bydlení? Zadejte pár informací do naší hypoteční kalkulačky a hned si prohlédněte výsledek.

Kupní cena nemovitosti

6 300 000 Kč

Výše hypotéky

Doba splácení

Vypočítaná měsíční splátka

Úroková sazba 3.6%

260 990 Kč

Hypotéku zařídíme za vás

Ušetřete svůj čas i nervy. Naši makléři zařídí veškeré papírování a dovedou vás až k úspěšnému podpisu smlouvy v bance.

Nechte nám kontakt, náš makléř se v pracovní dny ozve do 24 hodin

* – toto pole je nutné vyplnit
Lucie Lusková
RE/MAX Age
Husova 557
Slaný, 27401
Česká republika
Tel. na makléře: +420 730 165 156
Tel. do kanceláře: +420 730 165 156
E-mail: lucie.luskova@re-max.cz

Potřebujete poradit/máte zájem o prohlídku?

* – toto pole je nutné vyplnit

Podrobné informace

Číslo zakázky:
ID 254-NP00851
Dispozice:
2+kk
Číslo podlaží:
4
Počet podlaží v objektu:
7
Podlahová plocha:
42 m²
Druh objektu:
Smíšená
Stav objektu:
Velmi dobrý
Vlastnictví:
Osobní
Typ nemovitosti:
Byty
Charakter okolní zástavby:
Obytná
Odpad:
Kanalizace
Užitná plocha:
42 m²
Plyn:
Plynovod
Umístění objektu:
Centrum obce
Umístění v chráněných lokalitách:
Ochranné pásmo
Vybaveno:
Ano
Energetická náročnost budovy:
G