Translate with 
MENU ZAVŘÍT

Prodej bytu 3+kk v osobním vlastnictví 254 m², Zvole (ID 201-NP03239)

ulice Přední, Zvole mapa

8 980 000 Kč ( za nemovitost)
BVelmi
úsporná

kk
3x
254 m2
1/3
Exkluzivně Rezervace

Byt 3kk ve Zvoli, Vašich 254m2 – vlastní kousek zahrady, vlastní parkovací místo a kousek od Prahy!

Chcete bydlet jako v domě, ale bez starostí s jeho údržbou? Toužíte po zahradě, kde budou vyrůstat vaše děti, a zároveň chcete mít město stále na dosah?
Ve Zvoli u Prahy na vás čeká přízemní byt 3kk se soukromou zahradou, který vám nabídne klid, prostor i pohodlí.
Bydlení, kde každé ráno otevřete dveře na terasu a ucítíte trávu pod nohama.
Místo, kde víkend znamená grilování, hry s dětmi a kafe na sluníčku.
Byt, který dává smysl — pro dnešek, pro budoucnost, i pro vaše děti.

Proč si ho zamilujete?

• Zahrada 158 m² – ideální velikost pro pohodové žití bez dřiny
• Přímý vstup na zahradu z obýváku i ložnice – propojení interiéru s přírodou
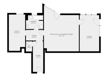
• 3kk, 83 m² – prostor, kde si každý člen rodiny najde své místo
• Chytrá dispozice – obě ložnice v klidové části, obývací zóna oddělená
• Dvě toalety – pro pohodlí celé domácnosti
• Vestavěná skříň v chodbě – dost místa, žádný nepořádek
• Rohový cihlový bytový dům v klidné části – ticho a soukromí
• Přízemní byt – bez schodů, bez překážek
• Jedno vlastní parkovací stání v zabezpečeném areálu přímo za domem
• Máte-li aut více, žádný problém – dostatek parkovacích stání v okolí domu
• Dětské hřiště hned za plotem – děti v bezpečí, vy v klidu

Zvole – místo, kde se dobře žije

• Školka, škola, obchod, restaurace, lékař, obecní úřad, knihovna i kulturní dům
• Příroda kolem – lesy, louky, Posázaví, cyklostezky i řeka Sázava
• Do Dolních Břežan 5 minut autem – oblíbená lokalita s občanskou vybaveností na úrovni města
• Zastávka autobusu jen 50 m od domu – přímé spojení na metro C „Kačerov“
• Do centra Prahy autem cca 25 minut – ideální pro každodenní dojíždění, se skvělým napojením na Jižní spojku a Pražský okruh. Bydlíte v přírodě, ale město máte stále na dosah

Chytrá investice s budoucností

Byt s vlastní zahradou jen pár minut od Prahy je nejen domov, ale také hodnota.
Můžete ho využít k bydlení, pronájmu nebo ho jednou předat dál jako jistotu pro své děti.
Nemovitosti v okolí Prahy mají stabilní růst cen a dlouhodobou poptávku – právě proto dává tento byt smysl i jako investice.

S financováním vám rádi pomůžeme

Nemovitost je možné financovat hypotečním úvěrem, s jehož vyřízením vám rádi pomůžeme.
Naši zkušení specialisté vám poskytnou veškeré informace a asistenci, aby celý proces proběhl rychle, hladce a bez komplikací.

Přijďte si vyzkoušet, jak chutná život, když máte vlastní kus přírody
Zavolejte mi a domluvte si prohlídku. Ráda vám ukážu místo, kde se žije jinak – klidněji, volněji, lépe.

Těším se na setkání
Martina Kachlíková
Cena:
8 980 000 CZK / Rezervováno
Poznámka k ceně:
Upozornění:
Prodávající si vyhrazuje právo vybrat kupujícího na základě jím zvolených kritérií.
RX finance

Spočítejte si splátku hypotéky

Na kolik vás vyjde pořízení vlastního bydlení? Zadejte pár informací do naší hypoteční kalkulačky a hned si prohlédněte výsledek.

Kupní cena nemovitosti

8 980 000 Kč

Výše hypotéky

Doba splácení

Vypočítaná měsíční splátka

Úroková sazba 3.6%

260 990 Kč

Hypotéku zařídíme za vás

Ušetřete svůj čas i nervy. Naši makléři zařídí veškeré papírování a dovedou vás až k úspěšnému podpisu smlouvy v bance.

Nechte nám kontakt, náš makléř se v pracovní dny ozve do 24 hodin

* – toto pole je nutné vyplnit
Martina Kachlíková, MSc.
RE/MAX Atrium
Podolská 811/138
Praha 4 - Podolí, 14700
Česká republika
Tel. na makléře: +420 724 602 160
Tel. do kanceláře: +420 606 726 515
E-mail: martina.kachlikova@re-max.cz

Potřebujete poradit/máte zájem o prohlídku?

* – toto pole je nutné vyplnit

Podrobné informace

Číslo zakázky:
ID 201-NP03239
Dispozice:
3+kk
Číslo podlaží:
1
Počet podlaží v objektu:
3
Podlahová plocha:
254 m²
Druh objektu:
Cihlová
Stav objektu:
Velmi dobrý
Vlastnictví:
Osobní
Typ nemovitosti:
Byty
Bezbariérový byt:
Ano
Charakter okolní zástavby:
Obytná
Doprava:
Silnice, Autobus
Elektřina:
230 V, 400 V
Odpad:
Kanalizace
Užitná plocha:
83 m²
Plocha zahrady:
158 m²
Zastavěná plocha:
578 m²
Plyn:
Plynovod
Počet parkovacích míst:
1
Umístění objektu:
Klidná část obce
Voda:
Dálkový rozvod
Vybaveno:
Ano
Energetická náročnost budovy:
B
Měrná vypočtená roční spotřeba energie v kWh/m²/rok:
71