Translate with 
MENU ZAVŘÍT

Prodej domu 102 m², Kolín (ID 059-NP07691)

ulice Ke Hřišti, Kolín – část obce Štítary mapa

5 870 000 Kč ( za nemovitost)
GMimořádně
nehospodárná

4x
102 m2
95 m2
2
Exkluzivně Rezervace

Prodej RD 3+1 ve Štítarech u Kolína

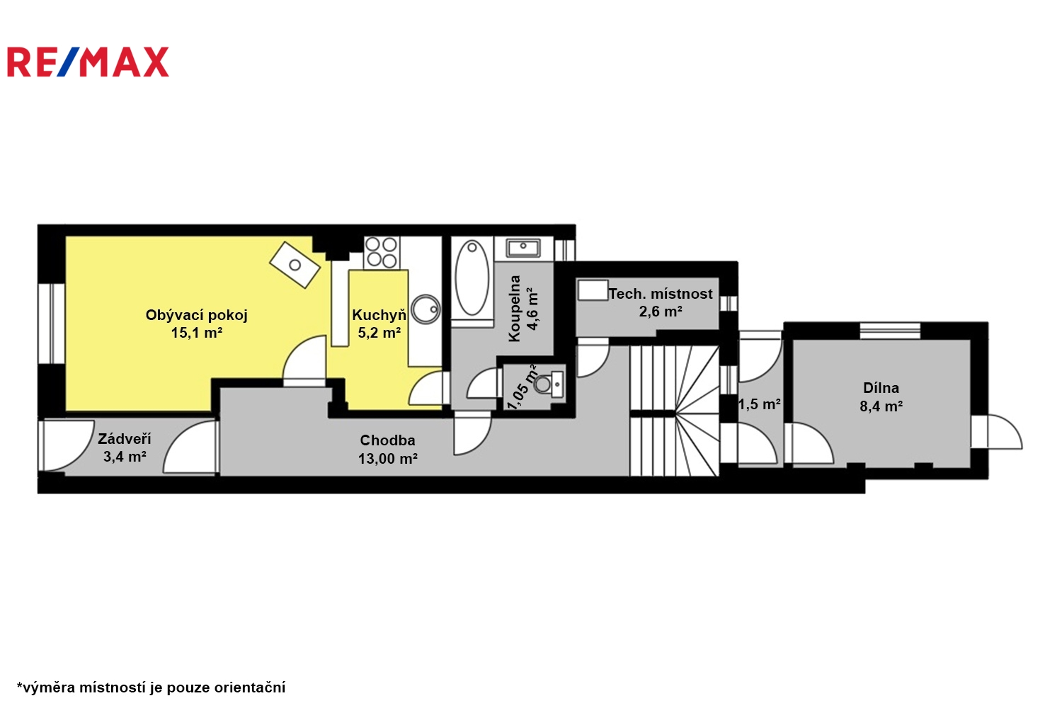
Dovoluji si Vám nabídnout k prodeji řadový dvoupodlažní rodinný dům v obci Štítary u Kolína. Zastavěná plocha domu je 78 m2, garáž 25 m2 a celková plocha pozemku činí 212 m2 včetně garáže. Dům byl celkově rekonstruován a kolaudován v roce 2002 a je o dispozici 3+kk s terasou, garáží, dílnou, šatnou, sklepem a půdou.
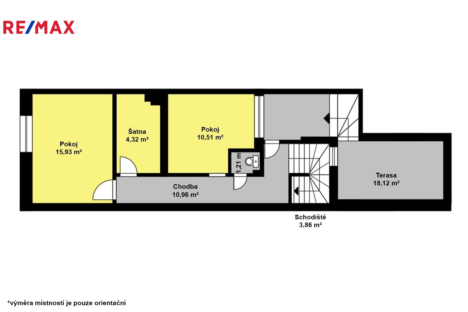
Půdní prostory (46 m2), kde mohou být další pokoje nebo jiné využití dle vlastních představ.
Vytápění je kombinovaným plynovým kotlem nebo krbovými kamny s průduchy. V dílně jsou kamna na tuhá paliva.
Střecha je sedlová a krytinou je taška. Okna jsou plastová a dům je zateplen. Nemovitost je částečně podsklepena (18,6 m2). Na terase je nově opravená podlaha a nový majitel si může terasu dodělat dle svých představ.
K nemovitosti náleží řadová garáž naproti vchodovým dveřím do domu. Garáž je po stavebních úpravách a plně funkční.
Dům je připojen na elektřinu, plyn, obecní vodovod a kanalizaci. Na hranici pozemku se sousedem je napůl studna pro užitkovou vodu.
Štítary jsou součástí Kolína, kde je i veškerá občanská vybavenost a do širšího centra je to cca 3 km a na zastávku MHD je 10 minut chůze od domu.
Kolín má výbornou dopravní infrastrukturu. Vlakem do Prahy je to 40 minut a do Pardubic 20 minut.
V případě zájmu o prohlídku nebo více informací mne kontaktujte.
Cena:
5 870 000 CZK / Rezervováno
Poznámka k ceně:
Cena včetně právního servisu a provize RK
Upozornění:
Prodávající si vyhrazuje právo vybrat kupujícího na základě jím zvolených kritérií.
RX finance

Spočítejte si splátku hypotéky

Na kolik vás vyjde pořízení vlastního bydlení? Zadejte pár informací do naší hypoteční kalkulačky a hned si prohlédněte výsledek.

Kupní cena nemovitosti

5 870 000 Kč

Výše hypotéky

Doba splácení

Vypočítaná měsíční splátka

Úroková sazba 3.6%

260 990 Kč

Hypotéku zařídíme za vás

Ušetřete svůj čas i nervy. Naši makléři zařídí veškeré papírování a dovedou vás až k úspěšnému podpisu smlouvy v bance.

Nechte nám kontakt, náš makléř se v pracovní dny ozve do 24 hodin

* – toto pole je nutné vyplnit
Michal Zadražil
RE/MAX G8 Reality 4
Václavská 864
Kolín, 28002
Česká republika
Tel. na makléře: +420 774 942 980
Tel. do kanceláře: +420 603 392 333
E-mail: michal.zadrazil@re-max.cz

Potřebujete poradit/máte zájem o prohlídku?

* – toto pole je nutné vyplnit

Podrobné informace

Číslo zakázky:
ID 059-NP07691
Poloha objektu:
Řadový
Počet podlaží v objektu:
2
Užitná plocha:
102 m²
Plocha parcely:
95 m²
Druh objektu:
Smíšená
Stav objektu:
Dobrý
Typ nemovitosti:
Domy a vily
Charakter okolní zástavby:
Obytná
Doprava:
Vlak, Silnice, MHD, Autobus
Elektřina:
230 V, 400 V
Garáž:
Ano
Odpad:
Kanalizace
Zastavěná plocha:
76 m²
Plyn:
Plynovod
Počet parkovacích míst:
1
Počet podlaží pod zemí:
1
Typ domu:
Patrový
Umístění objektu:
Klidná část obce
Voda:
Dálkový rozvod
Energetická náročnost budovy:
G