Translate with 
MENU ZAVŘÍT

Prodej domu 165 m², Pečky (ID 059-NP07701)

ulice Lobňanská, Pečky mapa

7 300 000 Kč ( za nemovitost)
GMimořádně
nehospodárná

4x
165 m2
358 m2
3
Exkluzivně

Prodej domu 4+1 v Pečkách

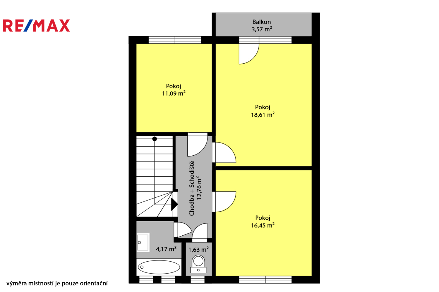
Nabízíme k prodeji řadový rodinný dům, nacházející se na adrese Lobňanská 899 v obci Pečky. Tento patrový dům s celkovou užitnou plochou cca 165 m² a zastavěnou plochou 75 m² poskytuje ideální zázemí pro rodiny s dětmi, které hledají bezpečné a pohodlné bydlení.

Dům se skládá ze 4 prostorných pokojů, které lze snadno přizpůsobit potřebám vaší rodiny. Dvě podlaží a sklepní prostor s garáží poskytují dostatek místa pro rodinu. Dětem se zde jistě zalíbí, a to nejen díky dětskému hřišti před domem, ale také díky zahradě o rozloze 358 m², která je ideální pro rodinné aktivity a pořádání rodinných setkání.

Dům je částečně vybaven, což usnadňuje stěhování a přizpůsobení interiéru dle vašich představ. Infrastruktura nabízí připojení na vodovod, elektřinu, plyn a kanalizaci. Topení je zajištěno plynovým kotlem. Okna jsou plastová.

V Pečkách je veškerá občanská vybavenost - škola, školka, lékař, obchody a sportoviště v dosahu cca 900 m. Výborná dopravní dostupnost (vlak směr Praha a Kolín, Pardubice) a dálnice D11 cca 6 km. Nemovitost lze financovat hypotékou, kterou Vám rádi pomůžeme vyřídit. V případě zájmu kontaktujte makléře, který Vás rád touto nemovitostí provede a sdělí bližší informace. V případě více zájemců o koupi nemovitosti se bude nemovitost prodávat formou aukce.
Cena:
7 300 000 CZK / za nemovitost
Poznámka k ceně:
Cena včetně provize a právních služeb
Upozornění:
Prodávající si vyhrazuje právo vybrat kupujícího na základě jím zvolených kritérií.
RX finance

Spočítejte si splátku hypotéky

Na kolik vás vyjde pořízení vlastního bydlení? Zadejte pár informací do naší hypoteční kalkulačky a hned si prohlédněte výsledek.

Kupní cena nemovitosti

7 300 000 Kč

Výše hypotéky

Doba splácení

Vypočítaná měsíční splátka

Úroková sazba 3.6%

260 990 Kč

Hypotéku zařídíme za vás

Ušetřete svůj čas i nervy. Naši makléři zařídí veškeré papírování a dovedou vás až k úspěšnému podpisu smlouvy v bance.

Nechte nám kontakt, náš makléř se v pracovní dny ozve do 24 hodin

* – toto pole je nutné vyplnit
Luboš Holub
RE/MAX G8 Reality 4
Václavská 864
Kolín, 28002
Česká republika
Tel. na makléře: +420 606 402 668
Tel. do kanceláře: +420 603 392 333
E-mail: lubos.holub@re-max.cz

Potřebujete poradit/máte zájem o prohlídku?

* – toto pole je nutné vyplnit

Podrobné informace

Číslo zakázky:
ID 059-NP07701
Poloha objektu:
Řadový
Počet podlaží v objektu:
3
Užitná plocha:
165 m²
Plocha parcely:
358 m²
Druh objektu:
Smíšená
Stav objektu:
Dobrý
Typ nemovitosti:
Domy a vily
Doprava:
Vlak, Dálnice, Silnice, Autobus
Elektřina:
230 V, 400 V
Garáž:
Ano
Odpad:
Kanalizace
Ostatní rozvody:
Ostatní rozvody
Zastavěná plocha:
75 m²
Plyn:
Plynovod
Telekomunikace:
Telefon, Internet
Typ domu:
Patrový
Umístění objektu:
Klidná část obce
Voda:
Dálkový rozvod
Vybaveno:
Ano
Energetická náročnost budovy:
G