Translate with 
MENU ZAVŘÍT

Prodej domu 177 m², Písková Lhota (ID 205-NP12131)

ulice Polabská, Písková Lhota mapa

18 900 000 Kč ( za nemovitost)
CÚsporná

5+
177 m2
827 m2
2
Exkluzivně

Novostavba RD 5+kk Polabská, Písková Lhota, okres Nymburk

Dovoluji si Vám exkluzivně nabídnout moderní dvoupodlažní novostavbu rodinného domu, který je situován do klidné části obce Písková Lhota, v blízkosti lázeňského města Poděbrady.
Dům je kompletně vybaven vestavěným nábytkem na míru, který je součástí prodejní ceny.
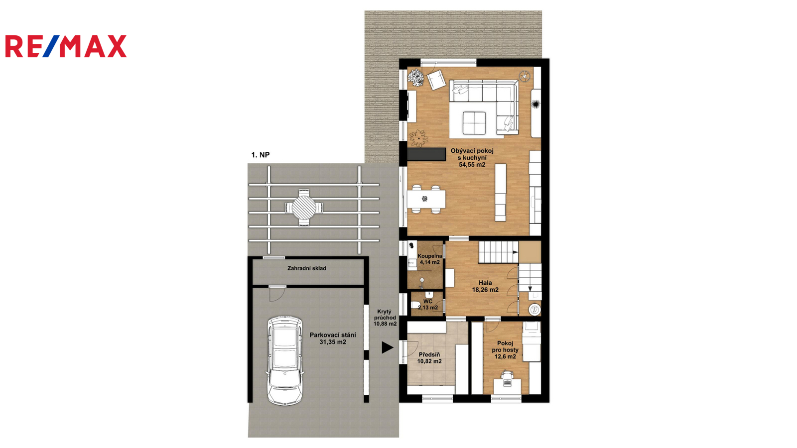
V 1. NP je k dispozici zádveří, vstupní hala, obývací pokoj s kuchyní a jídelním koutem, pokoj pro hosty, koupelna se sprchovým koutem a samostatná toaleta.
Kuchyňská linka je vybavena špičkovými vestavěnými spotřebiči De Dietrich, na podlahách byly použitý kvalitní třívrstvé dubové lamely nebo italské keramické dlažby. Velkoformátová okna s izolačním trojsklem propojují tuto část domu s venkovní terasou a navazující zahradou, která byla navržena zahradním architektem.
2. NP disponuje dvěma dětskými pokoji, hlavní ložnicí s prostornou šatnou, koupelnou s vanou a samostatnou toaletou.
Podlaží jsou propojena samonosným schodištěm s dřevěnými stupni.
Vytápění a ohřev teplé vody je zajištěn kondenzačním kotlem Baxi, který v kombinaci s kvalitními okny a zateplením Vám garantuje příznivé náklady na provoz domu.
Dále jsou k dispozici venkovní garážové stání pro dva vozy se zastřešením a navazujícím skladem.
Stavba je napojena na kompletní inženýrské sítě - elektřina, voda, tlaková kanalizace a plyn.
Obec má základní občanskou vybavenost, mj. úřad, obchod a nebo mateřskou školku. Veškerá další vybavenost je v sousedních Poděbradech, vzdálených cca 5 km.
Okolí nabízí krásné koupání nebo rybolov v nedalekém pískovém jezeře, rovněž oceníte napojení na cyklostezky, které Vás dovedou až do Poděbrad.
Výborná dopravní dostupnost Prahy, nájezd na D 11 s dojezdem na Černý Most do 20 min od domu.
Možnost financování koupě za pomocí hypotéčního úvěru, s jehož zajištěním Vám pomohou naši finanční specialisté.
V případě zájmu o prohlídku mě neváhejte kontaktovat.
Děkuji a těším se na setkání s Vámi.
Cena:
18 900 000 CZK / za nemovitost
Poznámka k ceně:
Vč. provize RK a kompletního právního servisu
Upozornění:
Prodávající si vyhrazuje právo vybrat kupujícího na základě jím zvolených kritérií.
RX finance

Spočítejte si splátku hypotéky

Na kolik vás vyjde pořízení vlastního bydlení? Zadejte pár informací do naší hypoteční kalkulačky a hned si prohlédněte výsledek.

Kupní cena nemovitosti

18 900 000 Kč

Výše hypotéky

Doba splácení

Vypočítaná měsíční splátka

Úroková sazba 3.6%

260 990 Kč

Hypotéku zařídíme za vás

Ušetřete svůj čas i nervy. Naši makléři zařídí veškeré papírování a dovedou vás až k úspěšnému podpisu smlouvy v bance.

Nechte nám kontakt, náš makléř se v pracovní dny ozve do 24 hodin

* – toto pole je nutné vyplnit
Věra Jesenská
RE/MAX Alfa
Spálená 97/29
Praha 1 - Nové Město, 11000
Česká republika
Tel. na makléře: +420 602 314 229
Tel. do kanceláře: +420 296 240 400
E-mail: vera.jesenska@re-max.cz

Potřebujete poradit/máte zájem o prohlídku?

* – toto pole je nutné vyplnit

Podrobné informace

Číslo zakázky:
ID 205-NP12131
Poloha objektu:
Samostatný
Počet podlaží v objektu:
2
Užitná plocha:
177 m²
Plocha parcely:
827 m²
Druh objektu:
Cihlová
Stav objektu:
Velmi dobrý
Typ nemovitosti:
Domy a vily
Charakter okolní zástavby:
Obytná
Doprava:
Silnice
Elektřina:
230 V, 400 V
Odpad:
Kanalizace
Plocha zahrady:
551 m²
Zastavěná plocha:
276 m²
Plyn:
Plynovod
Typ domu:
Přízemní
Voda:
Dálkový rozvod
Vybaveno:
Ano
Energetická náročnost budovy:
C
Měrná vypočtená roční spotřeba energie v kWh/m²/rok:
97