Translate with 
MENU ZAVŘÍT

Prodej bytu 3+1 v osobním vlastnictví 69 m², Benátky nad Jizerou (ID 205-NP12159)

ulice Ořechová, Benátky nad Jizerou – část obce Benátky nad Jizerou II mapa

4 789 000 Kč ( za nemovitost)
DMéně
úsporná

1x
3x
69 m2
4/5
Exkluzivně

Byt 3+1, 69 m2 - Benátky nad Jizerou, Ořechová

Pokud hledáte prostorný a světlý byt v Benátkách nad Jizerou, který si můžete upravit přesně podle svých představ, pak vás tato nabídka jistě zaujme.

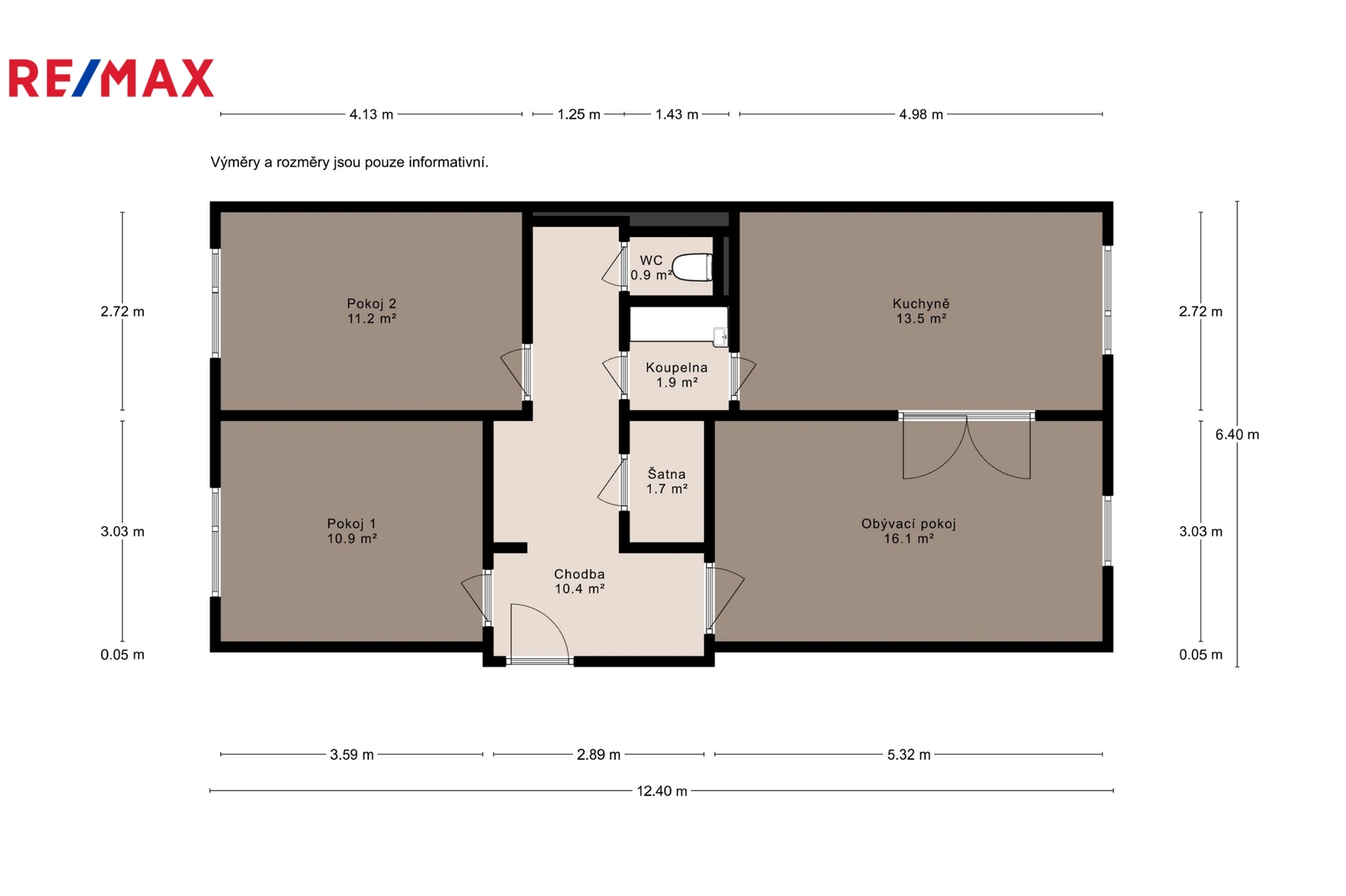
Byt o podlahové ploše 69 m2 se nachází v ulici Ořechová, ve 4. nadzemním podlaží pětipodlažního panelového domu (bez výtahu), který je ve výborném a pravidelně udržovaném stavu. Dispozice zahrnuje prostorný obývací pokoj s kuchyňským koutem (30 m2), dva pokoje (každý o velikosti 11 m2), koupelnu, samostatnou toaletu, velkorysou vstupní chodbu s možností vestavěných skříní a praktickou komoru.

K bytu dále náleží druhá komora na chodbě přímo naproti bytu, sklepní kóje v přízemí a uzamykatelná lodžie na patře, sdílená jen se sousedním bytem. Obyvatelé mohou dále využívat společnou kolárnu a kočárkárnu. Parkování je možné pohodlně přímo před domem.

Byt je v původním, udržovaném stavu a připravený k rekonstrukci. Měsíční zálohy včetně vytápění, fondu oprav, vody a správy domu činí 4 400 Kč. Elektřina pak vychází na zhruba 1 500 Kč. Budova má energetický štítek ve třídě D.

Benátky nad Jizerou patří mezi oblíbené rezidenční lokality díky klidné atmosféře, množství zeleně a ideálním podmínkám pro rodinné bydlení. Město s přibližně 8 000 obyvateli nabízí kompletní občanskou vybavenost – mateřské, základní i umělecké školy, sportovní areály a kluby (např. fotbal, tenis, hokej, florbal, badminton, volejbal), dětská hřiště, restaurace i supermarkety Billa, Penny a Lidl. Milovníci volnočasových aktivit ocení množství cyklostezek, turistických a naučných tras, stejně jako místní muzea, zámek či hvězdárnu.

Skvělou dopravní dostupnost zajišťuje autobusové nádraží vzdálené jen 200 metrů od domu – s přímým spojením do Prahy na metro B – Černý Most (30 minut) nebo do Mladé Boleslavi (28 minut). Autem se během pěti minut napojíte na dálnici D10.

Pokud vás tato nabídka zaujala, neváhejte mě kontaktovat. Rád vám byt ukáži osobně.
Vojtěch Piruchta
Cena:
4 789 000 CZK / za nemovitost
Poznámka k ceně:
Cena je konečná - včetně provize RK i právních služeb.
Upozornění:
Prodávající si vyhrazuje právo vybrat kupujícího na základě jím zvolených kritérií.
RX finance

Spočítejte si splátku hypotéky

Na kolik vás vyjde pořízení vlastního bydlení? Zadejte pár informací do naší hypoteční kalkulačky a hned si prohlédněte výsledek.

Kupní cena nemovitosti

4 789 000 Kč

Výše hypotéky

Doba splácení

Vypočítaná měsíční splátka

Úroková sazba 3.6%

260 990 Kč

Hypotéku zařídíme za vás

Ušetřete svůj čas i nervy. Naši makléři zařídí veškeré papírování a dovedou vás až k úspěšnému podpisu smlouvy v bance.

Nechte nám kontakt, náš makléř se v pracovní dny ozve do 24 hodin

* – toto pole je nutné vyplnit
Bc. Vojtěch Piruchta
RE/MAX Alfa
Spálená 97/29
Praha 1 - Nové Město, 11000
Česká republika
Tel. na makléře: +420 604 668 666
Tel. do kanceláře: +420 296 240 400
E-mail: vojtech.piruchta@re-max.cz

Potřebujete poradit/máte zájem o prohlídku?

* – toto pole je nutné vyplnit

Podrobné informace

Číslo zakázky:
ID 205-NP12159
Dispozice:
3+1
Číslo podlaží:
4
Počet podlaží v objektu:
5
Podlahová plocha:
69 m²
Druh objektu:
Panelová
Stav objektu:
Před rekonstrukcí
Vlastnictví:
Osobní
Typ nemovitosti:
Byty
Charakter okolní zástavby:
Obytná
Odpad:
Kanalizace
Užitná plocha:
69 m²
Plyn:
Plynovod
Umístění objektu:
Klidná část obce
Energetická náročnost budovy:
D