Translate with 
MENU ZAVŘÍT

Prodej domu 214 m², Český Brod (ID 020-NP10601)

ulice Svatopluka Čecha, Český Brod mapa

8 900 000 Kč ( za nemovitost)
GMimořádně
nehospodárná

5+
214 m2
490 m2
2
Exkluzivně

Prodej udržovaného rodinného domu s garáží a přístupem z obou stran pozemku — ul. Svatopluka Čecha,

Nabízíme prodej rodinného domu z roku 1936 v klidné a žádané lokalitě Českého Brodu. Dům je udržovaný v původním technickém stavu, průběžně modernizovaný, vhodný jak k okamžitému užívání, tak k rekonstrukci dle vlastních představ. Velkou předností je přístup na pozemek z obou ulic – ideální pro dvougenerační řešení, podnikání nebo pohodlné parkování.
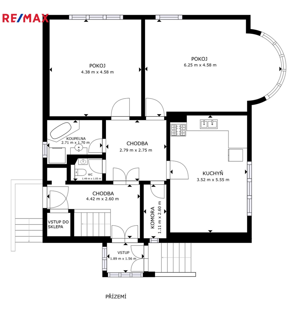
Dispozice domu:
• 1. NP 117 m²: vstupní hala se schodištěm, kuchyně, obývací pokoj s novějším oknem, další pokoj, koupelna s WC, vstup do sklepa a podkroví
• 2. NP 97 m²: dvě ložnice, WC, hala, komora a velký půdní prostor vhodný k další vestavbě
• Sklep: cca 44 m², ideální pro sklad, dílnu nebo technické zázemí
Dům napojen na elektřinu, plyn, obecní vodu a kanalizaci. Na zahradě kopaná studna (užitková voda). Samostatná zděná garáž z roku 1960 se vstupem přímo ze zahrady. Pozemek má celkem 490 m².
Průběžná modernizace:
• nový funkční plynový kotel včetně napojení na rozvody a topná tělesa
• výměna střešní krytiny – alukryt (hliník), rok 1985
• zateplení fasády polystyrenem, rok 1997
• rekonstrukce koupelny a WC, rok 2005
Lokalita a občanská vybavenost:
Velmi klidná ulice s převážně rezidenční zástavbou. V pěší vzdálenosti mateřská i základní škola, gymnázium, sportovní areál, obchody i lékaři. Do centra města pár minut chůze.
Výborné spojení do Prahy — vlak každých cca 15–20 minut, do centra Prahy (Masarykovo nádraží) cca 35 minut. Rychlý nájezd i na D11. V případě zájmu o prohlídku nás neváhejte kontaktovat.
Cena:
8 900 000 CZK / za nemovitost
Poznámka k ceně:
Upozornění:
Prodávající si vyhrazuje právo vybrat kupujícího na základě jím zvolených kritérií.
RX finance

Spočítejte si splátku hypotéky

Na kolik vás vyjde pořízení vlastního bydlení? Zadejte pár informací do naší hypoteční kalkulačky a hned si prohlédněte výsledek.

Kupní cena nemovitosti

8 900 000 Kč

Výše hypotéky

Doba splácení

Vypočítaná měsíční splátka

Úroková sazba 3.6%

260 990 Kč

Hypotéku zařídíme za vás

Ušetřete svůj čas i nervy. Naši makléři zařídí veškeré papírování a dovedou vás až k úspěšnému podpisu smlouvy v bance.

Nechte nám kontakt, náš makléř se v pracovní dny ozve do 24 hodin

* – toto pole je nutné vyplnit
Josef Vencovský
RE/MAX G8 Reality
Rohanské nábřeží 678/27
Praha 8 - Karlín, 18600
Česká republika
Tel. na makléře: +420 777 092 407
Tel. do kanceláře: +420 703 180 388
E-mail: josef.vencovsky@re-max.cz

Potřebujete poradit/máte zájem o prohlídku?

* – toto pole je nutné vyplnit

Podrobné informace

Číslo zakázky:
ID 020-NP10601
Poloha objektu:
Samostatný
Počet podlaží v objektu:
2
Užitná plocha:
214 m²
Plocha parcely:
490 m²
Druh objektu:
Cihlová
Stav objektu:
Dobrý
Typ nemovitosti:
Domy a vily
Doprava:
Vlak
Odpad:
Kanalizace
Zastavěná plocha:
120 m²
Plyn:
Plynovod
Počet podlaží pod zemí:
1
Telekomunikace:
Internet
Typ domu:
Patrový
Umístění objektu:
Klidná část obce
Voda:
Zdroj pro celý objekt, Dálkový rozvod
Energetická náročnost budovy:
G