Translate with 
MENU ZAVŘÍT

Pronájem bytu 2+kk v osobním vlastnictví 52 m², Poděbrady (ID 059-NP07718)

ulice Nerudova, Poděbrady – část obce Poděbrady III mapa

17 000 Kč ( za měsíc)
BVelmi
úsporná

kk
2x
52 m2
2/4
Exkluzivně

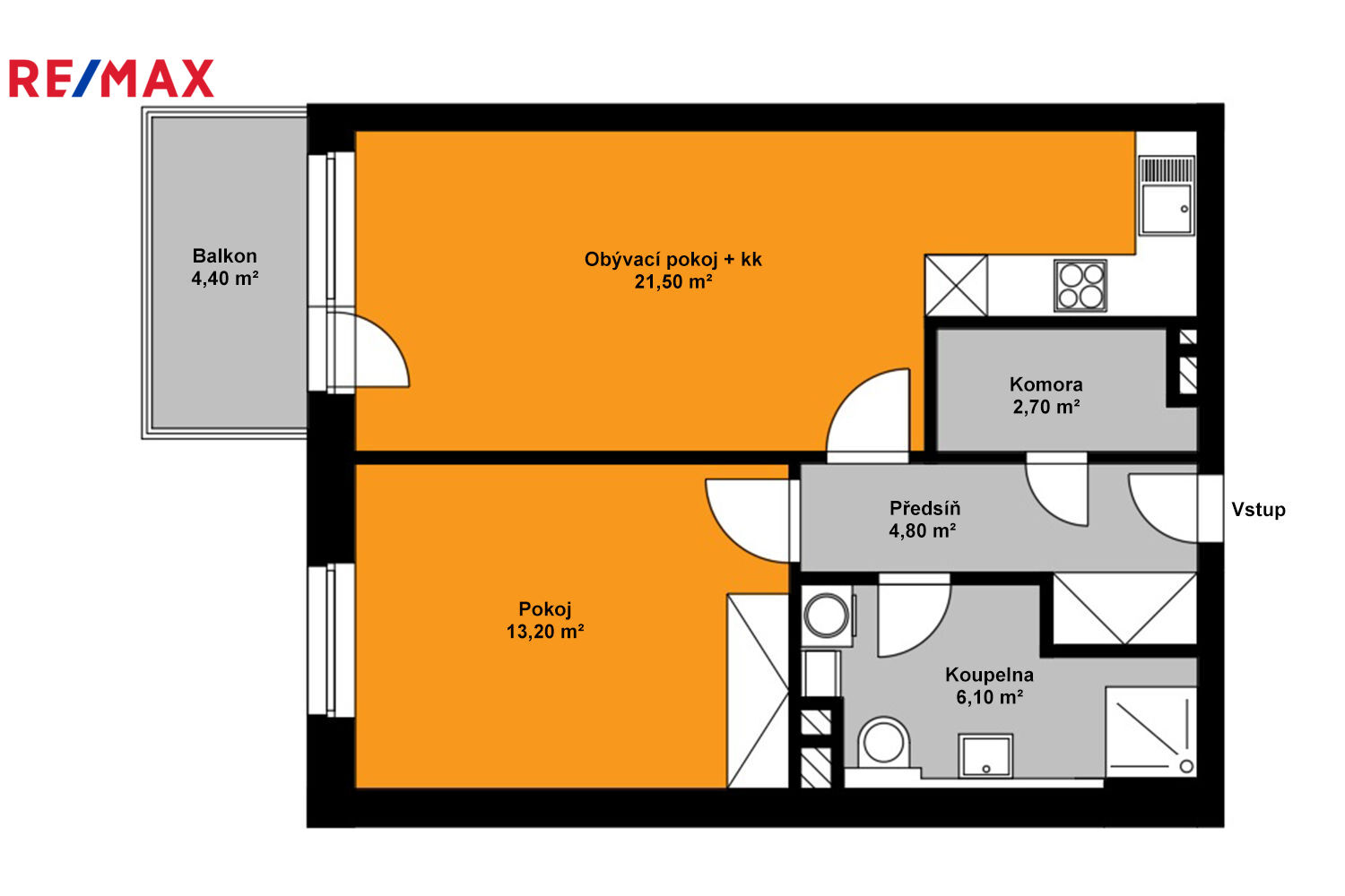
Pronájem bytu 2+kk (52,1 m²) + balkón + sklep + 2 x parkovací stání v Poděbradech

Dovolujeme si Vám nabídnout k pronájmu moderní byt 2+kk o velikosti 52,1 m² s balkonem (4,4 m²) v atraktivní lokalitě Poděbrad, ulice Nerudova. K bytu náleží sklepní kóje přímo na patře a dvě parkovací stání v garáži pod domem, což zajišťuje pohodlí a bezpečí. Dům je vybaven výtahem, který umožňuje snadný přístup až k bytu. Byt je nový, světlý a bude k nastěhování od 1. 1. 2026. Součástí vybavení je kompletně zařízená kuchyňská linka se spotřebiči, předokenní rolety a vestavěná skříň v chodbě. Měsíční nájemné činí 17 000 Kč, k tomu se připočítávají zálohy na vodné, stočné a poplatky za služby ve výši 1 150 Kč, elektřinu a plyn si nájemce převádí na sebe. Vratná kauce je stanovena na 25 000 Kč. Byt se nachází v klidné části města s výbornou dostupností do centra a v blízkosti veškeré občanské vybavenosti – obchody, školy, restaurace i lázeňská kolonáda. V případě zájmu o prohlídku nebo více informací mě prosím kontaktujte.
Cena:
17 000 CZK / za měsíc
Poznámka k ceně:
+ energie, vratná kauce 25 000 Kč a provize RK
Upozornění:
Pronajímající si vyhrazuje právo vybrat nájemce na základě jím zvolených kritérií.
Zuzana Beňová, DiS.
RE/MAX G8 Reality 4
Václavská 864
Kolín, 28002
Česká republika
Tel. na makléře: +420 725 003 287
Tel. do kanceláře: +420 603 392 333
E-mail: zuzana.benova@re-max.cz

Potřebujete poradit/máte zájem o prohlídku?

* – toto pole je nutné vyplnit

Podrobné informace

Číslo zakázky:
ID 059-NP07718
Dispozice:
2+kk
Číslo podlaží:
2
Počet podlaží v objektu:
4
Podlahová plocha:
52 m²
Druh objektu:
Cihlová
Stav objektu:
Velmi dobrý
Vlastnictví:
Osobní
Typ nemovitosti:
Byty
K nastěhování:
1. 1. 2026
Doprava:
Vlak, Dálnice, Silnice, Autobus
Elektřina:
230 V
Odpad:
Kanalizace
Ostatní rozvody:
Kabelové rozvody
Užitná plocha:
56 m²
Plyn:
Plynovod
Počet parkovacích míst:
2
Počet podlaží pod zemí:
1
Umístění objektu:
Centrum obce
Voda:
Zdroj pro celý objekt
Vybaveno:
Ano
Výtah:
Ano
Energetická náročnost budovy:
B
Měrná vypočtená roční spotřeba energie v kWh/m²/rok:
60