Translate with 
MENU ZAVŘÍT

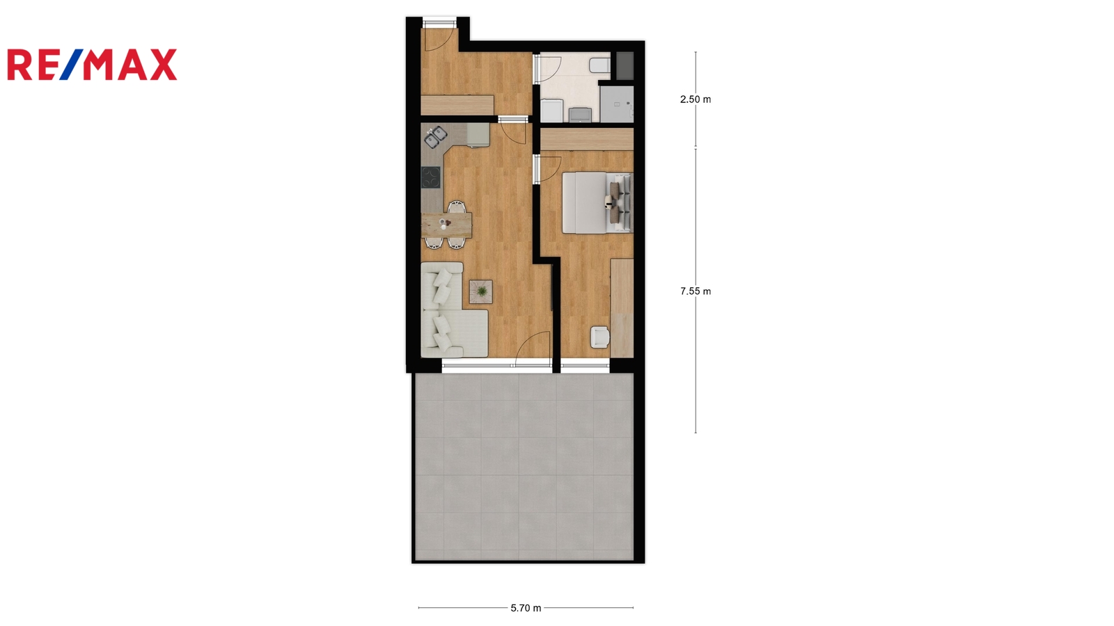
Prodej bytu 2+kk v osobním vlastnictví 35 m², Kyjov (ID 077-NP06829)

Kyjov, okres Hodonín mapa

Cena na vyžádání v kanceláři
BVelmi
úsporná

kk
2x
35 m2
1/4
Exkluzivně Rezervace

Prodej nového moderního bytu 2+kk, Kyjovské zahrady

Projekt Kyjovské zahrady vstupuje do druhé etapy, která přináší moderní bytový dům se šesti podlažími a celkem 77 byty v dispozicích od útulných 1+kk až po prostorné 4+kk. Vybrané přízemní byty nabídnou vlastní předzahrádky, zatímco střešní byty vyniknou luxusními terasami s krásnými výhledy a maximálním soukromím.

Dům je navržen s důrazem na kvalitu a komfort. Byty budou dokončeny ve vysokém standardu – součástí jsou vinylové podlahy, koupelny obložené keramickými dlaždicemi, moderní plastová okna v antracitovém provedení s izolačními trojskly i podlahové vytápění v kombinaci s vlastními klimatizačními jednotkami. Samozřejmostí jsou sklepní kóje, komfortní výtah a kompletní příprava na moderní technologie včetně vysokorychlostního internetu. Pro zájemce bude k dispozici také možnost parkování v podzemních garážích nebo na vyhrazených venkovních stáních.

Bytový dům spadá do energetické třídy B – velmi úsporná stavba, která zaručuje nízké provozní náklady. Navíc každý zájemce má v průběhu výstavby možnost klientských změn a může si vybrat z nabídky zařizovacích předmětů dle vlastního vkusu, takže nový byt dokonale odpovídá jeho představám.

Kyjovské zahrady tak nabízejí ideální příležitost pro moderní a pohodlné bydlení s přidanou hodnotou kvality i nadčasového designu.

V průběhu výstavby je možnost klientských změn ve formě výběru zařizovacích předmětů dle vkusu zájemce.

Bezproblémové financování hypotečním úvěrem. Pro více informací neváhejte kontaktovat makléře.
Cena:
Cena na vyžádání v kanceláři / Rezervováno
Poznámka k ceně:
cena je konečná – včetně provize realitní kanceláře, právního a poprodejního servisu
Upozornění:
Prodávající si vyhrazuje právo vybrat kupujícího na základě jím zvolených kritérií.
Ing. Michal Stehlík
RE/MAX Pro
Blatného 3
Brno, 61600
Česká republika
Tel. na makléře: +420 733 679 940
Tel. do kanceláře: +420 732 299 929
E-mail: michal.stehlik@re-max.cz

Potřebujete poradit/máte zájem o prohlídku?

* – toto pole je nutné vyplnit

Podrobné informace

Číslo zakázky:
ID 077-NP06829
Dispozice:
2+kk
Číslo podlaží:
1
Počet podlaží v objektu:
4
Podlahová plocha:
35 m²
Druh objektu:
Cihlová
Stav objektu:
Ve výstavbě (hrubá stavba)
Vlastnictví:
Osobní
Typ nemovitosti:
Byty
Bezbariérový byt:
Ano
Charakter okolní zástavby:
Obytná
K nastěhování:
30. 11. 2027
Doprava:
Vlak, Silnice, MHD, Autobus
Elektřina:
230 V
Odpad:
Kanalizace
Užitná plocha:
35 m²
Počet podlaží pod zemí:
1
Telekomunikace:
Internet
Umístění objektu:
Centrum obce
Voda:
Dálkový rozvod
Výtah:
Ano
Energetická náročnost budovy:
B