Translate with 
MENU ZAVŘÍT

Pronájem bytu 3+1 v osobním vlastnictví 97 m², Podbořany (ID 114-NP10390)

ulice Nádražní, Podbořany mapa

10 000 Kč (vč. DPH, za měsíc)
GMimořádně
nehospodárná

1x
3x
97 m2
1/3

K pronájmu byt o dispozici 3+1, užitná plocha 97m2, Podbořany

Nájemce bude vybrán na základě nejvyšší nabídnuté ceny v zaslané žádosti, kterou Vám zašleme na Vaše vyžádání.
Výběr budoucího nájemce musí splňovat určitá kritéria a požadavky, které žádost obsahuje a aby mu byl byt pronajat.

Žádost mimo jiné obsahuje:
- Vaše jméno, telefon, stav, kolik osob bude byt užívat
- doklad o výši čistých měsíčních příjmů Zájemce za posledních 6 měsíců
- doklad o exekuční bezúhonnosti Zájemce
Po podpisu nájemní smlouvy:
- Zájemce musí složit kauci/jistinu ve výši třech měsíčních nájmů
- Zájemce uhradí provizi RK ve výši jednoho nájmu za zprostředkování

Nájemce bude vybrán na základě veřejné soutěže, případně dle vyplněné přihlášky, kterou Vám zašleme na vyžádání emailem.
-----------------------------------------------------------------------------------------------------------------------------------------------
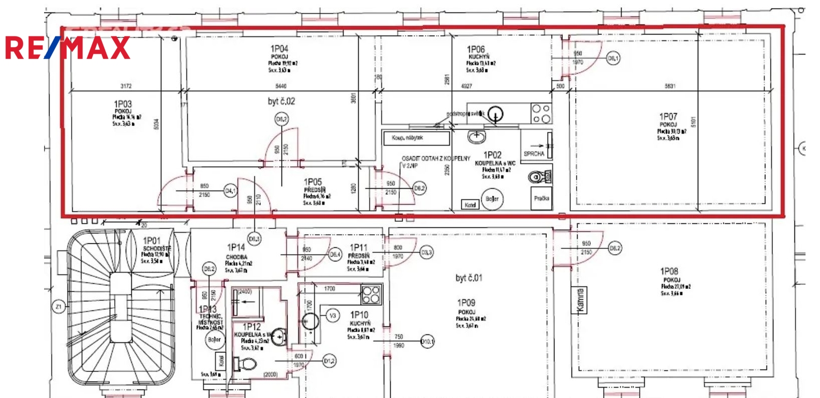
Nabízíme k pronájmu nově zrekonstruovanou bytovou jednotku o velikosti 3+1, která je situována v 1. patře nádražní budovy Podbořany. Byt s obytnou plochou 97 m² je ideální pro rodinu. Pronajímá s novou kuchyňskou linkou. V koupelně je nový sprchový kout, umyvadlo a WC. Byt je vytápěn elektrickým kotlem a ohřev vody zajišťuje el.bojler. Po celé ploše bytu je položeno nové PVC lino, v koupelně s WC je dlažba. Byt má plastová okna s žaluziemi.

Budova se nachází nedaleko centra města s veškerou občanskou vybaveností, v těsné blízkosti zastávky autobusové dopravy.


Zálohy na služby činí 350,-Kč na osobu za vodu a 100,-Kč za el. spol. prostor. Možnost obsazení od 1.1.2026. Před podpisem smlouvy se platí kauce ve výši třínásobku nájemného bez služeb. Elektřinu si nájemce hradí sám na základě smlouvy s dodavatelem.
Prohlídka bytu je možná po telefonické dohodě.
Termín pro zaslání žádosti o byt je do 3.12.2025 do 13:00 hodin.

Nájemce bude vybrán na základě přihlášky (viz na vyžádání emailem).
Cena:
10 000 CZK / za měsíc
Poznámka k ceně:
+ služby a energie, + kauce, + provize RK
Upozornění:
Pronajímající si vyhrazuje právo vybrat nájemce na základě jím zvolených kritérií.
Pavel Albert
RE/MAX Horizont
Třebešovská 2869/94
Praha 9 - Horní Počernice, 19300
Česká republika
Tel. na makléře: +420 602 225 325
Tel. do kanceláře: +420 733 149 056
E-mail: pavel.albert@re-max.cz

Potřebujete poradit/máte zájem o prohlídku?

* – toto pole je nutné vyplnit

Podrobné informace

Číslo zakázky:
ID 114-NP10390
Dispozice:
3+1
Číslo podlaží:
1
Počet podlaží v objektu:
3
Podlahová plocha:
97 m²
Druh objektu:
Cihlová
Stav objektu:
Po rekonstrukci
Vlastnictví:
Osobní
Typ nemovitosti:
Byty
K nastěhování:
7. 11. 2024
Doprava:
Vlak, Silnice, MHD, Autobus
Odpad:
Kanalizace
Užitná plocha:
97 m²
Zastavěná plocha:
254 m²
Plyn:
Plynovod
Voda:
Dálkový rozvod
Energetická náročnost budovy:
G